Назад к
списку
Цена от собственника
47...438.07 м² - общая площадь
Арендатор не оплачивает услуги агентства
Бизнес центр на Неманской, 24, общая площадь 5220 кв.м, 7 этажей, наземный паркинг, шаговая доступность метро.
Введено в эксплуатацию в 2019 году.
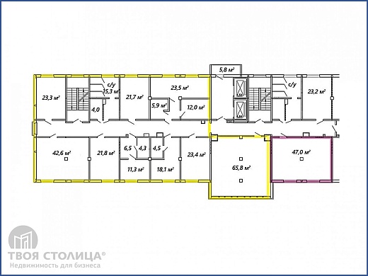
В предложении офисные помещения от 47 до 438.07 кв.м на 5 этаже, представлен комбинированной планировкой: open space/ кабинеты.
Качественная отделка офисов:
- керамическая плитка/ ламинат на полу;
- стены оштукатурены/окрашены;
- дизайн потолка в стиле "лофт";
- установлена система умный дом;
- высокий уровень инсоляции.
Инженерия и коммуникации здания:
- собственная приточно-вытяжная система вентиляции;
- система кондиционирования;
- энергоснабжение - выделено 100 кВт на этаж;
- разведены электрические и слаботочные сети, провайдеры на выбор;
- счетчики учета эл/энергии, воды и отопления на этаж;
- бесшумные лифты «Otis»;
- видеонаблюдение;
- система контроля доступа в офисы;
- пожарная/охранная сигнализация.
Местоположение:
Близость ст. метро "Каменная горка".
Развитая инфраструктура района и транспортная доступность: остановки общественного транспорта, отделения банков и банкоматы, точки общепита, магазины различной направленности в ТЦ Green.
Арендатор не оплачивает услуги агентства.
ОДО «Твоя столицаконсалт», лицензия выд. Минюстом 20.09.2006 № 02240/129, УНП 190285638, договор РУ №130/2а от 03.11.2023
Введено в эксплуатацию в 2019 году.
В предложении офисные помещения от 47 до 438.07 кв.м на 5 этаже, представлен комбинированной планировкой: open space/ кабинеты.
Качественная отделка офисов:
- керамическая плитка/ ламинат на полу;
- стены оштукатурены/окрашены;
- дизайн потолка в стиле "лофт";
- установлена система умный дом;
- высокий уровень инсоляции.
Инженерия и коммуникации здания:
- собственная приточно-вытяжная система вентиляции;
- система кондиционирования;
- энергоснабжение - выделено 100 кВт на этаж;
- разведены электрические и слаботочные сети, провайдеры на выбор;
- счетчики учета эл/энергии, воды и отопления на этаж;
- бесшумные лифты «Otis»;
- видеонаблюдение;
- система контроля доступа в офисы;
- пожарная/охранная сигнализация.
Местоположение:
Близость ст. метро "Каменная горка".
Развитая инфраструктура района и транспортная доступность: остановки общественного транспорта, отделения банков и банкоматы, точки общепита, магазины различной направленности в ТЦ Green.
Арендатор не оплачивает услуги агентства.
ОДО «Твоя столицаконсалт», лицензия выд. Минюстом 20.09.2006 № 02240/129, УНП 190285638, договор РУ №130/2а от 03.11.2023
Дата
обновления: 12.12.2025
- Год постройки - 2019
- Панель
- 5 из 7 этажей
- Юридический адрес
- Вода
- Отопление
- Электричество
Офис в аренду, Минск, Неманская ул., 24
Неманская ул., 24, Фрунзенский район:
40.59 руб / м² в мес.
12 EUR без НДС (УСН)
Для наших клиентов действует программа «Партнер-кредит». При приобритении данного объекта Вы можете
воспользоваться программой кредитования от нашего партнера
ЗАО «МТБ-Банк»*
На текущий момент ЗАО "МТБанк" рассматривает заявки на кредитование приобретении коммерческой недвижимости от юридических лиц и ИП на следующих условиях:
Срок финансирования - 12-60 мес.
Ставка в бел. руб от 13,0% годовых, в долларах США от 8,5% годовых, в евро от 9,0% годовых.
Собственное участие - от 20%