Назад к
списку
1-й этаж, отд. вход
Цена от собственника
Офис в аренду, Минск, Дзержинского просп., 23
Минск, Дзержинского просп., 23, Московский район
Грушевка
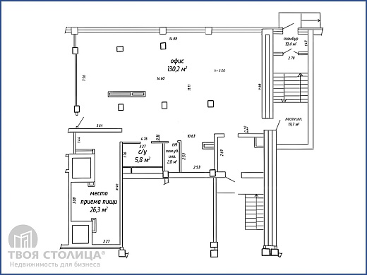
180.4 м² - общая площадь
Арендатор не оплачивает услуги агентства
Офисный блок общей площадью 180.4 кв.м. на первом этаже стилобата в ЖК "Колизей" административного назначения. В 5 минутах от станции метро "Грушевка". В данный момент разделено перегородками( с возможностью демонтажа) по колоннам на 2 кабинета и опен спейс
Блок с собственным санузлом и помещением с подводом воды для организации кухни. Хороший уровень инсоляции.
Лестничные пролеты (порядка 50 м2) не входят в площадь- идут бонусом, их можно эксплуатировать для хранения.
Свободно и готово к заселению:
- стены - окрашены;
- пол - плитка;
- потолок- окрашен.
Инженерия и коммуникации:
- приточно-вытяжная вентиляция;
- центральное отопление, электроснабжение, водоснабжение и канализация.
- индивидуальный счетчик учета электроэнергии.
Плоскостная парковка без закрепления машиномест. Вид из окон выходит на проспект Жукова.
Развитая инфраструктура, в доме располагаются "Европочта", мотосалон "Хорс-Моторс", магазин "Bielita & Вiтэкс", магазин табака "Кальянная Республика". Хорошая транспортная доступность, в пешей доступности станция метро "Грушевка", рядом остановки общественного наземного транспорта.
Арендатор не оплачивает услуги агентства.
ОДО «Твоя столицаконсалт», лицензия выд. Минюстом 20.09.2006 № 02240/129, УНП 190285638, договор РУ №20/6а от 19.02.2026
Блок с собственным санузлом и помещением с подводом воды для организации кухни. Хороший уровень инсоляции.
Лестничные пролеты (порядка 50 м2) не входят в площадь- идут бонусом, их можно эксплуатировать для хранения.
Свободно и готово к заселению:
- стены - окрашены;
- пол - плитка;
- потолок- окрашен.
Инженерия и коммуникации:
- приточно-вытяжная вентиляция;
- центральное отопление, электроснабжение, водоснабжение и канализация.
- индивидуальный счетчик учета электроэнергии.
Плоскостная парковка без закрепления машиномест. Вид из окон выходит на проспект Жукова.
Развитая инфраструктура, в доме располагаются "Европочта", мотосалон "Хорс-Моторс", магазин "Bielita & Вiтэкс", магазин табака "Кальянная Республика". Хорошая транспортная доступность, в пешей доступности станция метро "Грушевка", рядом остановки общественного наземного транспорта.
Арендатор не оплачивает услуги агентства.
ОДО «Твоя столицаконсалт», лицензия выд. Минюстом 20.09.2006 № 02240/129, УНП 190285638, договор РУ №20/6а от 19.02.2026
Дата
обновления: 16.04.2026
- Год постройки - 2021
- Блоки из ячеистого бетона
- 1 из 13 этажей
- Отдельный вход
- Юридический адрес
- Собственный санузел
- Вода
- Отопление
- Электричество
Офис «Центральный» , ул. Кирова, 8, пом. 7
Узнать подробнее
Офис в аренду, Минск, Дзержинского просп., 23
Дзержинского просп., 23, Московский район:
32.97 руб / м² в мес.
12 USD без НДС (УСН)
Для наших клиентов действует программа «Партнер-кредит». При приобритении данного объекта Вы можете
воспользоваться программой кредитования от нашего партнера
ЗАО «МТБ-Банк»*
На текущий момент ЗАО "МТБанк" рассматривает заявки на кредитование приобретении коммерческой недвижимости от юридических лиц и ИП на следующих условиях:
Срок финансирования - 12-60 мес.
Ставка в бел. руб от 13,0% годовых, в долларах США от 8,5% годовых, в евро от 9,0% годовых.
Собственное участие - от 20%