Назад к
списку
1-й этаж, отд. вход
Цена от собственника
Торговые площади в аренду, Минск, Независимости просп., 60
Минск, Независимости просп., 60, Первомайский район
Академия наук
177 м² - общая площадь
Арендатор не оплачивает услуги агентства
Аренда административно-торгового помещения площадью 177кв.м в центре Минска, на первой линии одной из главных магистралей города - проспекта Независимости, вблизи 2-х ст. метро «Площадь Я.Коласа» и «Академия наук».
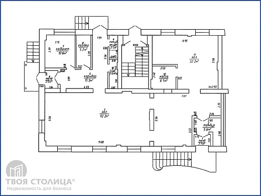
Помещение расположено на первом этаже жилого дома, отдельный вход, выделены 2 зала 92.2 кв. м и 32.2 кв.м, тамбур, коридор, гардероб, кабинет, место для кассы, сан.узел. Мощность 24 кВт.
Помещение свободно и готово к заселению.
- стены - окрашены;
- пол – плитка;
- установлены кондиционеры.
- видеонаблюдение.
Помещение оборудовано инженерными и коммуникационными системами:
- вентиляция с естественным побуждением;
- оптоволоконная сеть;
- телефония;
- центральное отопление, электричество, водопровод, канализация;
- пожарная/ охранная сигнализация.
Снаружи на фасадной части здания есть возможность установки рекламной конструкции.
Помещение подходит для размещения организаций торговли, банков, аптеки, офиса, сферы услуг.
Локация объекта обладает автомобильным и пешеходным трафиком, визуальной и транспортной доступностью. Развитая инфраструктура района - большое количество остановок общественного транспорта, множество точек общественного питания, магазинов, банков, бутиков и салонов красоты.
Арендатор не оплачивает услуги агентства.
ОДО «Твоя столицаконсалт», лицензия выд. Минюстом 20.09.2006 № 02240/129, УНП 190285638, договор РУ №104/2а от 29.10.2024
Помещение расположено на первом этаже жилого дома, отдельный вход, выделены 2 зала 92.2 кв. м и 32.2 кв.м, тамбур, коридор, гардероб, кабинет, место для кассы, сан.узел. Мощность 24 кВт.
Помещение свободно и готово к заселению.
- стены - окрашены;
- пол – плитка;
- установлены кондиционеры.
- видеонаблюдение.
Помещение оборудовано инженерными и коммуникационными системами:
- вентиляция с естественным побуждением;
- оптоволоконная сеть;
- телефония;
- центральное отопление, электричество, водопровод, канализация;
- пожарная/ охранная сигнализация.
Снаружи на фасадной части здания есть возможность установки рекламной конструкции.
Помещение подходит для размещения организаций торговли, банков, аптеки, офиса, сферы услуг.
Локация объекта обладает автомобильным и пешеходным трафиком, визуальной и транспортной доступностью. Развитая инфраструктура района - большое количество остановок общественного транспорта, множество точек общественного питания, магазинов, банков, бутиков и салонов красоты.
Арендатор не оплачивает услуги агентства.
ОДО «Твоя столицаконсалт», лицензия выд. Минюстом 20.09.2006 № 02240/129, УНП 190285638, договор РУ №104/2а от 29.10.2024
Дата
обновления: 02.09.2025
- Год постройки - 1959
- Кирпич
- 1 из 5 этажей
- Отдельный вход
- Юридический адрес
- Собственный санузел
- Вода
- Отопление
- Электричество
Торговые площади в аренду, Минск, Независимости просп., 60
Независимости просп., 60, Первомайский район:
89.64 руб / м² в мес.
26 EUR + НДС
Для наших клиентов действует программа «Партнер-кредит». При приобритении данного объекта Вы можете
воспользоваться программой кредитования от нашего партнера
ЗАО «МТБ-Банк»*
На текущий момент ЗАО "МТБанк" рассматривает заявки на кредитование приобретении коммерческой недвижимости от юридических лиц и ИП на следующих условиях:
Срок финансирования - 12-60 мес.
Ставка в бел. руб от 13,0% годовых, в долларах США от 8,5% годовых, в евро от 9,0% годовых.
Собственное участие - от 20%