Назад к
списку
ОДО «Твоя столицаконсалт», лицензия выд. Минюстом 20.09.2006 № 02240/129, УНП 190285638, договор РУ №2/6А от 06.01.2026
Объект в архиве
1-й этаж, отд. вход
Цена от собственника
Торговые площади в аренду, Минск, Игоря Лученка, 30
Минск, Игоря Лученка, 30, Октябрьский район
Аэродромная
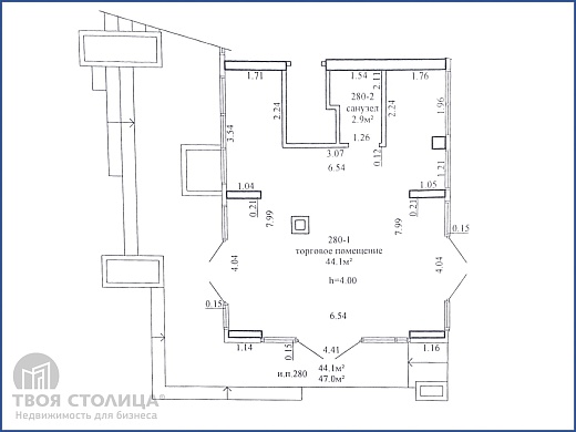
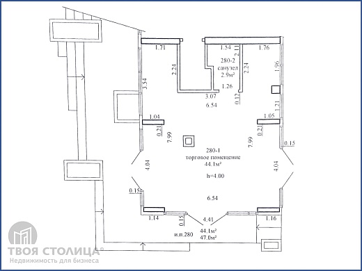
47 м² - общая площадь
Арендатор не оплачивает услуги агентства
Торговое помещение площадью 47 кв.м. по адресу: ул. Игоря Лученка, 30. Помещение находится в оживленном месте, на первом этаже жилого дома "Венеция" в квартале «Западная Европа» комплекса Minsk World, имеет три отдельных входа.
Помещение с высокой инсоляцией без отделки включает в себя торговый зал общей площадью 44,1 кв.м., санузел. Функционирует центральное отопление, пожарная сигнализация, высокоскоростной интернет. Подведено электричество, вода, канализация.
В непосредственной близости находится ТЦ "Аиа Молл", отделения банков, аптеки, точки общественно питания, а также торгового назначения и сферы услуг.
В шаговой доступности ст. метро "Аэродромная", остановки общественного транспорта.
Арендатор не оплачивает услуги агентства.
Помещение с высокой инсоляцией без отделки включает в себя торговый зал общей площадью 44,1 кв.м., санузел. Функционирует центральное отопление, пожарная сигнализация, высокоскоростной интернет. Подведено электричество, вода, канализация.
В непосредственной близости находится ТЦ "Аиа Молл", отделения банков, аптеки, точки общественно питания, а также торгового назначения и сферы услуг.
В шаговой доступности ст. метро "Аэродромная", остановки общественного транспорта.
Арендатор не оплачивает услуги агентства.
ОДО «Твоя столицаконсалт», лицензия выд. Минюстом 20.09.2006 № 02240/129, УНП 190285638, договор РУ №2/6А от 06.01.2026
Дата
обновления: 23.04.2026
- Год постройки - 2025
- монолитный
- 1 из 25 этажей
- Отдельный вход
- Юридический адрес
- Собственный санузел
- Вода
- Отопление
- Электричество
Торговые площади в аренду, Минск, Игоря Лученка, 30
Игоря Лученка, 30, Октябрьский район:
45.12 руб / м² в мес.
16 USD без НДС (физ.лицо)
Для наших клиентов действует программа «Партнер-кредит». При приобритении данного объекта Вы можете
воспользоваться программой кредитования от нашего партнера
ЗАО «МТБ-Банк»*
На текущий момент ЗАО "МТБанк" рассматривает заявки на кредитование приобретении коммерческой недвижимости от юридических лиц и ИП на следующих условиях:
Срок финансирования - 12-60 мес.
Ставка в бел. руб от 13,0% годовых, в долларах США от 8,5% годовых, в евро от 9,0% годовых.
Собственное участие - от 20%