Назад к
списку
Объект в архиве
1-й этаж, отд. вход
Цена от собственника
Торговые площади на продажу, Новогрудок, Интернациональная ул., 1
Новогрудок, Интернациональная ул., 1, Пригород
654.2 м² - общая площадь
Покупатель не оплачивает услуги агентства
Продажа отдельностоящего магазина по адресу - ул. Интернациональная, 1 в Новогрудке. Назначение - здание специализированной розничной торговли. Расположено в центре города, на перекрестке улиц Ленина и Интернациональная. Численность населения на 2018г - 29.441 человек.
Общая площадь здания – 654,2м2.
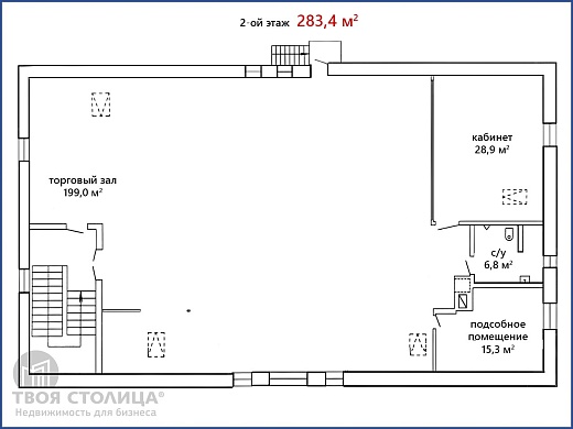
Первый этаж площадью 248,70м2 , второй этаж площадью 283,4 м2.
Также в здании имеются складские неотапливаемые помещения площадью 122,1м2.
Ранее располагался строительный магазин и сеть магазинов "Златка".
Здание полностью благоустроено, подключено к городским сетям электро-, газо- и водоснабжения и канализации. На каждом этаже имеется сан. узел./душ, подогрев воды с помощью бойлера. В составе здания имеется топочная на газу. Установлена пожарная сигнализация.
Мощность энергопотребления составляет 59 кВт. На фасаде здания, а также рядом со зданием, предусмотрены места для размещения рекламы.
В 2015 году проводилась полная реконструкция здания.
Большой двор позволяет свободно заезжать для погрузки-разгрузки 20-тонным большегрузным машинам. Обустроены парковочные места на улице перед зданием, а также предусмотрены во дворе. Кроме того, имеются парковочные места на противоположной стороне улицы перед мечетью (на расстоянии 20 метров от здания магазина).
Отдельные входы на первый и второй этажи. Вход со двора на первый этаж, вход с земли на второй этаж и пожарная лестница со второго этажа.
Магазин расположен на расстоянии 400 метров от центральной площади города.
Покупатель не оплачивает услуги агенства.
ОДО «Твоя столицаконсалт», лицензия выд. Минюстом 20.09.2006 № 02240/129, УНП 190285638, договор РУ №27/2 от 07.10.2024
Общая площадь здания – 654,2м2.
Первый этаж площадью 248,70м2 , второй этаж площадью 283,4 м2.
Также в здании имеются складские неотапливаемые помещения площадью 122,1м2.
Ранее располагался строительный магазин и сеть магазинов "Златка".
Здание полностью благоустроено, подключено к городским сетям электро-, газо- и водоснабжения и канализации. На каждом этаже имеется сан. узел./душ, подогрев воды с помощью бойлера. В составе здания имеется топочная на газу. Установлена пожарная сигнализация.
Мощность энергопотребления составляет 59 кВт. На фасаде здания, а также рядом со зданием, предусмотрены места для размещения рекламы.
В 2015 году проводилась полная реконструкция здания.
Большой двор позволяет свободно заезжать для погрузки-разгрузки 20-тонным большегрузным машинам. Обустроены парковочные места на улице перед зданием, а также предусмотрены во дворе. Кроме того, имеются парковочные места на противоположной стороне улицы перед мечетью (на расстоянии 20 метров от здания магазина).
Отдельные входы на первый и второй этажи. Вход со двора на первый этаж, вход с земли на второй этаж и пожарная лестница со второго этажа.
Магазин расположен на расстоянии 400 метров от центральной площади города.
Покупатель не оплачивает услуги агенства.
ОДО «Твоя столицаконсалт», лицензия выд. Минюстом 20.09.2006 № 02240/129, УНП 190285638, договор РУ №27/2 от 07.10.2024
Дата
обновления: 02.03.2026
- Год постройки - 1960
- Кирпич
- 1 из 2 этажей
- Отдельный вход
- Юридический адрес
- Собственный санузел
- Вода
- Отопление
- Электричество
Скачать pdf – презентацию об объекте
Вся необходимая информация
в одном файле
Для наших клиентов действует программа «Партнёр-кредит». При приобритении данного объекта Вы можете воспользоваться программой кредитования от нашего партнёра
ЗАО «МТБ-Банк»*
На текущий момент ЗАО «МТБанк» рассматривает заявки на кредитование
приобретения коммерческой недвижимости от юридических
лиц и ИП на следующих условиях:
приобретения коммерческой недвижимости от юридических
лиц и ИП на следующих условиях:
Ставка
Срок финансирования
Собственное участие
BYN от 19,5% годовых,
USD/EUR от 6,99% до 8,99% годовых,
RUB - 21% годовых 1-ый год, 24% - последующие периоды
USD/EUR от 6,99% до 8,99% годовых,
RUB - 21% годовых 1-ый год, 24% - последующие периоды
USD, EUR, RUB - до 84 мес;
от 20%
*Данное предложение действует только для юридических лиц и ИП
Торговые площади на продажу, Новогрудок, Интернациональная ул., 1
Интернациональная ул., 1, Пригород:
1081.44 руб / м²
380.6 USD без НДС (физ.лицо)
Для наших клиентов действует программа «Партнер-кредит». При приобритении данного объекта Вы можете
воспользоваться программой кредитования от нашего партнера
ЗАО «МТБ-Банк»*
На текущий момент ЗАО "МТБанк" рассматривает заявки на кредитование приобретении коммерческой недвижимости от юридических лиц и ИП на следующих условиях:
Срок финансирования - 12-60 мес.
Ставка в бел. руб от 13,0% годовых, в долларах США от 8,5% годовых, в евро от 9,0% годовых.
Собственное участие - от 20%