Назад к
списку
ОДО «Твоя столицаконсалт», лицензия выд. Минюстом 20.09.2006 № 02240/129, УНП 190285638, договор РУ №51/6а от 22.04.2026
Новое
Цена от собственника
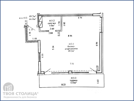
66.8 м² - общая площадь
Арендатор не оплачивает услуги агентства
Аренда помещения, ул. Алфёрова, 22 — 66,8 м2
Сдается светлое помещение площадью 66,8 м2 на верхнем этаже бизнес-апартаментов с великолепным панорамным видом на город. Панорамные окна наполняют пространство естественным светом, есть собственная терраса с козырьком — отличное решение для отдыха или приёма клиентов.
Помещение с собственным санузлом, предоставляются арендные каникулы для выполнения отделки. Невысокая для данной локации ставка аренды. Удобное расположение: шаговая доступность метро и ТЦ «Авиа Молл».
Идеально подходит под офис, студию, услуги или креативное пространство.
Арендатор не оплачивает услуги агентства.
Сдается светлое помещение площадью 66,8 м2 на верхнем этаже бизнес-апартаментов с великолепным панорамным видом на город. Панорамные окна наполняют пространство естественным светом, есть собственная терраса с козырьком — отличное решение для отдыха или приёма клиентов.
Помещение с собственным санузлом, предоставляются арендные каникулы для выполнения отделки. Невысокая для данной локации ставка аренды. Удобное расположение: шаговая доступность метро и ТЦ «Авиа Молл».
Идеально подходит под офис, студию, услуги или креативное пространство.
Арендатор не оплачивает услуги агентства.
ОДО «Твоя столицаконсалт», лицензия выд. Минюстом 20.09.2006 № 02240/129, УНП 190285638, договор РУ №51/6а от 22.04.2026
Дата
обновления: 27.04.2026
- Год постройки - 2025
- Блоки из ячеистого бетона
- 16 из 16 этажей
- Юридический адрес
- Собственный санузел
- Вода
- Отопление
- Электричество
Сфера услуг в аренду, Минск, Алферова, 22
Алферова, 22, Октябрьский район:
33.04 руб / м² в мес.
10 EUR без НДС (УСН)
Для наших клиентов действует программа «Партнер-кредит». При приобритении данного объекта Вы можете
воспользоваться программой кредитования от нашего партнера
ЗАО «МТБ-Банк»*
На текущий момент ЗАО "МТБанк" рассматривает заявки на кредитование приобретении коммерческой недвижимости от юридических лиц и ИП на следующих условиях:
Срок финансирования - 12-60 мес.
Ставка в бел. руб от 13,0% годовых, в долларах США от 8,5% годовых, в евро от 9,0% годовых.
Собственное участие - от 20%