Назад к
списку
Цена от собственника
250.6 м² - общая площадь
Арендатор не оплачивает услуги агентства
Бизнес центр на ул. Л. Чайкиной, 14, общая площадь 2010.9 кв.м, 6 этажей, наземный паркинг, шаговая доступность метро "Автозаводская".
Введено в эксплуатацию в 2010 году.
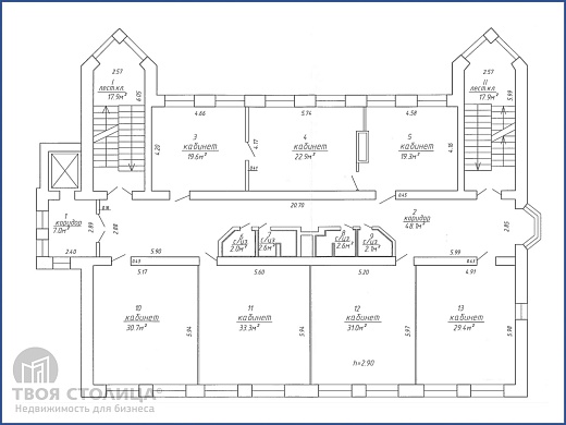
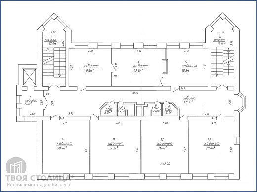
Предложенный офисный блок на 4 этаже, площадью 250.6 кв.м, представлен кабинетной системой с 2-мя с/у.
Качественная отделка офисов:
-керамическая плитка/ковролин на полу;
-стены оштукатурены/окрашены, оклейка обоями;
-мебель, при необходимости.
Инженерия и коммуникации здания:
-вентиляция с искусственным побуждением, кондиционеры;
-разведены электрические и слаботочные сети;
-телефонизация;
-пожарная/охранная сигнализация.
Местоположение:
-близость ст. метро "Автозаводская".
Развитая инфраструктура района и транспортная доступность:
остановки общественного транспорта, отделения банков и банкоматы, точки общепита. В здании на первом этаже магазин "Хит! Экспресс", соседи - Белгосстрах, IT компания. В соседних зданиях размещены театр "Новый театр", спортивный комплекс "Янтарь", спортивная школа, в шаговой доступности ресторан "Шоколад".
Арендатор не оплачивает услуги агентства.
ОДО «Твоя столицаконсалт», лицензия выд. Минюстом 20.09.2006 № 02240/129, УНП 190285638, договор РУ №94/6а от 10.11.2025
Введено в эксплуатацию в 2010 году.
Предложенный офисный блок на 4 этаже, площадью 250.6 кв.м, представлен кабинетной системой с 2-мя с/у.
Качественная отделка офисов:
-керамическая плитка/ковролин на полу;
-стены оштукатурены/окрашены, оклейка обоями;
-мебель, при необходимости.
Инженерия и коммуникации здания:
-вентиляция с искусственным побуждением, кондиционеры;
-разведены электрические и слаботочные сети;
-телефонизация;
-пожарная/охранная сигнализация.
Местоположение:
-близость ст. метро "Автозаводская".
Развитая инфраструктура района и транспортная доступность:
остановки общественного транспорта, отделения банков и банкоматы, точки общепита. В здании на первом этаже магазин "Хит! Экспресс", соседи - Белгосстрах, IT компания. В соседних зданиях размещены театр "Новый театр", спортивный комплекс "Янтарь", спортивная школа, в шаговой доступности ресторан "Шоколад".
Арендатор не оплачивает услуги агентства.
ОДО «Твоя столицаконсалт», лицензия выд. Минюстом 20.09.2006 № 02240/129, УНП 190285638, договор РУ №94/6а от 10.11.2025
Дата
обновления: 13.02.2026
- Год постройки - 2010
- Кирпич
- 4 из 6 этажей
- Юридический адрес
- Собственный санузел
- Вода
- Отопление
- Электричество
Офис в аренду, Минск, Чайкиной ул., 14
Чайкиной ул., 14, Заводской район:
24.76 руб / м² в мес.
7.5 EUR без НДС (УСН)
Для наших клиентов действует программа «Партнер-кредит». При приобритении данного объекта Вы можете
воспользоваться программой кредитования от нашего партнера
ЗАО «МТБ-Банк»*
На текущий момент ЗАО "МТБанк" рассматривает заявки на кредитование приобретении коммерческой недвижимости от юридических лиц и ИП на следующих условиях:
Срок финансирования - 12-60 мес.
Ставка в бел. руб от 13,0% годовых, в долларах США от 8,5% годовых, в евро от 9,0% годовых.
Собственное участие - от 20%