Позвонить:
Online-консультации: Перезвоним за 15 секунд:
Ожидайте звонка. Уже звоним...
Сеть офисов:
7735
Пн - Вс с 09.00 по 22.00
Объект реализован

Продажа двухкомнатной квартиры, Минск, Лобанка ул., 62

Минск, Лобанка ул., 62, Фрунзенский район : Сухарево
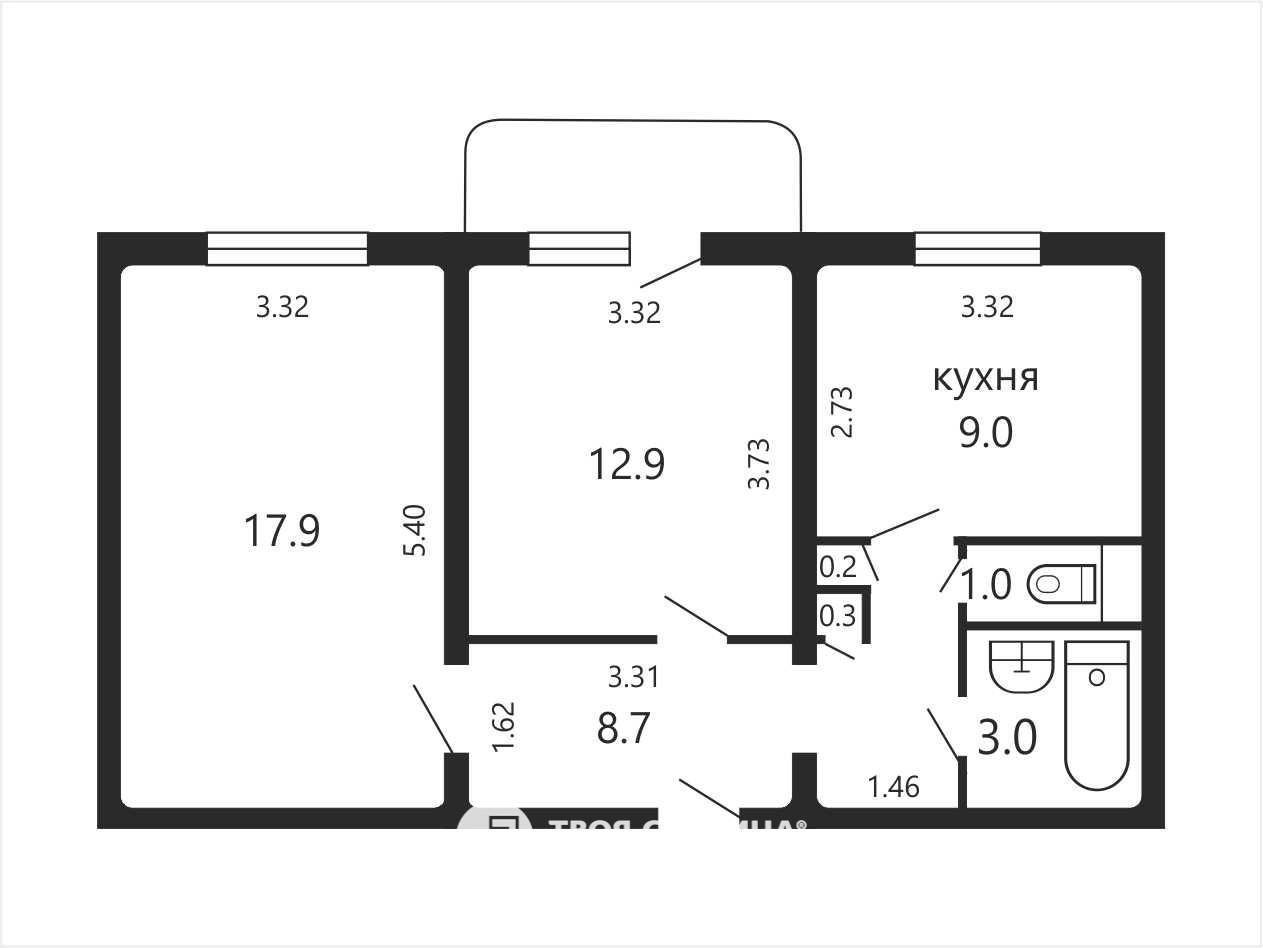
Общая площадь: 52.4 м²
Жилая площадь: 30.2 м²
Кухня: 9 м²
Этаж: 5 из 9
Комнаты: 2
Санузел: раздельный
Год постройки: 1993

Описание

Продается 2-комнатная квартира в Минске, Фрунзенский район, микрорайон Сухарево, по адресу: ул. Лобанка, 62.

Квартира расположена на 5 этаже 9-этажного дома 1993 года постройки.

Общая площадь по СНБ 53.4 составляет 52,4 м², жилая — 30,2 м², кухня — 9 м². Высота потолков — 2,50 м.

Квартира в хорошем жилом состоянии, выполнен качественный ремонт, что позволяет заехать и комфортно проживать без дополнительных вложений. Установлены стеклопакеты, металлическая входная дверь, приборы учета воды, домофон. Санузел раздельный, после свежего ремонта. Балкон застеклен и также отремонтирован, что создает дополнительное функциональное пространство.

Дом расположен в районе с развитой инфраструктурой: в шаговой доступности школа, детский сад, поликлиника, аптеки, магазины и объекты бытового обслуживания. Рядом зеленая зона для прогулок и отдыха.

Квартира отлично подойдет как для проживания, так и для инвестиции.

Свяжитесь  с нами  в  viber или telegram

 


ООО Твоя столица, УНП 101136973, лицензия №02240/15 от 17.02.2005г., договор на оказание риэлтерских услуг №376/13 от 06.04.2026г.
Читать далее

Риэлтер

Специализируюсь на всех операциях с недвижимостью: покупка, продажа, обмен, богатый опыт в срочных продажах квартир . Стремлюсь помочь клиенту выгодно осуществить сделку. Из личных качеств порядочность, доброжелательность, тактичность.
Обращаться
Колячонок Елена
5
(63 отзыва )
Программы и сервисы для выгодной покупки и продажи жилья
Ни одна сделка не признана недействительной
Группа компаний «Твоя столица», основанная в 1996 году, оказывает услуги во всех сегментах рынка недвижимости и является его лидером. В нашей команде более 250 высококвалифицированных специалистов.
1
2-комнатная квартира , Минск, Лобанка ул., 62
Лобанка ул., 62, Фрунзенский район: , Сухарево
52.4 / 30.2 / 9 м²
Похожие варианты
Все 28 предложения
Позвонить