Позвонить:
Online-консультации: Перезвоним за 15 секунд:
Ожидайте звонка. Уже звоним...
Сеть офисов:

Продажа однокомнатной квартиры, Минск, Игоря Лученка ул., 16

Новостройка
311 608 руб. ( 110 000 USD) Цены в USD указаны справочно по курсу Национального банка на дату 18.04.2026
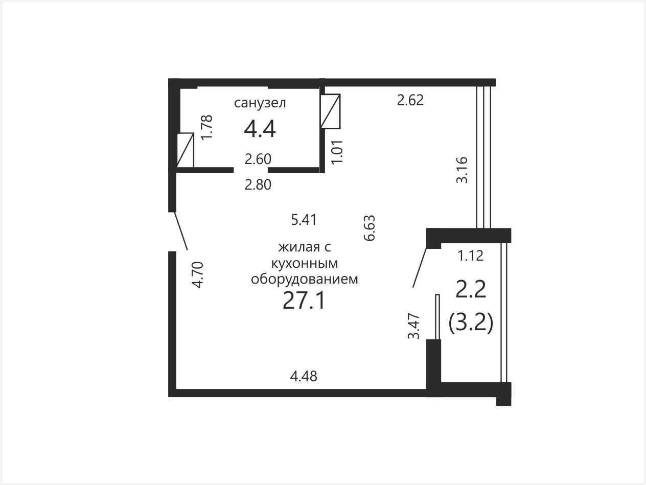
Общая площадь: 33.7 м²
Жилая площадь: 27.1 м²
Кухня: 1 м²
Этаж: 3 из 13
Комнаты: 1
Санузел: совмещенный
Год постройки: 2025

Описание

Современная однокомнатная квартира в комплексе Minsk World

ул. Игоря Лученка, 16 | Октябрьский район, Минск

Идеальный баланс стиля, комфорта и локации — квартира, созданная для жизни в ритме современного города или как надёжная инвестиция в одном из самых перспективных районов Минска.

О квартире

Квартира расположена в новом доме 2025 года постройки, возведённом по каркасно‑блочной технологии, на 3 этаже 13‑этажного дома.

Площадь по СНБ — 33,7 м²

Общая площадь — 31,5 м²

Совмещённый санузел

Застеклённая лоджия

Панорамные окна, южная сторона

Высокие потолки и большие окна наполняют пространство светом и создают ощущение воздуха и простора.

Интерьер и оснащение

В квартире выполнен качественный современный евроремонт — формат «заезжай и живи», без дополнительных вложений.

Пространство грамотно зонировано: выделена полноценная спальная зона

Встроенная кухня — лаконичная, функциональная и эстетичная

Установлена бытовая техника

Металлическая входная дверь

Современные стеклопакеты

Домофон

Счётчики воды

Каждый элемент продуман с точки зрения комфорта и повседневного удобства.

Локация и инфраструктура

Minsk World — это новый городской формат, где всё необходимое находится рядом:

школы и детские сады

поликлиника и аптеки

магазины, кафе, сервисы

благоустроенные зелёные зоны

Станция метро «Аэродромная» — в шаговой доступности

Удобное транспортное сообщение и быстрый доступ к центру города

Прямая продажа.

Свяжитесь  с нами  в  viber или telegram

 


ООО Твоя столица, УНП 101136973, лицензия №02240/15 от 17.02.2005г., договор на оказание риэлтерских услуг №417/13 от 14.04.2026г.
Читать далее

Агент по недвижимости

Ваш надежный агент по недвижимости Помогаю выгодно продать, купить или обменять жилье – с заботой о ваших интересах! Нужно быстро и выгодно решить вопрос с недвижимостью? Я возьму на себя все хлопоты и доведу сделку до идеального результата!✔Как я работаю? • Проведу профессиональную оценку вашей недвижимости • Разработаю эффективную стратегию продажи/покупки • Возьму на себя все переговоры и оформление документов • Сэкономлю ваше время и нервы✔Готовы обсудить вашу ситуацию?✔ Свяжитесь удобным способом: P.S. Для меня важны не просто закрытые сделки, а довольные клиенты, которые рекомендуют меня друзьям!
Обращаться
Офис 2 «Центральный»
ул. Кирова, 8, пом. 7-6
Зуева Ольга
5
(4 отзыва )
Связаться с агентом
Программы и сервисы для выгодной покупки и продажи жилья
Ни одна сделка не признана недействительной
Группа компаний «Твоя столица», основанная в 1996 году, оказывает услуги во всех сегментах рынка недвижимости и является его лидером. В нашей команде более 250 высококвалифицированных специалистов.
1
1-комнатная квартира , Минск, Игоря Лученка ул., 16
Игоря Лученка ул., 16, Октябрьский район: , Минск Мир (Minsk World)
33.7 / 27.1 / 1 м²
руб.
USD
Похожие варианты
Все 22 предложения
Позвонить