Позвонить:
Online-консультации: Перезвоним за 15 секунд:
Ожидайте звонка. Уже звоним...
Сеть офисов:

Продажа однокомнатной квартиры, Копище, Авиационная ул., 16

Копище, Авиационная ул., 16, Пригород
Новостройка
255 712 руб. ( 88 500 USD) Цены в USD указаны справочно по курсу Национального банка на дату 12.04.2026 Предложить свою цену
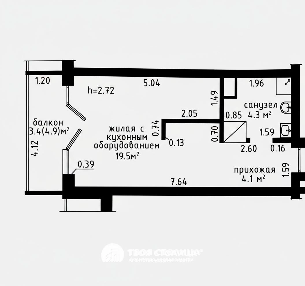
Общая площадь: 31.3 м²
Жилая площадь: 19.5 м²
Кухня: 1 м²
Этаж: 4 из 23
Комнаты: 1
Санузел: совмещенный
Год постройки: 2021

Описание

Продается уютная однокомнатная квартира в современном жилом комплексе, расположенном в живописном районе Копище, Минск. Идеальный вариант для тех, кто ищет комфортное жилье в новостройке с развитой инфраструктурой и близостью к природе.

Квартира находится на 4 этаже 23-этажного панельного дома 2021 года постройки по адресу Авиационная ул. 16. Общая площадь составляет 31.3 кв.м, жилая – 19.5 кв.м. Высота потолков – 2.72 м. Выполнен хороший ремонт, что позволяет сразу заселиться. Установлены металлическая дверь и стеклопакеты, есть счетчики воды, застекленный балкон. Санузел совмещенный, окна выходят на юго-восток, обеспечивая обилие света.

Жилой комплекс предлагает уникальную инфраструктуру: огороженная территория со шлагбаумом, видеонаблюдение, ухоженный подъезд, оригинальная отделка мест общего пользования. Для жителей предусмотрены спортивные и детские развивающие площадки, «сухой» фонтан, амфитеатр, летнее кафе. Доступны наземные и подземные паркинги, а также велосипедные парковки. Вместительная гостевая парковка.

Расположение дома сочетает в себе преимущества загородной жизни и городской доступности. Рядом с домом раскинулся сосновый лес – идеальное место для прогулок и отдыха на свежем воздухе. В шаговой доступности вся необходимая инфраструктура: школа, детский сад, поликлиника, аптеки, магазины, торговые и бизнес-центры. Отличное транспортное сообщение, остановки общественного транспорта рядом, удобный выезд на МКАД и всего несколько минут езды до центра столицы. Купите квартиру в Копище и наслаждайтесь комфортом современной жизни в Минске и Минском районе!

Свяжитесь  с нами  в  viber или telegram

 


ООО Твоя столица, УНП 101136973, лицензия №02240/15 от 17.02.2005г., договор на оказание риэлтерских услуг №132/13 от 10.02.2026г.
Читать далее

Агент по недвижимости

Почему клиенты доверяют мне уже два десятилетия? Уникальный опыт – прошла путь: агент, риэлтер, начальник отдела в АН "Твоя столица". -Человеческий подход – для меня важны не только квадратные метры, но и ваши эмоции. -Профессионализм + душа – объединяю экспертные знания с искренним желанием помочь. Рекомендации благодарных клиентов - лучшая оценка моей работы. • Что вы получаете, работая со мной? • Глубокий анализ рынка – объективная оценка и прогнозирование. • Персональную стратегию – индивидуальный подход к каждой ситуации. • Полное сопровождение – от первой консультации до передачи ключей. • Защиту интересов – жесткий переговорный процесс в вашу пользу • Экономию времени – беру на себя все организационные вопросы. • Готовы к сотрудничеству? Звоните или пишите — обсудим вашу ситуацию.• В недвижимости важно не только знать рынок, но и понимать людей. Именно это сочетание делает мою работу по-настоящему ценной для клиентов.
Обращаться
Офис 2 «Центральный»
ул. Кирова, 8, пом. 7-6
Дмитриева Наталья
5
(108 отзывов )
Связаться с агентом
Программы и сервисы для выгодной покупки и продажи жилья
Ни одна сделка не признана недействительной
Группа компаний «Твоя столица», основанная в 1996 году, оказывает услуги во всех сегментах рынка недвижимости и является его лидером. В нашей команде более 250 высококвалифицированных специалистов.
1
1-комнатная квартира , Копище, Авиационная ул., 16
Авиационная ул., 16, Пригород:
31.3 / 19.5 / 1 м²
руб.
USD
Похожие варианты
Все 26 предложения
Позвонить