АПАРТАМЕНТЫ НЕДЕЛИ
В квартале «Родная страна» предусмотрены:
- два многофункциональных здания с апартаментами для жизни и бизнеса
- школа с бассейном и спортивными площадками, рассчитанная на 920 учащихся
- детский сад с бассейном для 230 воспитанников
- места для парковки велосипедов
- стоянка для владельцев автомобилей

В апартаментах для всех проживающих есть возможность:
- регистрации по месту жительства с семьёй (оформить так называемую «прописку»)
- оформить регистрацию юридического лица
Действуют различные варианты приобретения. Программы потребительского кредитования.
Возможна рассрочка до 48 месяцев с первоначальным взносом от 20%.

|
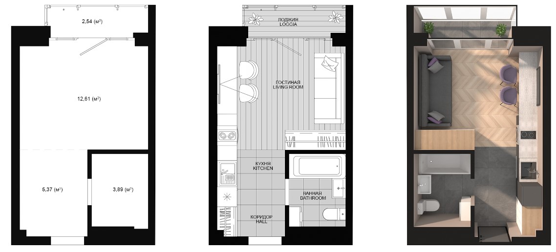
Апартаменты свободной планировки Площадь: 24,4 м2 Цена м2: 1170 евро Стоимость квартиры: 28 548 евро |
|
|
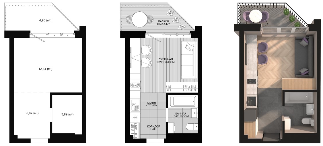
Апартаменты свободной планировки Площадь: 26,33 м2 Цена м2: 1170 евро Стоимость квартиры: 30 806 евро |
|
|
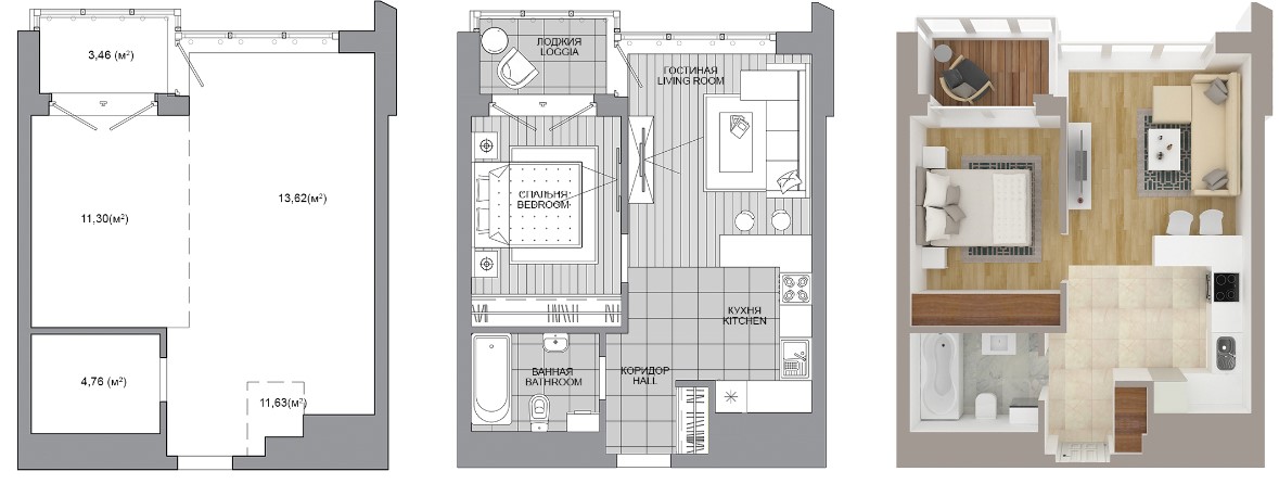
Апартаменты свободной планировки Площадь: 50 м2 Цена м2: 1110 евро Стоимость квартиры: 55 500 евро |
|
|
Просторные апартаменты свободной планировки для Вашей семьи Площадь: 70,62 м2 Цена м2: 1070 евро Стоимость квартиры: 75 563 евро |
|
В квартале «Австралия и Океания» действуют акционные предложения на выделенные апартаменты. Квартал находится в самом центре жилого комплекса, в пешей доступности от станции метро, Международного финансового центра – центра деловой активности не только жилого комплекса, но и всей столицы, а также рядом с крупнейшим торгово-развлекательным центром «Avia Mall».
|
Апартаменты свободной планировки Площадь: 44,28 м2 Акционная цена м2: 1040 евро Стоимость квартиры: 46 051 евро |
|
|
Апартаменты свободной планировки Площадь: 44,42 м2 Акционная цена м2: 1050 евро Стоимость квартиры: 46 641 евро |
|