Спрос на квартиры в ЖК «Дубравинский» растет
Еще осенью про ЖК «Дубравинский» практически никто не знал. А сегодня наши специалисты «Твоя столица. Новостройцентр» говорят, что это один из самых востребованных проектов в нашем агентстве. Почему же его выбирают клиенты? Мы знаем ответ: хорошая цена, выгодные условия кредитования, развитая инфраструктура, большой выбор квартир. А также удачные планировки. Конечно, у каждого свои предпочтения, и клиенты выбирают квартиры, исходя их своих желаний и целей. Но есть те варианты, которые востребованы большинством, и в этом материале познакомим вас с самыми популярными планировками. Возможно, вы найдете то, что ищите.

Планировки в ЖК «Дубравинский»
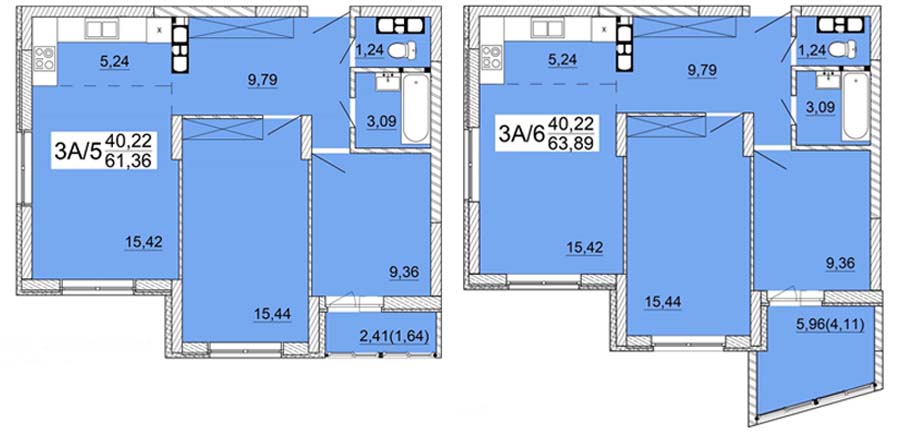
1-комнатная квартира: квадратная планировка правильной формы, оптимальная площадь около 38 кв. м, просторный смежный санузел более 4 кв. м. Квартира для тех, кто любит много света: два окна в комнате и окно с лоджией.

2-комнатная квартира: снова правильная прямоугольная форма, просторная кухня-гостиная 27 кв. м с панорамным окном у входа на лоджию, раздельный санузел.

3-комнатная квартира: несколько лоджий в данных планировках для тех, кто любит просторные и стандартные варианты. Два окна на разные стороны света в кухне-гостиной.

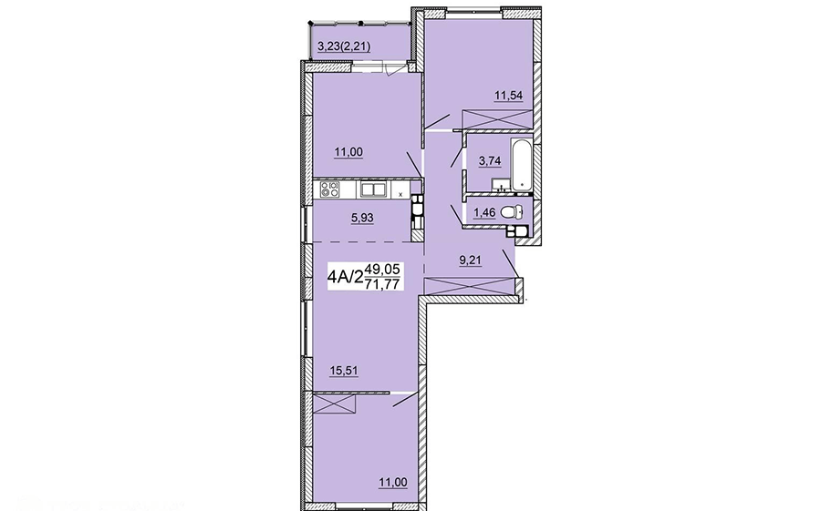
Редкое предложение на рынке — компактная 4-комнатная квартира площадью около 72 кв. м, при этом жилые комнаты более 11 кв. м. Квартира на три стороны света, два окна в кухне-гостиной, раздельный санузел.

Стоимость кв. м в комплексе стартует от 1080 USD (2683 BYN по курсу НБ РБ). Возможна рассрочка до декабря 2023 г. с первоначальным взносом 30%. Квартиру можно купить при привлечении кредита. Самые выгодные условия по спецпрограмме от ОАО «Белинвестбанк» со ставкой от 7,41% годовых в первые 12 месяцев. Наши специалисты по кредитованию не только просчитают ежемесячные платежи, но и помогут подготовить документы в банк. Все наши услуги при приобретении новостройки бесплатны.
Если же вам нужно для покупки квартиры в ЖК «Дубравинский» продать свое жилье, то можете воспользоваться нашей программой «Переезжаем в новостройку». Мы найдем покупателя на вашу квартиру, а квартиру в новостройке забронируем.
За подробной консультацией обращайтесь к нам по тел.:
- +37517 336-77-30,
- +37529 371-01-01.
![]() | ![]() |

