Старт продаж строящегося дома в ЖК «Левада»
ЖК «Левада» давно на слуху и уже понятно, что речь идет о комфорте в центре города. У комплекса очень много плюсов: сформировавшаяся и развитая инфраструктура района, близость к городскому транспорту, но в тоже время удаленность от шума и прекрасный вид из окна на реку Свислочь.

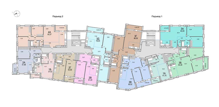
В нашем агентстве стартуют продажи квартир в новом доме №5.1 по генплану, который примет своих жильцов в июне 2023 г. В доме будет 9 этажей и всего 88 квартир. Собственная инфраструктура и дворовая территория включают: ландшафтный двор, функциональные площадки для детей разных возрастов, наземная стоянка для жителей и гостей квартала. К услугам жителей жилого комплекса — служба эксплуатации, которая отвечает за то, чтобы все вопросы, связанные с проживанием в домах, решались быстро и профессионально. Создано мобильное приложение, которое позволит упростить взаимосвязь между жильцами и сервисной службой, повысит скорость оперативного реагирования на заявки, позволит жильцам взаимодействовать с оборудованием стоянок и домофонными системами.
К базовым характеристикам относятся: панорамное остекление; высокие потолки — 2,7 м; стяжка пола и штукатурка стен; оконные блоки из ПВХ-профиля с заполнением двухкамерным стеклопакетом; «холодное» остекление лоджий; входная металлическая дверь, из сантехпосуды — унитаз; разводка электрики с установкой розеток и выключателей, подводка оптоволокна; установка счетчиков воды, тепла и электроэнергии. Квартиры предлагаются без отделки. А это значит, что полет вашей дизайнерской фантазии безграничен.
Входы в подъезды расположены с внешней стороны домов и имеют сквозной проход во внутренний двор. На минус первом этаже, на который можно попасть на лифте, разместятся кладовые помещения, что, конечно, является большим удобством для хранения крупногабаритных вещей.

В ЖК «Левада» стоимость 1-комнатных, 2-комнатных квартир до 52 кв. м составляет 1300 USD; 2-комнатных квартир свыше 52 кв. м — 1250 USD; 3- и 4-комнатных квартир — 1200 USD. Общая цена квартир — 54 275–111 924 USD. При наличии кладовой стоимость 1 кв. м увеличивается на сумму белорусских рублей, эквивалентную 30 USD.

По всем вопросам звоните:
- +37517 336-77-30,
- +37529 371-01-01,
- +37529 771-01-01.
![]() | ![]() |

