Старт продаж квартир в новом доме с уникальным видом на р. Свислочь!
18.10.2021
Строительство жилья
Чудесная новость накануне выходных, которую многие так ждали – в продажу поступили квартиры в 6-тиэтажном доме в ЖК «Левада».
Главная особенность этого дома – наличие квартир с прекрасным видом на р. Свислочь. Некоторые квартиры на последних этажах имеют дополнительную опцию – систему второго света и терраса на крыше.


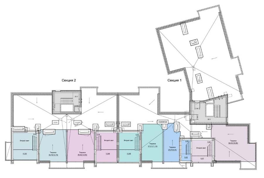
Немного информации о доме:
- находится в стадии строительства. Срок сдачи – 3 квартал 2022 год;
- состоит из 2 секций и 6 этажей –малоэтажная застройка, всего 45 квартир;
- первый этаж полностью отдан под коммерческие помещения;
- современные дизайнерские решения и просторные холлы в парадных радуют глаз и добавляют комфорт;
- отдельные помещения для хранения велосипедов и колясок освободят место в квартире.
- Территория вокруг дома закрытая. Дополнительную камерность обеспечит многоуровневая система безопасности с круглосуточным видеонаблюдением. Важно не только удобно, а и красиво - двор с ландшафтным дизайном, концептуальные детские и спортивные площадки.
О квартирах:
- Площадь квартир на любой кошелек - от 33 до 123 кв.м; стоимость от 58 345 до 282 600 у.е.
- Потолки выше стандарта – 2,7м.
- Квартиры без отделки – уникальная возможность реализовать любое дизайнерское решение. Стяжка, штукатурка, разводка электрики – есть.
- В некоторых квартирах на последних этажах есть система второго света и терраса на крыше


Как купить квартиру в жилом комплексе:
Есть несколько вариантов оплаты. Самый простой и удобный – 100% оплата.
Можно воспользоваться и кредитом. Сегодня существуют следующими программами кредитования:
- ОАО «Белинвестбанк»: первый год - 9,36% годовых, со второго года -18,23%. Срок кредитования 10, 20 лет;
- ОАО «Приорбанк»: под 19,02% годовых. Срок кредитования до 10 лет;
- ОАО «БЕЛВЭБ» 22,9% годовых, срок кредитования до 15 лет.
- Также можно воспользоваться рассрочкой, которая действует до августа 2022 года.
Звоните:
Контактное лицо
Горячая линия клиентской поддержки
Свяжитесь с руководителем подразделения для решения оперативных вопросов
Мы рядом - для поддержания качества нашей работы!
Служба клиентинга
Сюда Вы можете обратиться с системными пожеланиями к нашей работе или жалобой
Связаться с руководством

