Осталось еще несколько квартир в продаже.
30.09.2021
Строительство жилья
1 октября дольщики ЖК «Брестский» получают ключи.
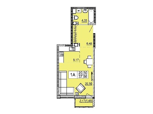
- 1- комнатные квартиры 37,96 м2 - 1250 USD (осталась квартира: 1А планировка - 1 этаж);
- 2-комнатные квартиры 48-50 м2 - 1200 USD (осталась квартира: 2Д планировка- 1 этаж);
- 3-комнатные квартиры 60-68 м2- - 1150 USD (осталась квартира: 3А планировка- 1 этаж)
![]() | ![]() | ![]() |
Оплата производится по курсу Национального банка Республики Беларусь на день зачисления денежных средств на счёт Застройщика.
Специальная кредитная программа от Белинвестбанк:
- 9,36% годовых за первые 12 месяцев кредитования, 18,23% - с 13 месяца при сроке кредита до 20 лет;
- 12,87% годовых за первые 24 месяцев кредитования, 18,23% - с 25 месяца при сроке кредита до 20 лет;
- 12,87% годовых за первые 12 месяцев кредитования, 18,23% - с 13 месяца при сроке кредита до 10 лет.
Вы можете получить бесплатную консультацию по кредитам от специалиста сектора ипотечного кредитования.
Задайте все интересующие вас вопросы по телефонам:
- +37517-336-77-30,
- +37529-371-01-01,
- +37529-771-01-01.
![]() | ![]() |
Контактное лицо
Горячая линия клиентской поддержки
Свяжитесь с руководителем подразделения для решения оперативных вопросов
Мы рядом - для поддержания качества нашей работы!
Служба клиентинга
Сюда Вы можете обратиться с системными пожеланиями к нашей работе или жалобой
Связаться с руководством




