Старт продаж нового дома, квартиры от 70 200 BYN
Выпушена проектная декларация № 1 по объекту «Строительство жилого комплекса в г.п.Мачулищи» 1 очередь строительства, 3 пусковой комплекс – жилой дом №1.2.

Сведения об этапах строительства и сроках его реализации:
- Начало строительства – октябрь 2020г.
- Нормативная продолжительность строительства – 13 месяцев.
- Предполагаемое окончание строительства – ноябрь 2021г.


Стоимость квадратного метра в этих квартирах - от 2625 BYN. Цена квартиры от 70 166 BYN (27 700USD)
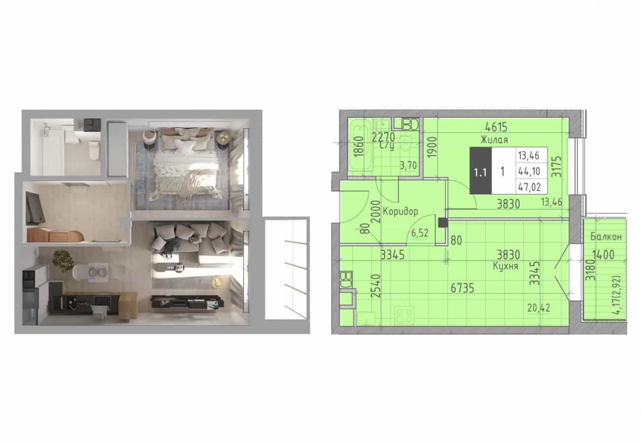
- 1-комнатных общей площадью от 42,70 до 48,28 м2 – 49 шт.

Один из 10 вариантов планировок однокомнатных квартир.
Стоимость квадратного метра в этих квартирах – от 1875 BYN. Цена квартиры от 81 956 BYN (32 357USD)
- 2-комнатных общей площадью от 59,87 до 67,89 м2 – 50 шт.,

Один из 10 вариантов планировок двухкомнатных квартир.
Стоимость квадратного метра в этих квартирах – от 1865 BYN. Цена квартиры от 114 287 BYN (45 121USD)
- 3-комнатных общей площадью от 78,12 до 79,88 м2 – 15 шт.;

Один из 3-х вариантов планировок трёхкомнатных квартир.
Стоимость квадратного метра в этих квартирах – от 1835 BYN. Цена квартиры от 143 442 BYN (56 631USD)
Старт продаж 07.06.2021 г. Цены зафиксированы в белорусских рублях, платежи производятся дольщиком в белорусских рублях.
Место нахождения объекта:

Характеристика объекта строительства:

Проектом предусмотрено строительство 5-этажного 127-квартирного жилого дома повышенной комфортности с техподпольем.
- Конструктивная схема здания – монолитно-каркасная.
- Наружные стены – керамические поризованные блоки с утеплением минераловатными плитами.
- Внутренние стены из кирпичной кладки толщиной 250 мм.
- Перекрытие – монолитное железобетонное.
- Кровля – малоуклонная рулонная двухслойная.
- Фасад дома – из линеарных панелей (вентилируемый фасад) с применением керамогранита.
- Оконные проемы – ПВХ профиль.
- Остекление лоджий – на всю высоту с глухой нижней частью из многослойного безопасного стекла.
-
Крыльцо и вход в жилой дом – с учетом мероприятий по созданию безбарьерной среды для физически ослабленных лиц с двупольной входной дверью, оборудованной прибором самозакрывания.

Для получения подробной информации о жилом комплексе «Соколиный край» звоните нам:
- +37517-336-77-30,
- +37529-771-01-01,
- +37529-371-01-01.
![]() | ![]() |

