Позвонить:
Online-консультации: Перезвоним за 15 секунд:
Ожидайте звонка. Уже звоним...
Сеть офисов:
Назад к списку
Объект в архиве

дом, Медухово

Медухово 25 км от МКАД, Логойский район
Участок 39.98 соток, площадь дома 388.3 м 2
1 636 607 руб.
595 000 USD  Цены в USD указаны справочно по курсу Национального банка на дату 25.05.2026
Предложить свою цену
  • Лес рядом
  • Водоем/река рядом
  • Гараж
  • Бассейн
  • Ландшафтный дизайн
  • Сад
  • Хоз. постройки
  • Удобства в доме

Элитный комплекс премиум-класса, для тех, кто выбирает лучшее!

Единственный в своем роде, можно сказать уникальный объект в деревне Медухово, которая расположилась в живописном месте, всего в 25 километрах от Минска по Логойскому направлению.

Принимая чашку утреннего кофе у себя на террасе, Вы будете слышать пение птиц, а не ссоры соседей и шум машин. Также не забывайте про великолепные виды и чистый воздух.

Давайте вместе разбираться, что из себя представляет данное предложение:

  • просторный и светлый деревянный дом из профилированного бруса, который был построен в 2016 году. При устройстве кровли была использована немецкая черепица. Общая площадь 106 м.кв., из которых 67 м.кв. - жилая. Максимально рациональная и продуманная планировка: огромная гостиная со вторым светом и высотой потолка больше 6 метров, большая кухня, две отдельные комнаты, санузел 6.2 м.кв., топочная, кладовая-постирочная, прихожая, а также мансардный этаж, где оборудована детская комната. Здесь всё делалось для себя, поэтому ремонт выполнен максимально качественно, при этом использовались только дорогостоящие материалы: на полу уложена доска из массива лиственницы (древесина, которая характеризуется высокой устойчивостью к повышенной влажности и перепадам температур), а также итальянская плитка с подогревом. Европейские светильники и электрика, видеодомофон, деревянные стеклопакеты, входные двери из массива, камин и дубовая лестница. Встроенная кухня с фурнитурой Blum, которая полностью укомплектована необходимой техникой и столешницей из искусственного камня;

  • в продолжении концепции натуральных материалов была построена баня. Нет, даже не так. БАНЯ. Ведь это отдельно стоящий деревянный дом с печью на дровах. Здесь также разместились уютная спальня, кухня-гостиная, которая оборудована мебелью и техникой, санузел и терраса, с которой легко можно попасть прямиком в бассейн. На полу уложена доска из массива лиственницы, а стены из массива сосны. А теперь представьте запах, который Вы вдыхаете во время парения;

  • бассейн. Да, он достоин отдельного упоминая. Ведь его размеры действительно впечатляют: 6 на 15 и на 9 метров. А глубина - от 180 до 200 см. Отличная система фильтрации;

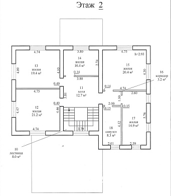
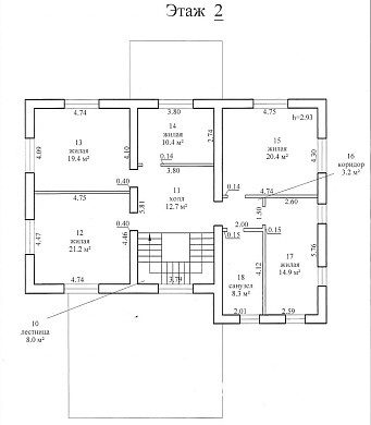
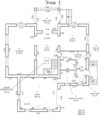
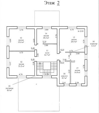
  • двухэтажный современный дом, который был построен в 2023 году. При возведении стен использовались газосиликатные блоки с утеплением, которое обладает высокими изоляционными свойствами и экологичностью. При устройстве кровли была использована металлочерепица. Фасад облицован клинкерной плиткой. Общая площадь - 288.4 м.кв., из которых 128.1 м.кв. - жилая. Продуманная планировка: на первом этаже расположились огромная гостиная с кухней 21 м.кв., санузел, котельная, погреб, две прихожие, гараж и терраса с шикарным видом; на втором этаже - 5 изолированных жилых комнат с большим количеством света и санузел. Здесь уже всё готово под чистовые работы, ведь уже выполнена качественная черновая отделка: стены и перегородки оштукатурены, чистовая стяжка пола, разводка электрики: выключатели и розетки, радиаторы отопления с терморегуляторами. В санузлах уже установлена инсталляция. На первом этаже уже смонтирован теплый пол по немецкой технологии.

  • летняя кухня с зоной барбекю и печкой для казана, которая сделана из коленного кирпича;

Если Вы думаете, что это всё, то хочу Вас обрадовать - это далеко не так. А как насчет участка 20 соток, который находится в частной собственности? Участок частично обнесен забором на монолитном фундаменте.

Коммуникации:

  • собственная скважина, глубина которой достигает более 100 метров. Установлены фильтры для обезжелезивания и смягчения воды;
  • в первом доме установлен одноконтурный газовый котёл;
  • канализация местная со станцией очистки;
  • дополнительно сделана ливневая канализация;
  • электроснабжение с напряжением 380 вольт.

Рядом лесной массив. А до горнолыжного спортивно-оздоровительного комплекса Логойск всего 1.5 километра.

Хорошие подъездные пути. Регулярное транспортное сообщение с Минском. На машине до МКАДа можно добраться за 20 минут.

Прекрасное, тихое место как для жизни и отдыха, так и для ведения бизнеса.

Если вас заинтересовал данный объект, то звоните! Не упустите возможность стать его владельцем!


ООО Твоя столица, УНП 101136973, лицензия №02240/15 от 17.02.2005г., договор на оказание риэлтерских услуг №475/13 от 10.06.2025г.

Видео об объекте
Офис ЗН «Центральный» , ул. Кирова, 8, пом. 7
дом, Медухово
Медухово 25 км от МКАД, Логойский район
  • 388.3 м 2
  • 39.98 сот.
1 636 607 руб.
595 000 USD
Позвонить