Позвонить:
Online-консультации: Перезвоним за 15 секунд:
Ожидайте звонка. Уже звоним...
Сеть офисов:
Назад к списку
Объект в архиве

дача, Пралески

Пралески 35 км от МКАД, Воложинский район
Участок 6.69 соток, площадь дома 92.5 м 2
52 407 руб.
18 500 USD  Цены в USD указаны справочно по курсу Национального банка на дату 17.04.2026
  • Лес рядом
  • Водоем/река рядом
  • Печь

Продается уютная дача в СТ Пралески в 35 км от МКАД, Раковское направление

Ищете идеальное место для загородного отдыха? Представляем к продаже уютную дачу в живописном месте в СТ Пралески, расположенную всего в 35 км от МКАД по Раковскому направлению. Это отличное предложение для тех, кто ценит тишину, свежий воздух и близость к природе, ведь рядом находится лес.

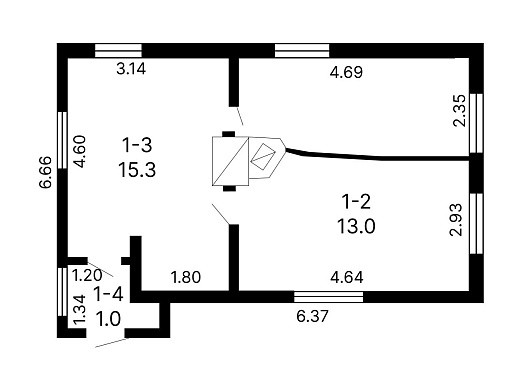
Садовый домик общей площадью 92.5 кв.м. построен в 1990 году. Деревянный дом имеет 2 этажа и состоит из 5 комнат, обеспечивая достаточно пространства для комфортного проживания всей семьи. Стены выполнены из натурального дерева, что создает особый микроклимат, а крыша покрыта шифером. Установлены стеклопакеты ПВХ. В дом введена сезонная холодная вода, подключен электрический бойлер. Электричество 220В. Отопление осуществляется печью, которая не только согреет в прохладные вечера, но и добавит уюта. Имеется подвальное помещение по периметру всего дома. Санузел расположен на улице.

Дом расположен на участке площадью 4.53 сотки, где вы сможете реализовать свои идеи по ландшафтному дизайну, обустроить зону барбекю или разбить небольшой сад. На участке растут плодовые деревья и кустарники, цветы. Установлена теплица. Участок огорожен сеткой-рабицей. Для огородничества есть отдельный участок 2,16 сотки.

Автолавка приезжает 6 дней в неделю.

Не упустите возможность приобрести недвижимость в СТ Пралески, где вы сможете наслаждаться спокойствием и красотой белорусской природы. Звоните прямо сейчас, чтобы узнать все подробности и договориться о просмотре!


ООО Твоя столица, УНП 101136973, лицензия №02240/15 от 17.02.2005г., договор на оказание риэлтерских услуг №233/13 от 05.03.2026г.

Обращаться
Старинова Галина
5
(80 отзывов )
дача, Пралески
Пралески 35 км от МКАД, Воложинский район
  • 92.5 м 2
  • 6.69 сот.
52 407 руб.
18 500 USD
Позвонить