Позвонить:
Online-консультации: Перезвоним за 15 секунд:
Ожидайте звонка. Уже звоним...
Сеть офисов:

Продажа четырехкомнатной квартиры, Минск, Сторожовская ул., 6

1 740 258 руб. ( 585 000 USD) Цены в USD указаны справочно по курсу Национального банка на дату 11.11.2025

Агент по недвижимости

Для меня работа в агенстве - это прежде всего знакомство с новыми людьми и способность им помочь, как профессионал, да еще когда работаешь в таком коллективе, это вдвойне приятней. В нашей работе очень ценится профессианализм, общительность и коммуникабельность, надеюсь всеми этими качествами я владею, по крайней мере всегда буду учиться и набираться опыта, так как все в нашей жизни зависит от нас самих и нашего желания достигать определенных вершин.
Обращаться
Офис 5 «Центральный»
ул. Кирова, 8, пом. 7-6
Гутковская Наталья
5
(80 отзывов )
Связаться с агентом
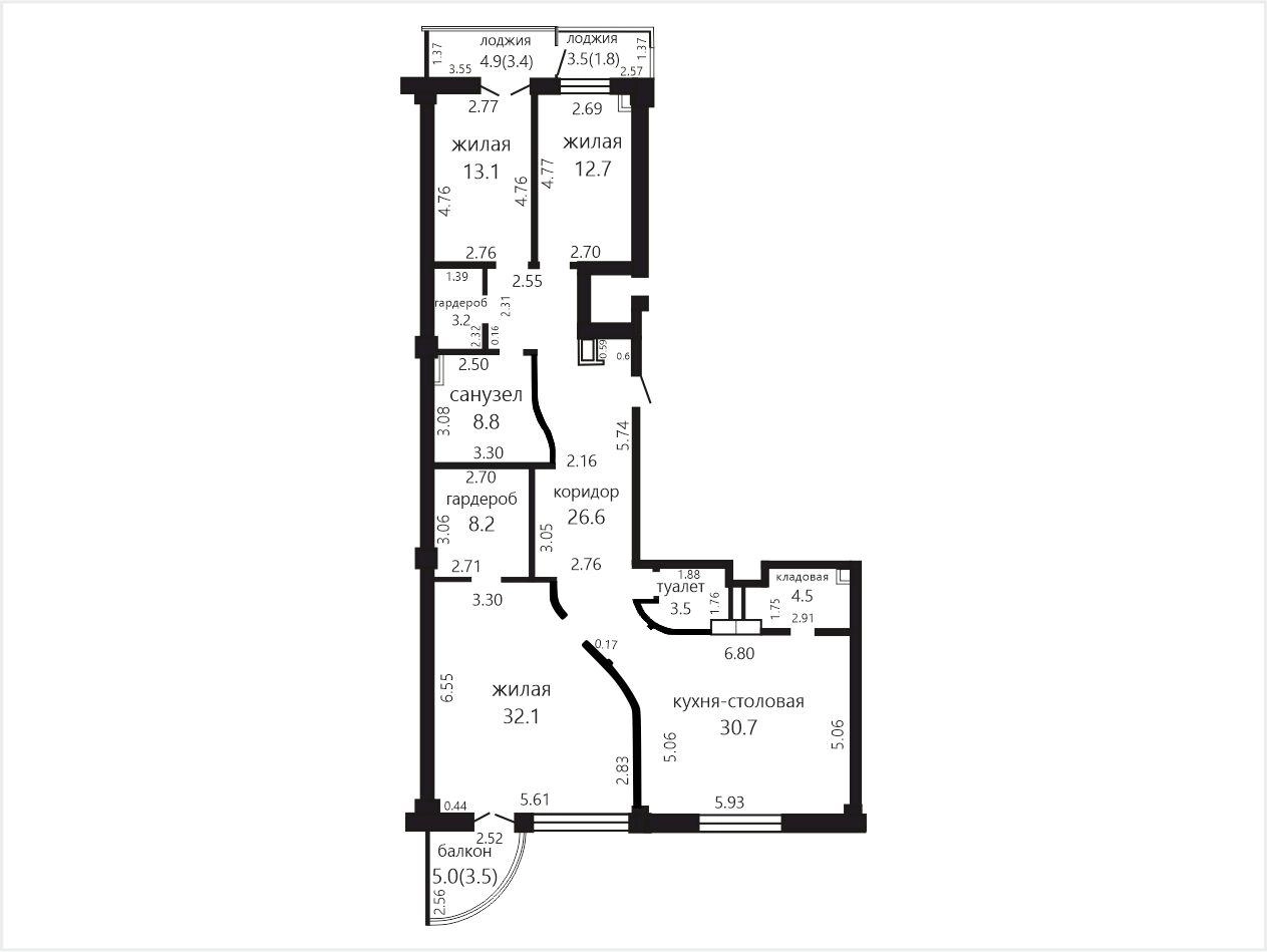
Общая площадь: 152.7 м²
Жилая площадь: 66.1 м²
Кухня: 30.7 м²
Этаж: 7 из 13
Комнаты: 3
Санузел: 2 санузла
Год постройки: 2011

Описание

Эксклюзивное предложение!

Просторная квартира в оригинальном архитектурном проекте Дом "У Троицкого". Расположен в самом сердце Минска, на набережной реки Свислочь. Возле комплекса находится историческое Троицкое предместье, множество парков и набережная.

Оригинальный дизайн, отделка качественными современными материалами, квартира полностью укомплектована бытовой техникой и мебелью - здесь все продумано до мелочей и сделано со вкусом.

При обустройстве квартиры делался акцент на комфорт во всём. Двери: входная - металлическая, межкомнатные - массив. В оконных проёмах установлены стеклопакеты. Напольные покрытия: паркет и керамическая плитка с системой "тёплый пол".

Кухня – это сочетание современного стиля и функциональности. Новейшие тенденции в сочетании с классикой делают её гармоничной. Кухонная зона со встроенной мебелью укомплектована бытовой техникой Smeg.

В отделке санузлов использована итальянская керамическая плитка. Стиральная и сушильная машина Smeg. Бойлер Ariston.

В квартире установлена приточно-вытяжная вентиляция с рекуперацией воздуха. Подключена охранная сигнализация. Видеодомофон.

Жилой комплекс полностью отвечает своему уровню: качественное строительство с использованием новейших технологий, уникальные планировки, светлые и просторные квартиры При высоте потолков в 3 метра установлены панорамные окна, что делает вид с квартир просто завораживающим.

Жильцов порадует подземный паркинг с лифтам прямо в подъезды. В придомовой зоне предусмотрены детские и спортивная площадки, уделено особое внимание озеленению территории. Весь комплекс "У Троицкого" круглосуточно контролируется системой видеонаблюдения.

Отличная инфраструктура. Все в шаговой доступности: магазины, отделение почты, аптеки, отделения банков, салоны красоты, детские сады, школы, гимназия. Троицкое предместье, 2 театра, посольства и дипломатические представительства. Парк Победы в 5-ти минутах от дома.

Рядом расположены торгово-развлекательные комплексы, ТЦ Галерея - в котором есть множество магазинов, салонов, бутиков. Также вблизи расположены ТЦ На Немиге, Немига 3. Множество кафе, ресторанов, бары на самой европейской улице города – Зыбицкой.

Хорошее транспортное сообщение: в 2-х минутах от дома станция метро "Немига" и остановки общественного транспорта. Удобный выезд на проспекты Машерова, Победителей и, на 2-ое кольцо. Прямой выезд на МКАД через Долгиновский тракт.

Мест для комфортных прогулок теплыми летними вечерами здесь предостаточно. Набережная порадует любителей отдыха, прогулок и пробежек.

Прямая продажа.

Поможем выгодно продать вашу квартиру для покупки этой. Расширенные консультации по покупке, продаже и обмену вашей квартиры на этот объект можно получить в Центральном офисе «Твоя столица" по адресу г. Минск, ул. Кирова, 8

Свяжитесь  с нами  в viber  или telegram

До 30.11. -  Черная  пятница в Твоей столице!
Покупателю - квартиры по сниженным ценам
Продавцу- Тест-драйв риэлтерских услуг!
14 дней - протестируйте  работу профессионалов и получите результат без дополнительных оплат!
Все консультации бесплатные!
Приходите! Кирова, 8, Независимости, 68
Звоните  по телефону 7735!


ООО Твоя столица, УНП 101136973, лицензия №02240/15 от 17.02.2005г., договор на оказание риэлтерских услуг №99/5 от 21.08.2024г.
Программы и сервисы для выгодной покупки и продажи жилья
Ни одна сделка не признана недействительной
Группа компаний «Твоя столица», основанная в 1996 году, оказывает услуги во всех сегментах рынка недвижимости и является его лидером. В нашей команде более 250 высококвалифицированных специалистов.
1
4-комнатная квартира , Минск, Сторожовская ул., 6
Сторожовская ул., 6, Центральный район: , Коммунистическая, Сторожевская, Оперный
152.7 / 66.1 / 30.7 м²
руб.
USD
Похожие варианты
Позвонить