Позвонить:
Online-консультации: Перезвоним за 15 секунд:
Ожидайте звонка. Уже звоним...
Сеть офисов:

Продажа четырехкомнатной квартиры, Минск, Мира просп., 14

Новостройка
401 337 руб. ( 141 246 USD) Цены в USD указаны справочно по курсу Национального банка на дату 14.04.2026
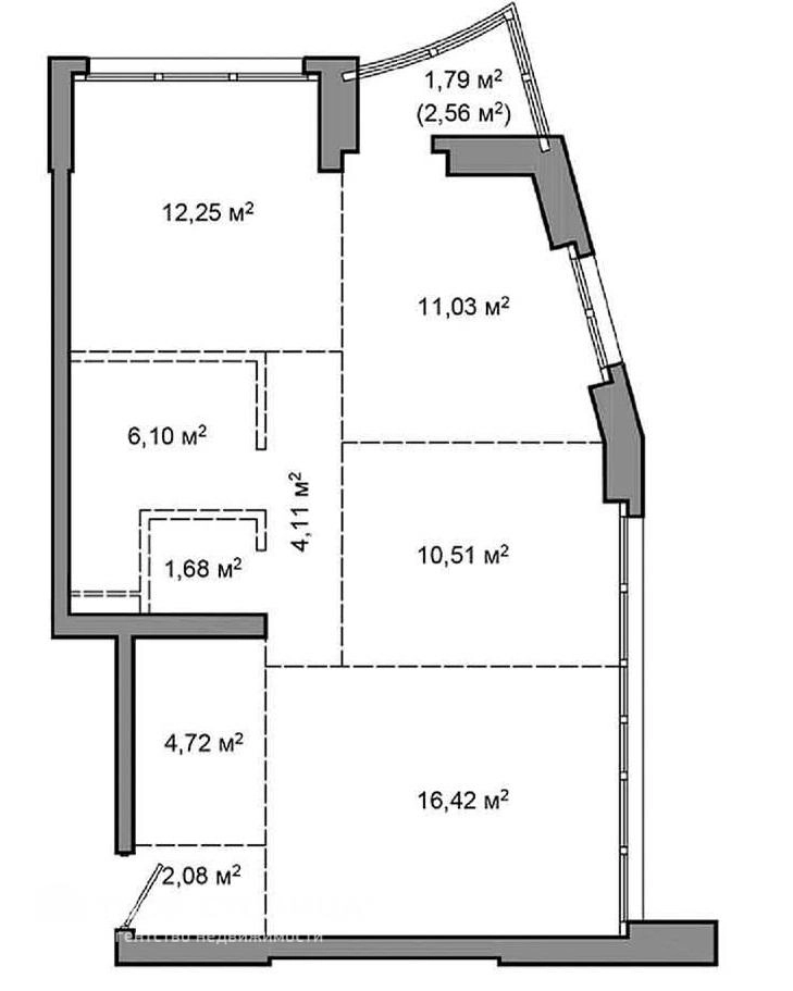
Общая площадь: 71.1 м²
Этаж: 1 из 25
Комнаты: 4 и более
Год постройки: 2021

Описание

Квартира свободной планировки в готовом доме.

Наличие и цену уточняйте при обращении.

Выбирайте и покупайте квартиру с «Новостройцентром»!

  • Вы платите за квартиру по цене застройщика.

Также Вы можете продать свою старую квартиру с агентством недвижимости «Твоя столица» по программе «Обмен квартиры на новостройку».

Квартира на момент ввода является однокомнатной с возможностью разделения на комнаты по индивидуальному проекту будущего собственника.

Квартира находится в доме 29.4 «Глазго», квартал Северная Европа, жилой комплекс «Минск Мир».
Вам может быть интересно
ONLINE – подбор квартир в новостройках
Партнер-кредит: программы кредитования от банков-партнеров
Переезжаем в новостройку: одновременная продажа имеющегося жилья и покупка квартиры в новостройке
ОДО Твоя столицаконсалт, УНП 190285638, лицензия №02240/129 от 06.09.06г., договор на оказание риэлтерских услуг №447/6 от 04.09.2025г.
Читать далее

Агент по недвижимости

Обращаться
Офис «Центральный»
ул. Кирова, 8, пом. 7
Витковская Наталья
5
(1 отзыв )
Связаться с агентом
Программы и сервисы для выгодной покупки и продажи жилья
Ни одна сделка не признана недействительной
Группа компаний «Твоя столица», основанная в 1996 году, оказывает услуги во всех сегментах рынка недвижимости и является его лидером. В нашей команде более 250 высококвалифицированных специалистов.
1
4-комнатная квартира , Минск, Мира просп., 14
Мира просп., 14, Октябрьский район: , Аэродромная, Могилевская, Воронянского
71.1 / / м²
руб.
USD
Похожие варианты
Все 30 предложения
Позвонить