Позвонить:
Online-консультации: Перезвоним за 15 секунд:
Ожидайте звонка. Уже звоним...
Сеть офисов:

Продажа четырехкомнатной квартиры, Колодищи, Черничный проезд, 17

Колодищи, Черничный проезд, 17, Пригород
1 728 574 руб. ( 580 000 USD) Цены в USD указаны справочно по курсу Национального банка на дату 13.11.2025
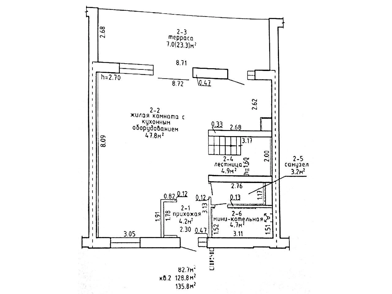
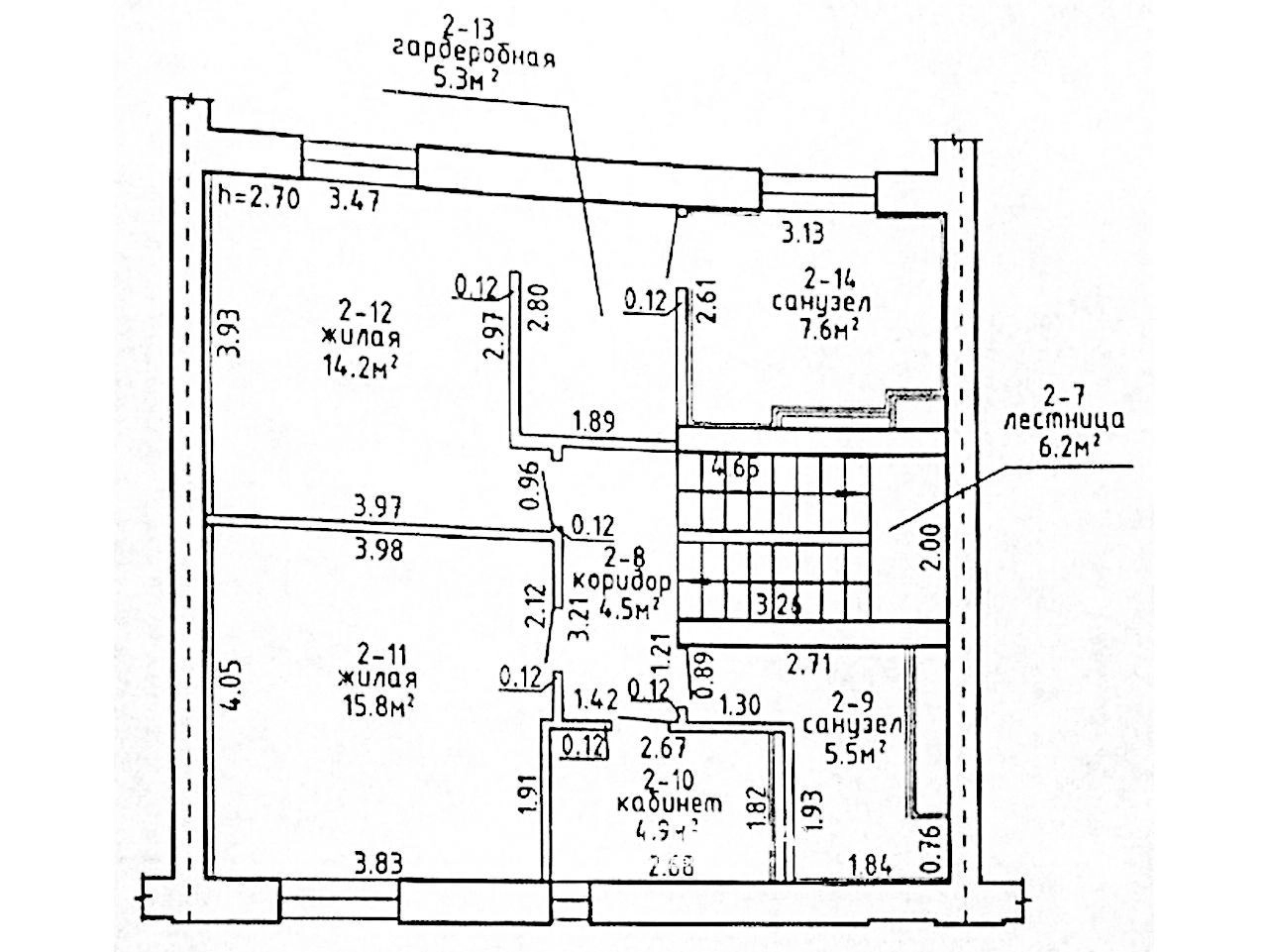
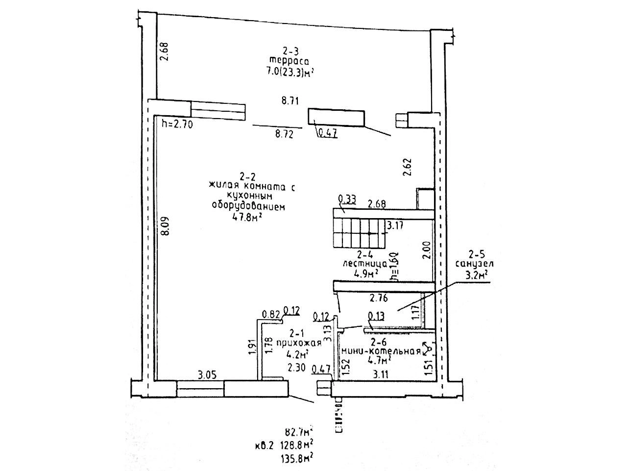
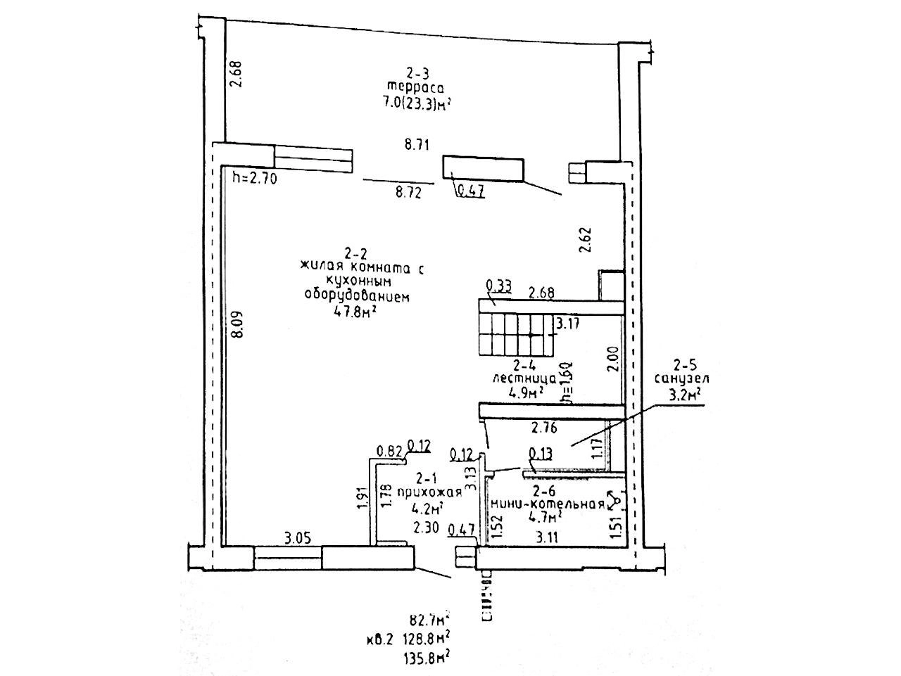
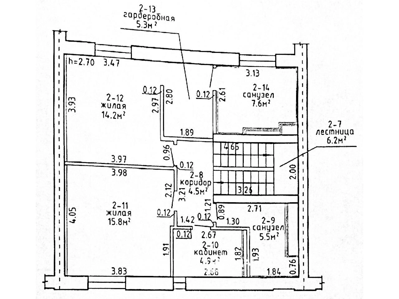
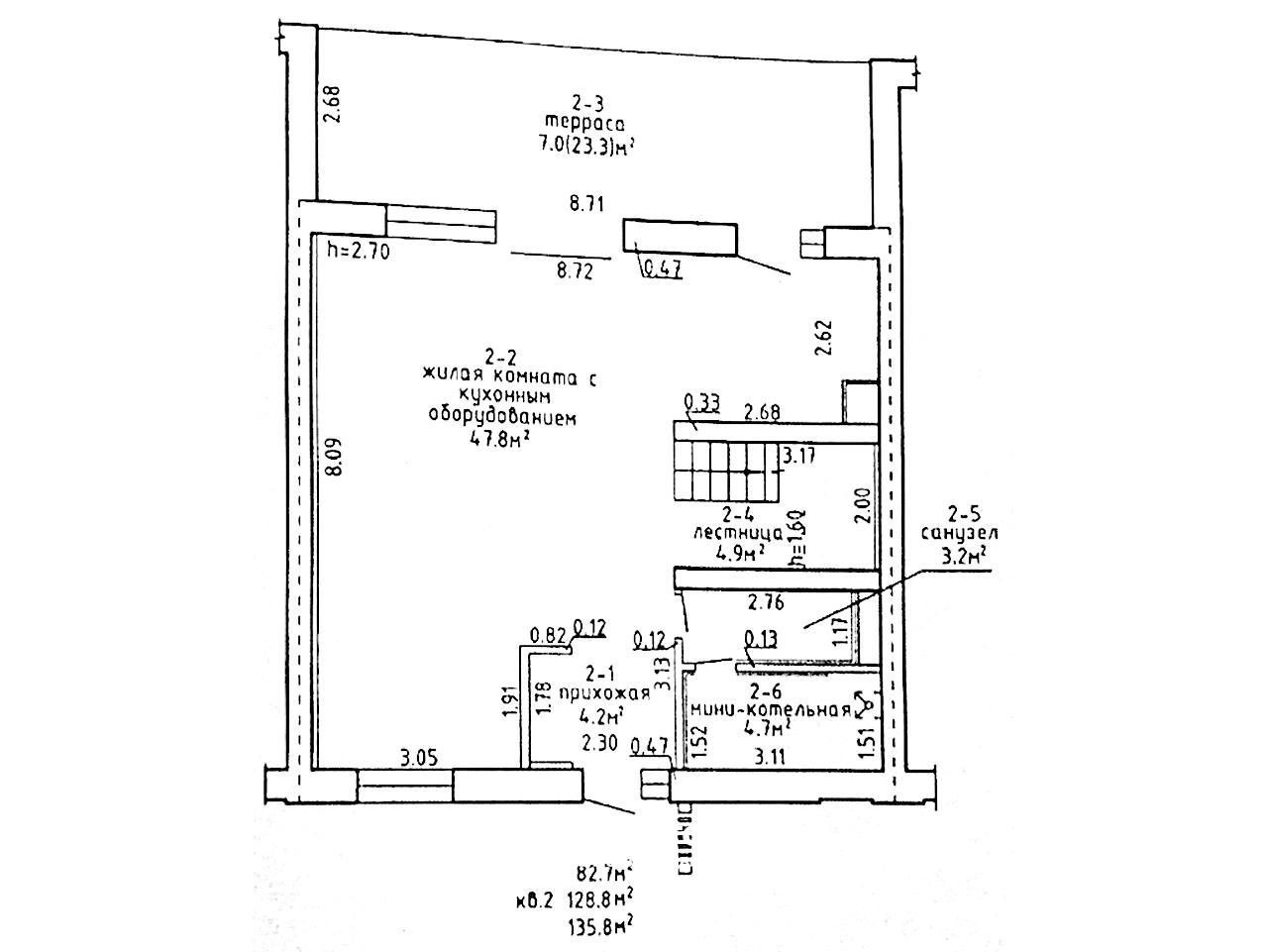
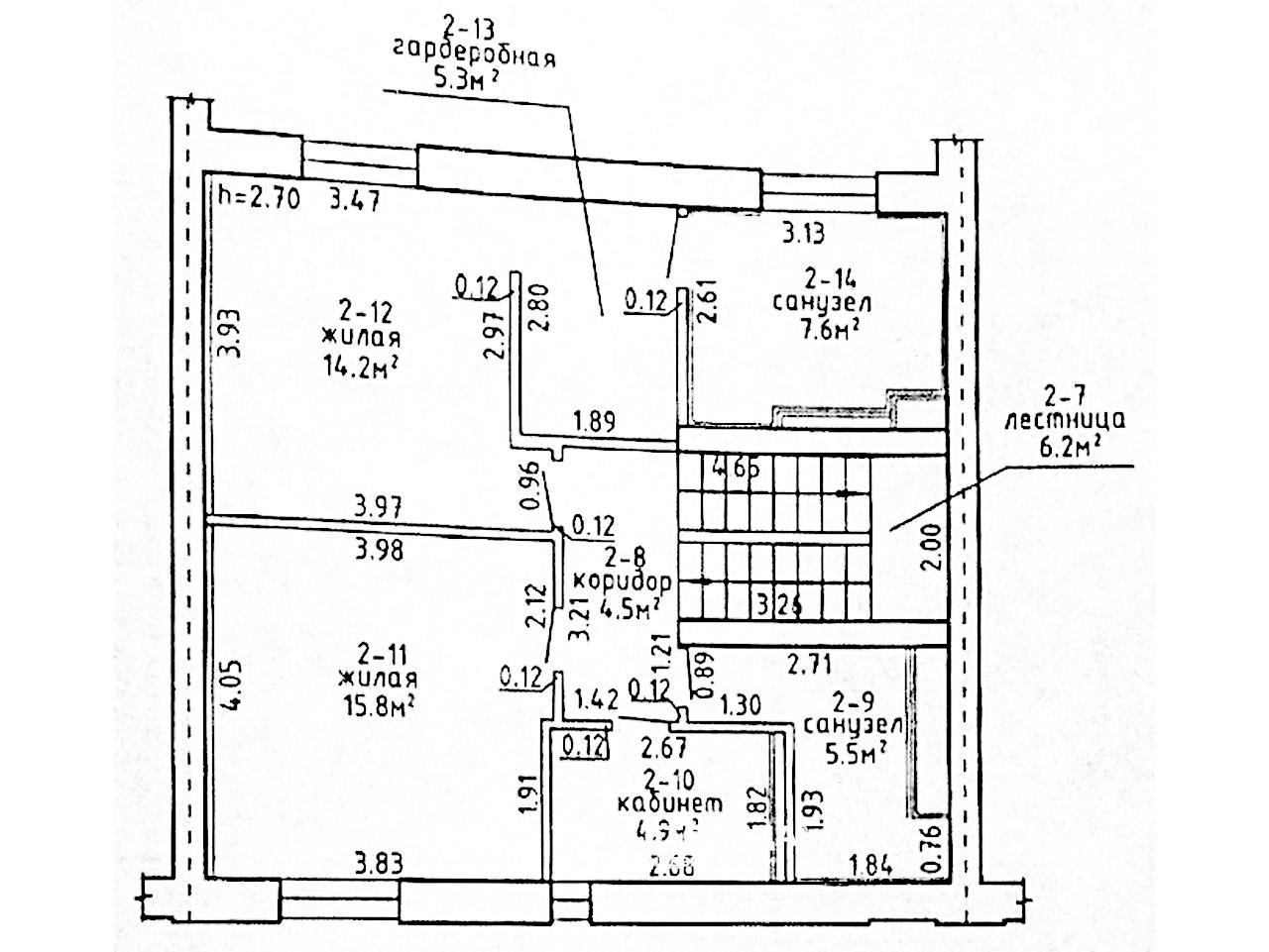
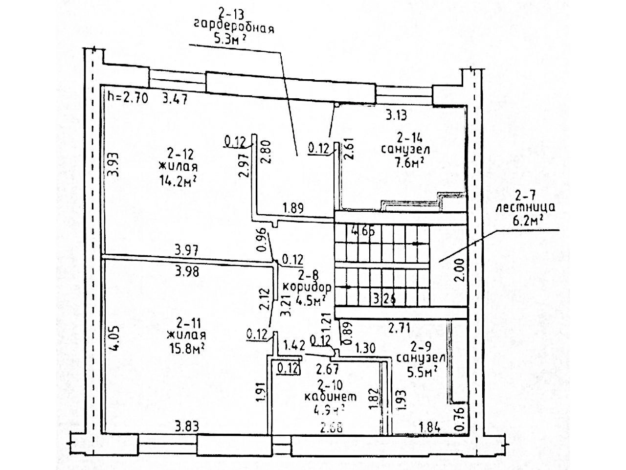
Общая площадь: 135.8 м²
Жилая площадь: 82.7 м²
Кухня: 1 м²
Этаж: 2 из 2
Комнаты: 4
Санузел: 3 санузла
Год постройки: 2021

Описание

Уникальное предложение!

Двухуровневый таунхаус в оригинальном проекте Зелёная Гавань.

Лаконичный архитектурный стиль в живописном месте.

Дизайнерский ремонт, изысканный интерьер, отделка премиум-материалами.

Квартира полностью меблирована и оснащена бытовой техникой — все продумано до мелочей и сделано со вкусом.

Кратко охарактеризовать квартиру можно тремя словами: стильно, качественно, комфортно. 

Просторная гостиная с панорамными окнами и уютной зоной отдыха;

Кухня оснащена премиальной техникой;

Мастер-спальня с приватной гардеробной и ванной комнатой;

Дополнительные спальни и кабинеты, идеально адаптированные под ваши потребности;

Дизайн интерьера: светлые тона, натуральные материалы, продуманные детали;

Технологичное удобство: продуманная звукоизоляция, системы умного дома с централизованным управлением, приточно-вытяжная вентиляция с рекуперацией воздуха, подогрев пола, автономное отопление (газовый котёл).

ЖК зелёная Гавань - это уникальный проект, который сочетает в себе преимущества загородной жизни и удобство городской инфраструктуры.

Уютные зоны барбекю, авторские детские игровые зоны с тематическими горками, качелями и спортивными комплексами, персональные беседки с розетками- идеальный уголок для отдыха или работы на свежем воздухе. Сердце квартала- просторная площадь с амфитеатром и живописным фонтаном. Парк с площадкой для йоги и воркаут-зоной.

Дополнительную безопасность проживанию обеспечивают круглосуточные камеры наблюдения с доступом к камерам с мобильного телефона в любой точке мира.

Биологический заказник «Стиклево», поля для гольфа, асфальтированные дороги, велодорожки, зеленые аллеи, спортивные центры, школы, детские садики, магазины, фермерский рынок гарантируют мультикомфортное проживание.

Свяжитесь  с нами  в viber  или telegram

Приглашаем на бесплатные консультации по продаже, покупке и обмену недвижимости на вторичном рынке и в новостройках!
Все и сразу! Для вас – максимум полезной информации от отпытных агентов и риэлтеров по вашей сделке!
Приходите! Кирова, 8, Независимости, 68
Звоните  по телефону 7735!


ООО Твоя столица, УНП 101136973, лицензия №02240/15 от 17.02.2005г., договор на оказание риэлтерских услуг №859/13 от 17.09.2025г.

Агент по недвижимости

Работа с обьектами на вторичном рынке- квартиры, дома, коттеджи, земельные участки; работа с новостройками
Обращаться
Офис 5 «Центральный»
ул. Кирова, 8, пом. 7-6
Стефанович Лилия
5
(82 отзыва )
Связаться с агентом
Программы и сервисы для выгодной покупки и продажи жилья
Ни одна сделка не признана недействительной
Группа компаний «Твоя столица», основанная в 1996 году, оказывает услуги во всех сегментах рынка недвижимости и является его лидером. В нашей команде более 250 высококвалифицированных специалистов.
1
4-комнатная квартира , Колодищи, Черничный проезд, 17
Черничный проезд, 17, Пригород:
135.8 / 82.7 / 1 м²
руб.
USD
Позвонить