Позвонить:
Online-консультации: Перезвоним за 15 секунд:
Ожидайте звонка. Уже звоним...
Сеть офисов:
Объект в архиве

Продажа трехкомнатной квартиры, Минск, Савицкого ул., 2

Минск, Савицкого ул., 2, Октябрьский район : Минск Мир (Minsk World)
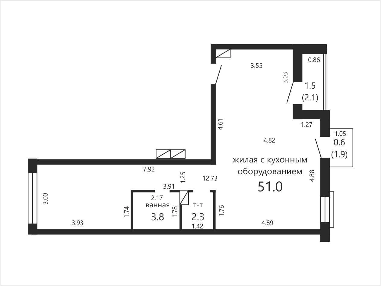
Общая площадь: 59.2 м²
Жилая площадь: 51 м²
Кухня: 1 м²
Этаж: 5 из 15
Комнаты: 3
Год постройки: 2023

Описание

Квартира свободной планировки в квартале Азия жилого комплекса Minsk World в доме Сеул. 

Каркасно-блочный дом 2023 года постройки находится в самом молодом и быстроразвивающемся микрорайоне столицы. 

Квартира без отделки, что открывает новым хозяевам перспективу всё сделать с учётом своего вкуса и возможностей. Французское остекление окон визуально увеличивает пространство и открывают живописные панорамные виды на город. Подключены современные радиаторы отопления, приборы учета воды, электро- и теплосчетчики. Высота помещений 2,73 метра.

В доме  функционируют 2 скоростных малошумных лифта. Практически на уровне земли расположен вход в сквозной подъезд. Один из выходов ведёт на прилегающую территорию, второй — на улицу. На 1 этаже обустроено просторное дизайнерское лобби, в котором расположены стойка консьержа, зона отдыха для гостей и санитарная комната с пеленальным столиком для мам и малышей.

Есть паркинг, который позволит обеспечить наилучший уровень защищённости транспортного средства (видеонаблюдение и охрана 24/7).

Внутри квартала запроектирован детский сад и торгово-развлекательный центр. В одном из соседних кварталов появится новый городской парк с велосипедными и беговыми дорожками, местами отдыха для взрослых и детей. Обустроенные спортивные и детские игровые площадки. Обеспечен мгновенный прямой выезд на одну из прилегающих магистралей, а дальше – на круговое движение у здания аэропорта – и в любую точку города за 15-20 минут, либо в другую сторону — на расположенный рядом МКАД.

Прямая продажа.

Квалифицированную, бесплатную консультацию по покупке, продаже и обмену жилья можно получить в офисе Метро Академия наук по адресу: г. Минск, проспект Независимости, 68-126б.

Звоните- +375-29-378-66-88, +375-33-378-66-88, +375-17-336-77-50

 

Вам нужно продать или обменять недвижимость?
Звоните 7735 или оставьте заявку  и получите бесплатную консультацию профильного специалиста.
Online-сервисы «Твоя столица»: 
Калькулятор стоимости. Узнайте столько стоит ваша квартира за 30 секунд!
База покупателей. Предложите свой объект нашим покупателям!
Кредитование «под ключ». Рассчитайте сумму кредита и платежи!
Доставка риэлтерских услуг: Вызовите агента на дом для определения стоимости объекта, консультации по документам  и юридическим аспектам вашей сделки. 
Звоните-7735!


ООО Твоя столица, УНП 101136973, лицензия №02240/15 от 17.02.2005г., договор на оказание риэлтерских услуг №59/1 от 28.02.2024г.
Читать далее

Агент по недвижимости

Люблю свою работу, своих клиентов и коллег. Всегда настраиваюсь только на серьезное и плодотворное сотрудничество и оказываю поддержку клиенту на всех этапах - от первого звонка в агентство до передачи квартиры или дома. Для меня важно быть максимально полезной людям и помочь осуществить мечты. Открыта ко всему новому и постоянно повышаю свою квалификацию.
Обращаться
Офис «Академия Наук»
пр. Независимости, 68
Данилович Ольга
5
(54 отзыва )
Программы и сервисы для выгодной покупки и продажи жилья
Ни одна сделка не признана недействительной
Группа компаний «Твоя столица», основанная в 1996 году, оказывает услуги во всех сегментах рынка недвижимости и является его лидером. В нашей команде более 250 высококвалифицированных специалистов.
1
3-комнатная квартира , Минск, Савицкого ул., 2
Савицкого ул., 2, Октябрьский район: , Минск Мир (Minsk World)
59.2 / 51 / 1 м²
Позвонить