Позвонить:
Online-консультации: Перезвоним за 15 секунд:
Ожидайте звонка. Уже звоним...
Сеть офисов:
7735
Пн - Вс с 09.00 по 22.00
Объект в архиве

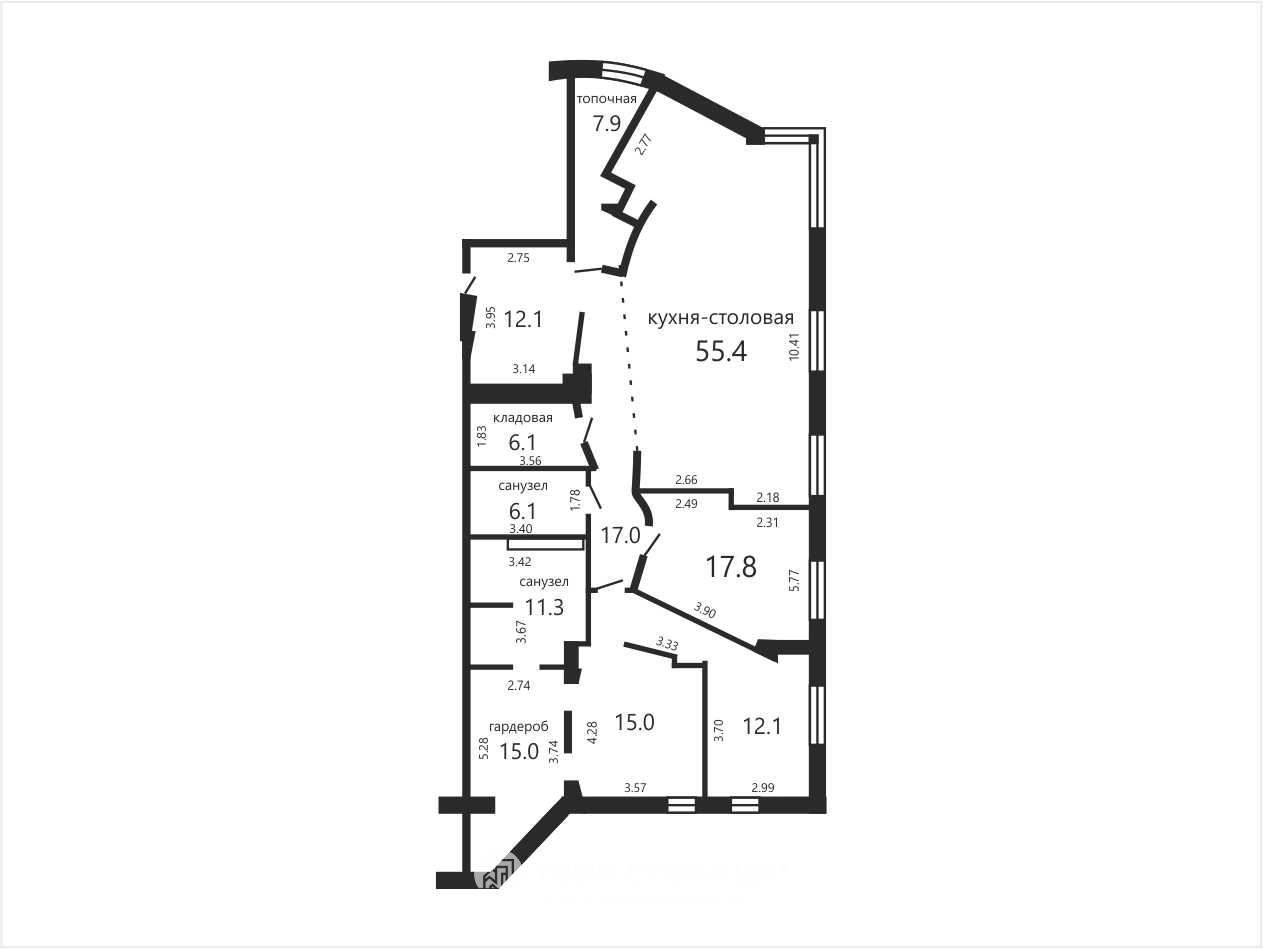
Продажа трехкомнатной квартиры, Минск, Москвина ул., 6

Общая площадь: 174.1 м²
Жилая площадь: 44.9 м²
Кухня: 55.4 м²
Этаж: 1 из 5
Комнаты: 3
Год постройки: 2007

Описание

Четырехкомнатная квартира в малоквартирном доме жилого комплекса «Залаты маентак».

Малоэтажный дом повышенной комфортности, территория дома огорожена, установлено видеонаблюдение, оборудована детская площадка и зона отдыха только для жильцов дома.  Дом 2007 года постройки.

Площадь 175.4 кв.м.

В квартире сделан современный дорогостоящий дизайнерский ремонт: автономная система отопления, импортная кафельная плитка и сантехника, сложная система освещения, паркетные полы.

Два санузла, две большие гардеробные комнаты. Имеется полный комплект необходимой бытовой техники: холодильник, телевизор, стиральная машина автомат, посудомоечная машина, печь СВЧ, бойлер, кондиционер.

Для удобной парковки есть личное парковочное место в подземном гараже

Дом расположен в месте с самой комфортной инфраструктурой в столице.

Комплекс малоэтажных домов клубного типа. Территория огорожена, детская площадка, СПА комплекс, тренажёрный зал, медицинский центры. Тихий сквер имени Грибоедова.

Развитая транспортная сеть: сообщение со всеми районами Минска и ближайшим пригородом, удобный выезд на МКАД. Две станции метро Молодежная и Фрунзенская.

Тихий центр, респектабельные соседи, уютный закрытый двор, малоэтажный дом с подземным паркингом (есть возможность покупки) и в целом, отличное расположение комплекса - это идеальный вариант для комфортного проживания в Минске.

Прямая продажа.

Расширенные консультации по покупке, продаже и обмену вашей недвижимости  можно получить в офисе Центральном по адресу г. Минск, ул. Кирова 8.

 

Вам нужно продать или обменять недвижимость?
Звоните 7735 или оставьте заявку  и получите бесплатную консультацию профильного специалиста.
Online-сервисы «Твоя столица»: 
Калькулятор стоимости. Узнайте столько стоит ваша квартира за 30 секунд!
База покупателей. Предложите свой объект нашим покупателям!
Кредитование «под ключ». Рассчитайте сумму кредита и платежи!
Доставка риэлтерских услуг: Вызовите агента на дом для определения стоимости объекта, консультации по документам  и юридическим аспектам вашей сделки. 
Звоните-7735!


ООО Твоя столица, УНП 101136973, лицензия №02240/15 от 17.02.2005г., договор на оказание риэлтерских услуг №1999/1 от 02.11.2023г.
Читать далее

Агент по недвижимости

Обращаться
Офис «Центральный»
ул. Кирова, 8, пом. 7
Латышева Наталья
5
(2 отзыва )
Программы и сервисы для выгодной покупки и продажи жилья
Ни одна сделка не признана недействительной
Группа компаний «Твоя столица», основанная в 1996 году, оказывает услуги во всех сегментах рынка недвижимости и является его лидером. В нашей команде более 250 высококвалифицированных специалистов.
Эту квартиру можно выгодно сдать!
Арендная ставка
800 USD/мес 2 239 BYN/мес Данные отдела аренды
1
3-комнатная квартира , Минск, Москвина ул., 6
Москвина ул., 6, Центральный район: , Тимирязева-Победителей-Машерова
174.1 / 44.9 / 55.4 м²
Похожие варианты
Позвонить