Позвонить:
Online-консультации: Перезвоним за 15 секунд:
Ожидайте звонка. Уже звоним...
Сеть офисов:

Продажа трехкомнатной квартиры, Минск, Макаенка ул., 12, к. Ж

Новостройка
669 330 руб. ( 225 000 USD) Цены в USD указаны справочно по курсу Национального банка на дату 11.11.2025

Агент по недвижимости

Обращаться
Офис «Центральный»
ул. Кирова, 8, пом. 7-6
Арсёнов Роман
5
(6 отзывов )
Связаться с агентом
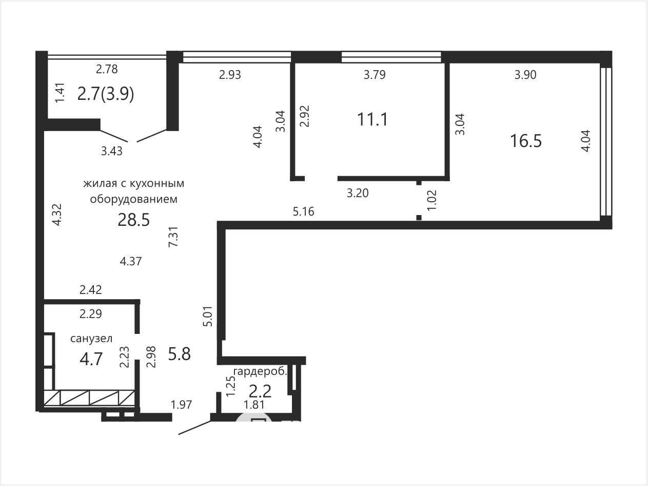
Общая площадь: 74.7 м²
Жилая площадь: 56.1 м²
Кухня: 1 м²
Этаж: 19 из 25
Комнаты: 2
Санузел: совмещенный
Год постройки: 2018

Описание

Продаётся светлая и уютная трёхкомнатная квартира с дизайнерским ремонтом и захватывающим видом на 19 этаже в престижном ЖК «Парк Челюскинцев».

Основные характеристики:

- Монолитно-блочный дом 2018 года, секция на 25 этажей;

- Общая площадь 74,7 м² (жилая 56,1 м²), просторная кухня-гостиная 28,5 м²;

- Застекленная лоджия 3,9 м², совмещённый санузел 4,7 м²;

- Высокие потолки 2,7 м, панорамные окна «в пол»;

- Ухоженный подъезд с консьержем и спокойные интеллигентные соседи.

Дизайнерская отделка из качественных материалов: паркетная доска на полу, испанская керамогранитная плитка в ванной, кухне и прихожей. Межкомнатные двери из массива с надёжной фурнитурой. Освещение встроено в потолки и стены, потолки украшены элегантными широкими плинтусами.

Квартира полностью укомплектована современной бытовой техникой британского бренда Maunfeld: холодильник, посудомоечная машина, духовой шкаф, СВЧ печь, варочная панель и стильная вытяжка. Премиальное сантехническое оборудование в оттенке брашированного золота. Установлена система кондиционирования для комфортного климата круглый год.

Мебель белорусского производства высокого качества продумана до мелочей — удобные системы хранения: три шкафа и полноценная гардеробная. Интерьер дополнен авторскими текстурными картинами белорусского художника и тёплыми, спокойными оттенками стен, создающими особый уют.

Дом расположен в отличном месте — всего в 5 минутах пешком от метро «Парк Челюскинцев». Жилой комплекс предлагает удобную транспортную доступность и полный набор инфраструктуры: магазины, школы, кафе и всё необходимое для комфортной жизни.

Рядом крупнейший развлекательный парк Минска, идеальный для семейного отдыха и занятий спортом на свежем воздухе. Для тех, кто ценит тишину и спокойствие, неподалёку находится Центральный ботанический сад — отличное место для прогулок и вдохновения.

Такое расположение сочетает в себе удобство городской жизни и близость к природе!

Это идеальный вариант для комфортной и стильной жизни в одном из лучших районов Минска — ваша квартира мечты ждёт вас!

Купить квартиру в Минске- легко и выгодно вместе с агентством недвижимости " Твоя столица"!

Получите консультацию по подбору и покупке квартиры в Минске у опытных риэлтеров.

Актуальная база квартир- Минск и пригород, Цены, фото, планировки.

Приходите на консультацию риэлтера для покупки. Наш офис находится по адресу: Минск, Кирова, 8

Свяжитесь  с нами  в viber  или telegram

Приглашаем на бесплатные консультации по продаже, покупке и обмену недвижимости на вторичном рынке и в новостройках!
Все и сразу! Для вас – максимум полезной информации от отпытных агентов и риэлтеров по вашей сделке!
Приходите! Кирова, 8, Независимости, 68
Звоните  по телефону 7735!


ООО Твоя столица, УНП 101136973, лицензия №02240/15 от 17.02.2005г., договор на оказание риэлтерских услуг №756/13 от 25.08.2025г.
Программы и сервисы для выгодной покупки и продажи жилья
Ни одна сделка не признана недействительной
Группа компаний «Твоя столица», основанная в 1996 году, оказывает услуги во всех сегментах рынка недвижимости и является его лидером. В нашей команде более 250 высококвалифицированных специалистов.
1
3-комнатная квартира , Минск, Макаенка ул., 12, к. Ж
Макаенка ул., 12, Первомайский район: , Макаенка, Независимости, Филимонова
74.7 / 56.1 / 1 м²
руб.
USD
Позвонить