Позвонить:
Online-консультации: Перезвоним за 15 секунд:
Ожидайте звонка. Уже звоним...
Сеть офисов:
7735
Пн - Вс с 09.00 по 22.00

Продажа трехкомнатной квартиры, Минск, Логойский тракт, 25, к. 1

343 413 руб. ( 125 000 USD) Цены в USD указаны справочно по курсу Национального банка на дату 19.05.2026
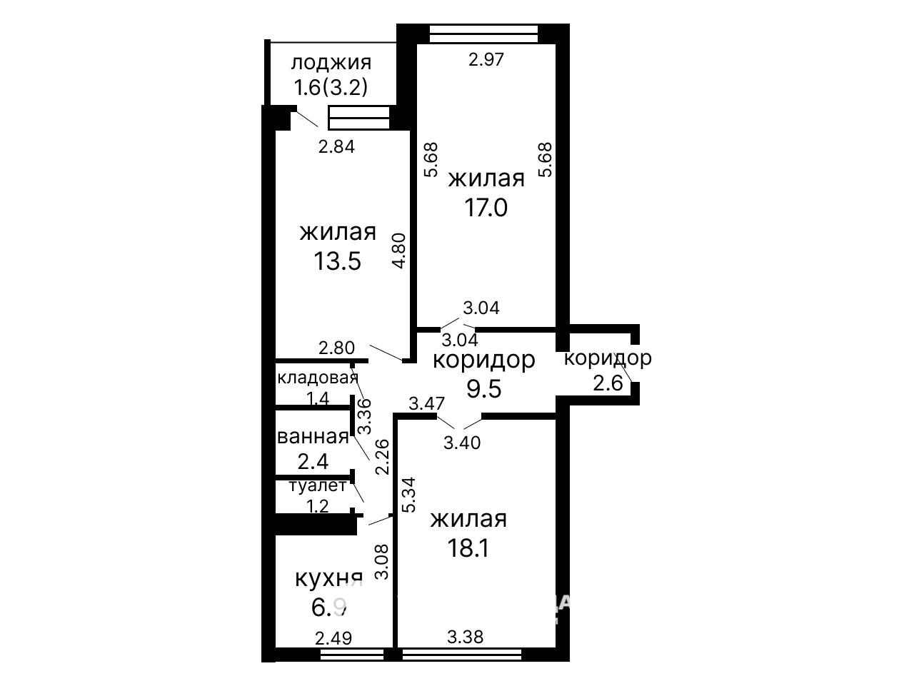
Общая площадь: 72.6 м²
Жилая площадь: 48.6 м²
Кухня: 6.9 м²
Этаж: 5 из 9
Комнаты: 3
Санузел: раздельный
Год постройки: 1977

Описание

Трехкомнатная квартира возле Севастопольского парка!

Практичная и функциональная планировка: три изолированные комнаты, раздельный санузел, практически квадратная кухня, просторный коридор и широкая лоджия.

Окна выходят на противоположные стороны дома. Аккуратный и чистый подъезд. На придомовой территории достаточно гостевых парковок - всегда найдётся свободное место.

На полу в жилых комнатах и коридоре уложен паркет Кухня с газовой плитой. Простор для творчества: квартира под ремонт, но с удачной планировкой

В доме в 2024 году выполнен капитальный ремонт: обновлен фасад здания, заменены сантехнические трубы и установлены счетчики воды.

В шаговой доступности находятся детские сады, гимназия, поликлиника, магазины, кафе, объекты сервисного обслуживания, медицинские центры.

Развитая транспортная сеть со всеми районами столицы и ближайшим пригородом: автобусы, трамваи, троллейбусы и маршрутное такси. Удобный выезд на МКАД. В ближайшей перспективе рядом откроется Зелёная ветка метро.

Недалеко от дома расположены Северный лесопарк, Полоцкий и Севастопольский парки, набережная канала Слепянской водной системы, экотропа и Цнянское водохранилище, окруженное хвойным лесом, места для прогулок, активного отдыха и занятий спортом.

Трехкомнатная квартира Логойский тракт 25 (Советский район):

Материал стен: кирпичный;

Год постройки: 1977;

Гол капитального ремонта: 2024;

Этаж: 5/9, лоджия застеклена;

Общая площадь: 72,6 кв.м.;

Жилая площадь: 48,6 кв.м.;

Площадь кухни: 6.9 кв.м.;

Высота потолка: 2.52 м.

Свяжитесь  с нами  в  viber или telegram

 


ООО Твоя столица, УНП 101136973, лицензия №02240/15 от 17.02.2005г., договор на оказание риэлтерских услуг №377/13 от 06.04.2026г.
Читать далее

Риэлтер

Искреннее желание помочь, компетентность, нацеленность на результат - основа моей успешной работы.
Программы и сервисы для выгодной покупки и продажи жилья
Ни одна сделка не признана недействительной
Группа компаний «Твоя столица», основанная в 1996 году, оказывает услуги во всех сегментах рынка недвижимости и является его лидером. В нашей команде более 250 высококвалифицированных специалистов.
1
3-комнатная квартира , Минск, Логойский тракт, 25, к. 1
Логойский тракт, 25, Советский район: , Зеленый луг
72.6 / 48.6 / 6.9 м²
343 413 руб.
125 000 USD
Похожие варианты
Все 35 предложения
Позвонить