Позвонить:
Online-консультации: Перезвоним за 15 секунд:
Ожидайте звонка. Уже звоним...
Сеть офисов:
Объект в архиве

Продажа трехкомнатной квартиры, Минск, Кропоткина ул., 114

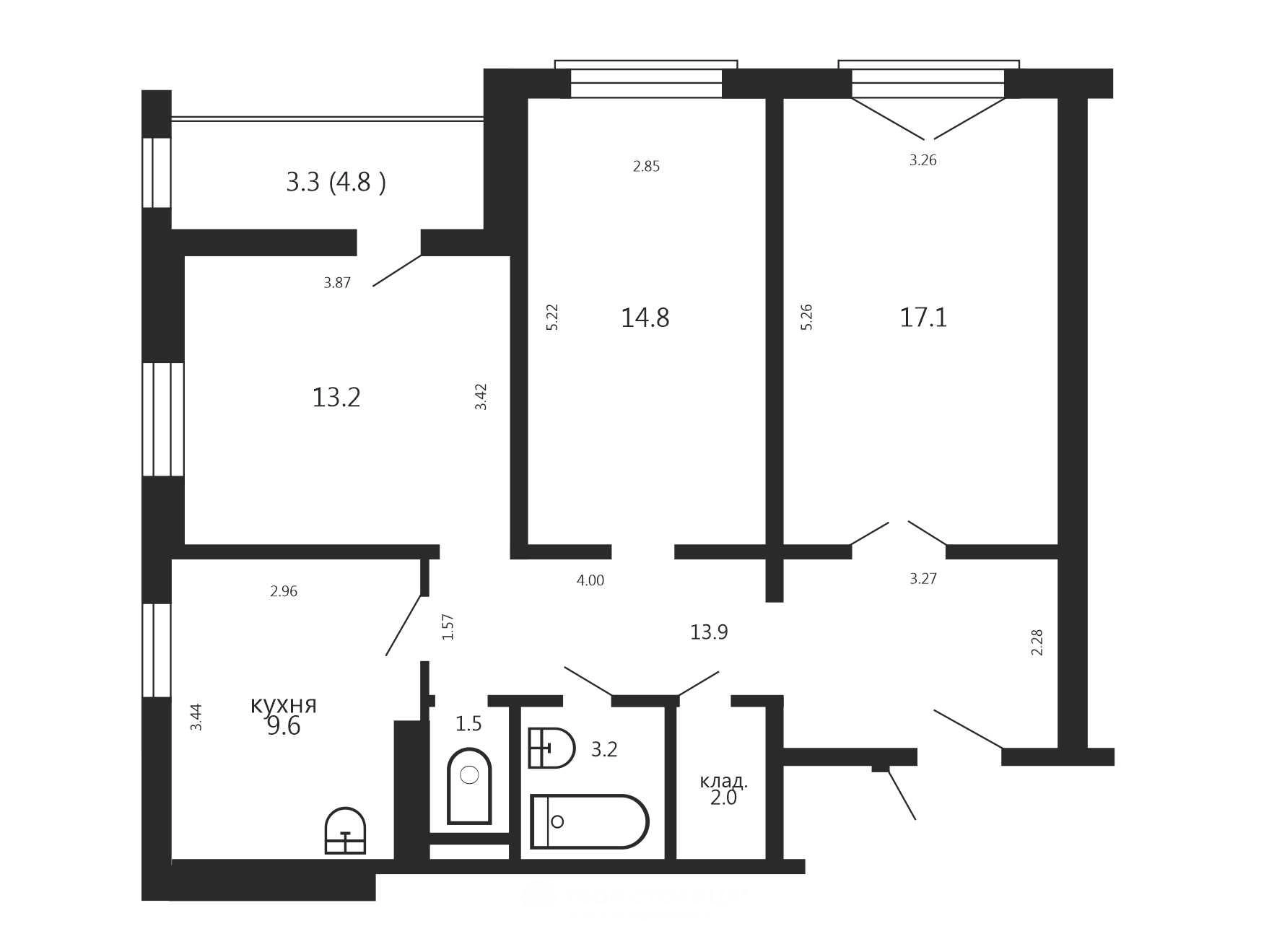
Общая площадь: 78.6 м²
Жилая площадь: 45.1 м²
Кухня: 9.6 м²
Этаж: 8 из 15
Комнаты: 3
Год постройки: 2006

Описание

Трёхкомнатная квартира в Центральном районе рядом с парком Дружбы Народов. Дом 2006 года постройки.

Площадь квартиры по СНБ 78.6 м кв., общая площадь 75.3 м кв., жилая - 45.1 м кв.. Все комнаты изолированные, кухня 9.6 м кв., просторный коридор 13.9 м кв. с вместительным шкафом-купе, кладовая 2.0 м кв., которую можно переоборудовать под гардеробную, раздельный санузел. В двух комнатах окна в пол, что значительно добавляет дневного света. Высота потолка 2.65 м. 

Аккуратное состояние квартиры. Установлены деревянные стеклопакеты. Натяжные потолки в комнатах. Встроенная кухонная мебель.

Два лифта в подъезде, пандус.

В шаговой доступности несколько детских садов, общеобразовательные школы и гимназия, объекты сервисного обслуживания и досуга, кафе и рестораны, Комаровский рынок, медицинские, торговые и бизнес-центры. Многочисленные места для прогулок и активного отдыха. Большая парковая зона.

Хорошее транспортное сообщение с любой точкой города. В трёх остановках станция метро Площадь Якуба Коласа. 

Подбираются варианты. 

Поможем выгодно продать вашу недвижимость для покупки этой!

Приглашаем на просмотр!

Расширенные консультации по покупке, продаже и обмену можно получить в офисе «Метро Кунцевщина» по адресу г. Минск, ул. Притыцкого, 83. Тел. +375173367744, +375447790203.


Online-сервисы «Твоя столица»: 
Калькулятор стоимости. Узнайте столько стоит ваша квартира за 30 секунд!
База покупателей. Предложите свой объект нашим покупателям!
Кредитование «под ключ». Рассчитайте сумму кредита и платежи!
Доставка риэлтерских услуг: Вызовите агента на дом для определения стоимости объекта, консультации по документам  и юридическим аспектам вашей сделки. 
Звоните-7735!


ООО Твоя столица, УНП 101136973, лицензия №02240/15 от 17.02.2005г., договор на оказание риэлтерских услуг №261/9 от 28.11.2023г.
Читать далее

Агент по недвижимости

Обращаться
Офис 5 «Центральный»
ул. Кирова, 8, пом. 7-6
Шунейко Наталья
4.9
(46 отзывов )
Программы и сервисы для выгодной покупки и продажи жилья
Ни одна сделка не признана недействительной
Группа компаний «Твоя столица», основанная в 1996 году, оказывает услуги во всех сегментах рынка недвижимости и является его лидером. В нашей команде более 250 высококвалифицированных специалистов.
1
3-комнатная квартира , Минск, Кропоткина ул., 114
Кропоткина ул., 114, Советский район: , Червякова, Шевченко, Кропоткина
78.6 / 45.1 / 9.6 м²
Похожие варианты
Все 18 предложения
Позвонить