Позвонить:
Online-консультации: Перезвоним за 15 секунд:
Ожидайте звонка. Уже звоним...
Сеть офисов:
Объект реализован

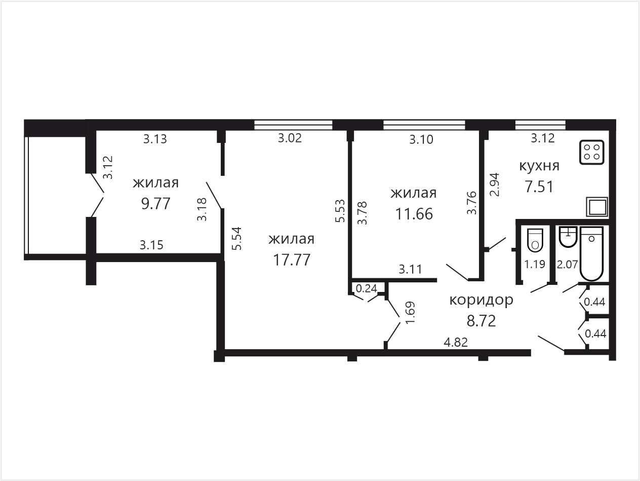
Продажа трехкомнатной квартиры, Минск, Глебки ул., 12

Общая площадь: 59.8 м²
Жилая площадь: 39.2 м²
Кухня: 7.51 м²
Этаж: 3 из 9
Комнаты: 3
Год постройки: 1975

Описание

Продается 3-комнатная квартира в 7 минутах ходьбы от ст. м. Спортивная.

Капитальный ремонт дома был в 2021 год. Произведено утепление и оштукатуривание фасада дома. Заменены трубы канализации, установлен счетчик учета газа.

В квартире 2 изолированные комнаты, лоджия, раздельные санузел и ванная.

Квартира нуждается в современном ремонте. Напольное покрытие - доска и линолеум. В жилых комнатах и на кухне установлены чугунные радиаторы. В оконных проемах экологичные деревянные окна, в одной комнате стеклопакеты с профилем ПВХ. 

Кухонная мебель с газовой плитой и вытяжкой. Деревянные межкомнатные двери. Подключены приборы учёта воды, газа. Домофон, оптоволоконная связь.

Отлично развита инфраструктура микрорайона. В шаговой доступности есть все, что необходимо для комфортного проживания: детские сады, школы, колледжи, бассейн, магазины, торговые центры "Скала" и "Тивали", банки, Центр олимпийского резерва по теннису и многое другое.

Удобный выезд на второе транспортное кольцо и МКАД. Хорошее транспортное сообщение со всеми районами столицы и пригородом. Всего 7 минут пешком до станции метро Спортивная. Развитая транспортная сеть: автобусы, троллейбусы и маршрутные такси.

Дом расположен у красивейших городских парков Тивали и 60-летия Великого Октября. Рядом много мест для прогулок и занятий спортом. Здесь Вы сможете отдохнуть после тяжелого рабочего дня и прогуляться в выходные с детьми или домашними питомцами.

Вам нужно продать или обменять недвижимость?
Звоните 7735 или оставьте заявку  и получите бесплатную консультацию профильного специалиста.
Online-сервисы «Твоя столица»: 
Калькулятор стоимости. Узнайте столько стоит ваша квартира за 30 секунд!
База покупателей. Предложите свой объект нашим покупателям!
Кредитование «под ключ». Рассчитайте сумму кредита и платежи!
Доставка риэлтерских услуг: Вызовите агента на дом для определения стоимости объекта, консультации по документам  и юридическим аспектам вашей сделки. 
Звоните-7735!


ООО Твоя столица, УНП 101136973, лицензия №02240/15 от 17.02.2005г., договор на оказание риэлтерских услуг №60/15 от 31.08.2024г.

Агент по недвижимости

Купля-продажа недвижимости, обмен, подбор вариантов. Работаю 24/7.
Обращаться
Офис 4 «Центральный»
ул. Кирова, 8, пом. 7-6
Майсак Наталья
5
(40 отзывов )
Программы и сервисы для выгодной покупки и продажи жилья
Ни одна сделка не признана недействительной
Группа компаний «Твоя столица», основанная в 1996 году, оказывает услуги во всех сегментах рынка недвижимости и является его лидером. В нашей команде более 250 высококвалифицированных специалистов.
1
3-комнатная квартира , Минск, Глебки ул., 12
Глебки ул., 12, Фрунзенский район: , Пушкина-Глебки-Притыцкого-Ольшевского-Кальварийская
59.8 / 39.2 / 7.51 м²
Похожие варианты
Все 9 предложения
Позвонить