Позвонить:
Online-консультации: Перезвоним за 15 секунд:
Ожидайте звонка. Уже звоним...
Сеть офисов:

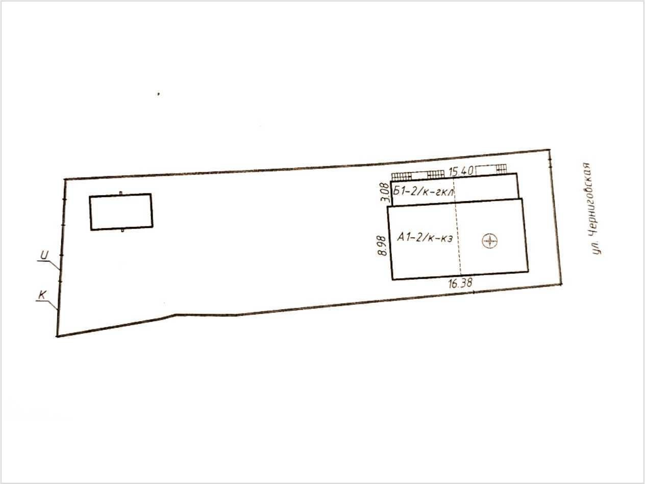
Продажа трехкомнатной квартиры, Минск, Черниговская ул., 12

Срочно
387 439 руб. ( 130 000 USD) Цены в USD указаны справочно по курсу Национального банка на дату 13.11.2025 Предложить свою цену
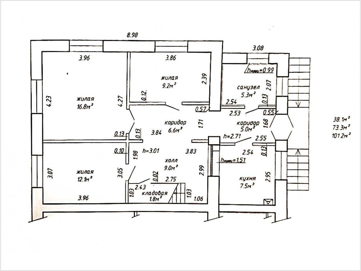
Общая площадь: 101.2 м²
Жилая площадь: 38.1 м²
Кухня: 7.5 м²
Этаж: 1 из 2
Комнаты: 3
Санузел: совмещенный
Год постройки: 1975

Описание

Представляем вашему вниманию просторную трехкомнатную квартиру в Минске, расположенную в престижном Октябрьском районе по улице Черниговская, 12. Этот уютный уголок города идеально подойдет для комфортной жизни!

Квартира находится на первом этаже двухэтажного кирпичного дома 1975 года постройки, что гарантирует надежность и хорошую шумоизоляцию. Общая площадь составляет внушительные 101.2 кв.м, из которых 38.1 кв.м приходится на жилую зону, а кухня имеет площадь 7.5 кв.м. Вы оцените отличное состояние ремонта: квартира полностью готова к заселению и не требует дополнительных вложений. Установлена металлическая дверь и современные стеклопакеты, что обеспечивает тепло и тишину. Санузел совмещенный.

Квартира продается с бытовой техникой, что позволит вам сразу же наслаждаться всеми удобствами. Дополнительным преимуществом является наличие подвала для хранения вещей.

Расположение просто замечательное – вы находитесь в центре города, но при этом окружены зеленой зоной. Территория дома огорожена, что обеспечивает дополнительную безопасность и уют. Для вашего автомобиля предусмотрена стоянка.

Не упустите возможность стать обладателем этой прекрасной квартиры в историческом кирпичном доме! Отличное сочетание комфорта, инфраструктуры и местоположения. Звоните, чтобы узнать подробности и договориться о просмотре!

Свяжитесь  с нами  в viber  или telegram

До 30.11. -  Черная  пятница в Твоей столице!
Покупателю - квартиры по сниженным ценам
Продавцу- Тест-драйв риэлтерских услуг!
14 дней - протестируйте  работу профессионалов и получите результат без дополнительных оплат!
Все консультации бесплатные!
Приходите! Кирова, 8, Независимости, 68
Звоните  по телефону 7735!


ООО Твоя столица, УНП 101136973, лицензия №02240/15 от 17.02.2005г., договор на оказание риэлтерских услуг №926/13 от 01.10.2025г.

Агент по недвижимости

Профессиональные услуги в сфере недвижимости — Минск 13 лет опыта, отличное знание рынка Прозрачные условия, без скрытых комиссий Индивидуальный подход к каждому клиенту Полное сопровождение: от подбора до оформления сделки Уважение к бюджету и пожеланиям клиента Этапы работы: Бесплатная консультация Анализ рынка и подбор объектов Организация просмотров Сопровождение сделки Свяжитесь со мной — и мы начнем путь к вашему новому дому.
Обращаться
Офис «Центральный»
ул. Кирова, 8, пом. 7-6
Дроневич Ирина
5
(66 отзывов )
Связаться с агентом
Программы и сервисы для выгодной покупки и продажи жилья
Ни одна сделка не признана недействительной
Группа компаний «Твоя столица», основанная в 1996 году, оказывает услуги во всех сегментах рынка недвижимости и является его лидером. В нашей команде более 250 высококвалифицированных специалистов.
1
3-комнатная квартира , Минск, Черниговская ул., 12
Черниговская ул., 12, Октябрьский район: , Серова, Асаналиева
101.2 / 38.1 / 7.5 м²
руб.
USD
Похожие варианты
Все 93 предложения
Позвонить