Позвонить:
Online-консультации: Перезвоним за 15 секунд:
Ожидайте звонка. Уже звоним...
Сеть офисов:

Продажа трехкомнатной квартиры, Минск, Богдановича ул., 144

490 074 руб. ( 173 000 USD) Цены в USD указаны справочно по курсу Национального банка на дату 17.04.2026
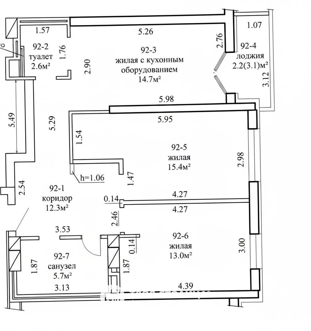
Общая площадь: 65.9 м²
Жилая площадь: 43.1 м²
Кухня: 14.7 м²
Этаж: 21 из 22
Комнаты: 3
Санузел: раздельный
Год постройки: 2022

Описание

Предлагаем к продаже 3-комнатную квартиру в престижном Советском районе Минска, по адресу ул. Богдановича 144. Это идеальное предложение для тех, кто ищет комфортное жилье в современном доме с развитой инфраструктурой в Минске.

Квартира расположена на 21 этаже 22-этажного каркасно-блочного дома, построенного в 2022 году. Отличный вид из окон, светлые и уютные комнаты. Общая площадь составляет 65.9 м2 (СНБ), жилая — 43.1 м2, а просторная кухня — 14.7 м2 — станет центром семейных встреч.

Квартира с отличным ремонтом, выполненным с использованием качественных материалов. Вам не придется тратить время и средства на обустройство – здесь уже есть все необходимое для комфортного проживания. В квартире установлены встроенные шкафы, качественная металлическая дверь, стеклопакеты, а также вся необходимая мебель, встроенная кухня с техникой европейских производителей. Раздельный санузел. Дополнительный бонус - наличие бойлера, перебоев с горячей водой точно не будет.

Район отличается развитой инфраструктурой: школы, поликлиники, детские сады, магазины и торговые центры. Наличие зеленой зоны поблизости создает прекрасные условия для отдыха и прогулок.

Эта квартира - воплощение вашей мечты о современном и уютном доме. Не упустите шанс приобрести квартиру с ремонтом в одном из лучших районов столицы.

Звоните прямо сейчас, чтобы узнать больше и договориться о просмотре!

Свяжитесь  с нами  в  viber или telegram

 


ООО Твоя столица, УНП 101136973, лицензия №02240/15 от 17.02.2005г., договор на оказание риэлтерских услуг №391/13 от 08.04.2026г.
Читать далее
Офис 8 «Центральный» , пр. Независимости, 68
Узнать подробнее
Программы и сервисы для выгодной покупки и продажи жилья
Ни одна сделка не признана недействительной
Группа компаний «Твоя столица», основанная в 1996 году, оказывает услуги во всех сегментах рынка недвижимости и является его лидером. В нашей команде более 250 высококвалифицированных специалистов.
1
3-комнатная квартира , Минск, Богдановича ул., 144
Богдановича ул., 144, Советский район: , Комаровка
65.9 / 43.1 / 14.7 м²
руб.
USD
Похожие варианты
Все 19 предложения
Позвонить