Позвонить:
Online-консультации: Перезвоним за 15 секунд:
Ожидайте звонка. Уже звоним...
Сеть офисов:
7735
Пн - Вс с 09.00 по 22.00

Продажа трехкомнатной квартиры, Минск, Бельского ул., 65

343 869 руб. ( 122 000 USD) Цены в USD указаны справочно по курсу Национального банка на дату 09.05.2026
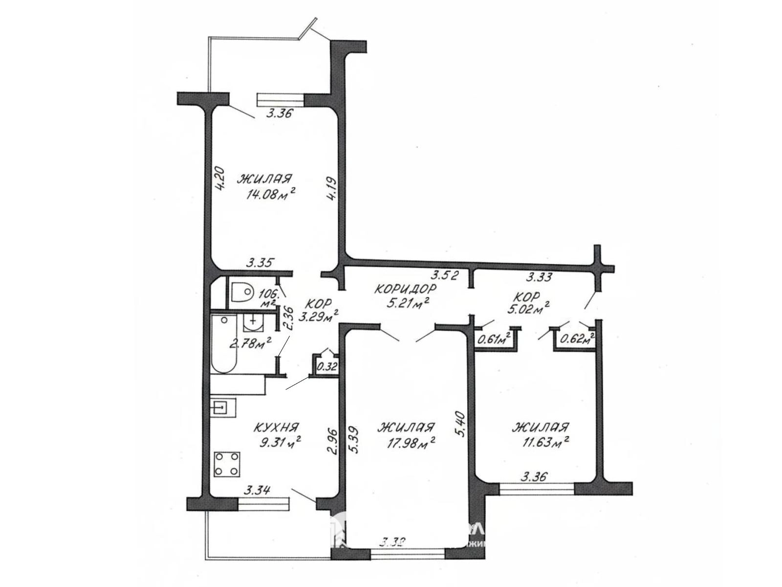
Общая площадь: 75.46 м²
Жилая площадь: 43.64 м²
Кухня: 9.31 м²
Этаж: 7 из 9
Комнаты: 3
Санузел: раздельный
Год постройки: 1979

Описание

Просторная 3‑комнатная квартира в удобном Фрунзенском районе

ул. Бельского, 65

Отличный вариант для семьи в одном из самых комфортных и развитых районов Минска.

О квартире
  • Общая площадь — 71,86 м² (по СНБ — 75,46 м²)
  • Жилая — 43,64 м², кухня — 9,31 м²
  • 7 этаж из 9, дом 1979 года постройки
  • Две застеклённые лоджии, раздельный санузел
  • Окна выходят на восток и запад, благодаря чему в квартире светло в течение всего дня
Дом и двор

Дом расположен вдали от шумных магистралей, в окружении зелёной зоны.

Двор спокойный и ухоженный, с атмосферой обжитого и комфортного района.

Локация — ключевое преимущество

Фрунзенский район по праву считается одним из самых удобных для жизни в Минске.

Адрес ул. Бельского, 65 — это:

  • сложившаяся инфраструктура
  • удобное транспортное сообщение
  • быстрый доступ к основным направлениям города
  • всё необходимое — в пешей доступности

Ориентир Пушкина – Мавра – Бельского — понятный, востребованный и удобный для повседневной жизни район.

Всего две остановки до метро.

Инфраструктура вокруг

В шаговой доступности от дома:

  • школы и детские сады
  • поликлиника, аптеки
  • продуктовые и сетевые магазины
  • объекты сервиса и досуга

Район отлично подходит для семей: спокойно, безопасно и всё под рукой — без необходимости ежедневных поездок через весь город.

Кому подойдёт эта квартира
  • семье с детьми
  • тем, кто ценит простор и изолированные комнаты
  • покупателям, выбирающим локацию, а не компромисс
  • как надёжный объект для проживания или долгосрочной аренды

Свяжитесь  с нами  в  viber или telegram

 


ООО Твоя столица, УНП 101136973, лицензия №02240/15 от 17.02.2005г., договор на оказание риэлтерских услуг №434/13 от 17.04.2026г.
Читать далее

Агент по недвижимости

Агент по недвижимости — надёжная поддержка в ваших сделках ✔ Продажа, покупка, обмен недвижимости ✔ Индивидуальный подход и работа в интересах клиента ✔ Полное сопровождение: от оценки до оформления документов ✔ Юридическая безопасность и выгодные условия Почему выбирают меня: — Внимание к деталям — Настойчивость и результат — Глубокое знание рынка — Уважение к целям клиента Свяжитесь — обсудим вашу задачу. Ваша успешная сделка — моя работа.
Обращаться
Демьяненко Светлана
4.9
(48 отзывов )
Связаться с агентом
Программы и сервисы для выгодной покупки и продажи жилья
Ни одна сделка не признана недействительной
Группа компаний «Твоя столица», основанная в 1996 году, оказывает услуги во всех сегментах рынка недвижимости и является его лидером. В нашей команде более 250 высококвалифицированных специалистов.
1
3-комнатная квартира , Минск, Бельского ул., 65
Бельского ул., 65, Фрунзенский район: , Одоевского-Пушкина-Притыцкого
75.46 / 43.64 / 9.31 м²
руб.
USD
Похожие варианты
Все 36 предложения
Позвонить