Позвонить:
Online-консультации: Перезвоним за 15 секунд:
Ожидайте звонка. Уже звоним...
Сеть офисов:
Объект реализован

Продажа трехкомнатной квартиры, Копище, Леонардо Да Винчи ул., 2

Копище, Леонардо Да Винчи ул., 2, Пригород
395 851 руб. ( 133 400 USD) Цены в USD указаны справочно по курсу Национального банка на дату 14.11.2025
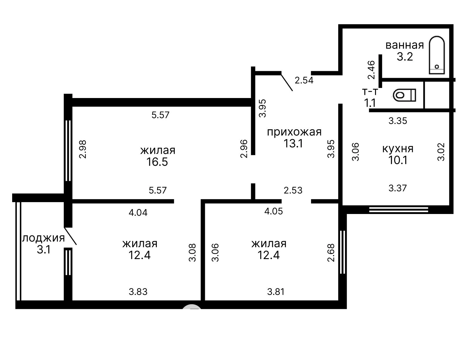
Общая площадь: 71.9 м²
Жилая площадь: 41.3 м²
Кухня: 10.1 м²
Этаж: 1 из 10
Комнаты: 2
Санузел: раздельный
Год постройки: 2015

Описание

Просторная трехкомнатная квартира с ремонтом в одном из самых популярных районов - Новая Боровая!

Функциональная планировка: жилые комнаты правильной прямоугольной формы, одна с выходом на застекленную лоджию, объемная кухня кухня 10.1 кв.м., раздельный санузел, просторный коридор.

Общая площадь квартиры по СНБ 71.9 кв.м.

Квартира готова к проживанию. В оконных проёмах установлены стеклопакеты с профилем из ПВХ, в том числе на лоджии. Напольное покрытие: паркетная доска. Встроенная кухонная мебель с техникой: духовой шкаф, варочная поверхность, вытяжка, посудомоечная машина. Санузел облицован плиткой, установлена необходимая сантехническая посуда и мебель. Оборудованы места хранения: два вместительных шкафа-купе. Входная дверь металлическая.

Установлены приборы учёта воды и тепла, видеодомофон, оптоволоконная система связи.

 

Преимуществом этой квартиры является наличие оборудованного собственного подвала на лоджии. Эта опция доступна только обладателям жилых помещений на первых этажах и значительно увеличивает площадь мест для хранения.

Ухоженный подъезд. Доброжелательные соседи.      

Подключена система видеонаблюдения придомовой территории. Вместительная гостевая парковка. На придомовой территории располагаются спортивные зоны, современные детские развивающие площадки, амфитеатр и летнее кафе.

Во дворах и у входов в подъезды оборудованы велосипедные парковки.

В шаговой доступности остановки общественного транспорта, торговые и бизнес-центры, объекты бытового обслуживания и сервиса, магазины, учреждения здравоохранения и образования, удобное транспортное сообщение и выезд на МКАД.

Дом расположен рядом с сосновым лесом, в нескольких минутах езды от центра столицы. 

   

Прямая продажа.

Свяжитесь  с нами  в viber  или telegram

Приглашаем на бесплатные консультации по продаже, покупке и обмену недвижимости на вторичном рынке и в новостройках!
Все и сразу! Для вас – максимум полезной информации от отпытных агентов и риэлтеров по вашей сделке!
Приходите! Кирова, 8, Независимости, 68
Звоните  по телефону 7735!


ООО Твоя столица, УНП 101136973, лицензия №02240/15 от 17.02.2005г., договор на оказание риэлтерских услуг №912/13 от 29.09.2025г.

Агент по недвижимости

Купля-продажа недвижимости, обмен, подбор вариантов. Работаю 24/7.
Обращаться
Офис 4 «Центральный»
ул. Кирова, 8, пом. 7-6
Майсак Наталья
5
(35 отзывов )
Программы и сервисы для выгодной покупки и продажи жилья
Ни одна сделка не признана недействительной
Группа компаний «Твоя столица», основанная в 1996 году, оказывает услуги во всех сегментах рынка недвижимости и является его лидером. В нашей команде более 250 высококвалифицированных специалистов.
1
3-комнатная квартира , Копище, Леонардо Да Винчи ул., 2
Леонардо Да Винчи ул., 2, Пригород:
71.9 / 41.3 / 10.1 м²
Похожие варианты
Все 87 предложения
Позвонить