Позвонить:
Online-консультации: Перезвоним за 15 секунд:
Ожидайте звонка. Уже звоним...
Сеть офисов:
Объект реализован

Продажа двухкомнатной квартиры, Минск, Цнянская ул., 13

Минск, Цнянская ул., 13, Советский район : Комаровка
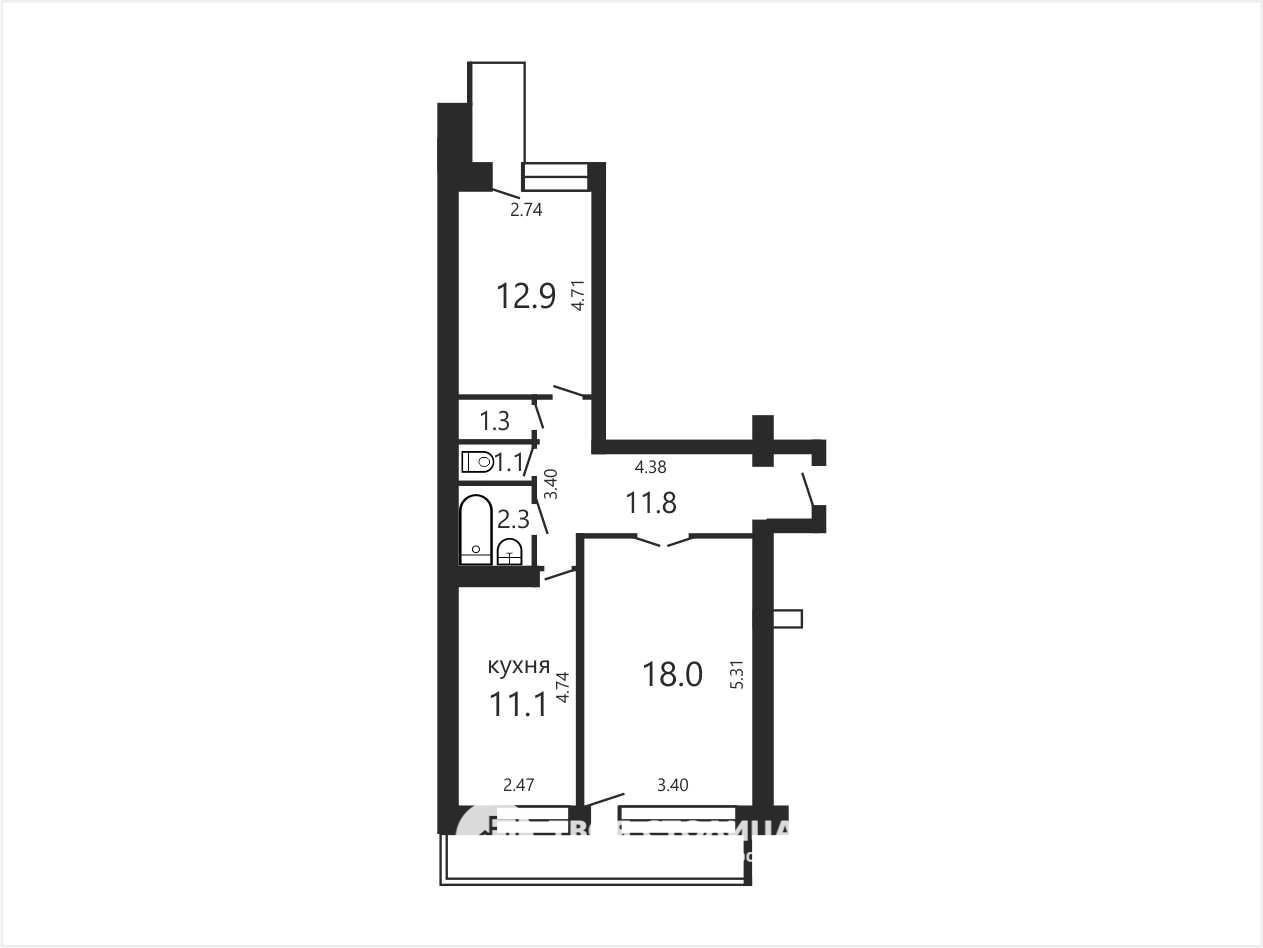
Общая площадь: 58.5 м²
Жилая площадь: 30.9 м²
Кухня: 11.1 м²
Этаж: 7 из 9
Комнаты: 2
Санузел: раздельный
Год постройки: 1971

Описание

Кирпичный дом после капитального ремонта находится в районе Комаровского рынка. Квартира готова к проживанию. Выгодное планировочное решение - окна выходят на разные стороны дома. 

Седьмой этаж девятиэтажного кирпичного дома. Установлены стеклопакеты. Корпусная кухня. Межкомнатные двери МДФ. Натяжные потолки. Гардеробная. Металлическая входная дверь. Два балкона, один застеклён. В пользовании есть подвальное помещение.

Зелёный двор. Детская современная площадка. Во дворе дома детские сады, школа. Рядом гимназия №30.

Рядом собрано все, что необходимо для комфортной жизни. Большой выбор магазинов, от небольших до огромных гипермаркетов и торговых центров. Рядом станции метро «Академия наук», «Площадь Якуба Коласа». Комаровский рынок, ТЦ `Рига`, ТЦ «Монетка», ТЦ «Зеркало», ТЦ «Силуэт», ТЦ «Импульс», ТЦ `Паркинг. Продуктовые круглосуточные магазины, банки, дежурные круглосуточные аптеки, поликлиника.

В шаговой доступности парк Дружбы Народов, любимое место для отдыха и прогулок всей семьёй. 

Звоните и мы с удовольствием организуем для вас просмотр этой квартиры.

Квалифицированную, бесплатную консультацию по покупке, продаже и обмену жилья можно получить в офисе Метро Академия наук по адресу: г. Минск, проспект Независимости, 68-126б.

Свяжитесь  с нами  в viber  или telegram
С 8 по 31 декабря 2025 НОВОГОДНИЕ БОНУСЫ для продавцов и покупателей в “ Твоей столице”!  Подробнее>> 


ООО Твоя столица, УНП 101136973, лицензия №02240/15 от 17.02.2005г., договор на оказание риэлтерских услуг №186/1 от 28.08.2025г.
Читать далее

Агент по недвижимости

Сегодня идеальный день чтобы начать воплощать ваши мечты. Удовольствие от работы делает работу безупречной .
Обращаться
Офис «Академия Наук»
пр. Независимости, 68
Соболевская Инга
5
(57 отзывов )
Программы и сервисы для выгодной покупки и продажи жилья
Ни одна сделка не признана недействительной
Группа компаний «Твоя столица», основанная в 1996 году, оказывает услуги во всех сегментах рынка недвижимости и является его лидером. В нашей команде более 250 высококвалифицированных специалистов.
1
2-комнатная квартира , Минск, Цнянская ул., 13
Цнянская ул., 13, Советский район: , Комаровка
58.5 / 30.9 / 11.1 м²
Похожие варианты
Все 43 предложения
Позвонить