Позвонить:
Online-консультации: Перезвоним за 15 секунд:
Ожидайте звонка. Уже звоним...
Сеть офисов:

Продажа двухкомнатной квартиры, Минск, Сердича ул., 17

Срочно
ТОП рынка
240 303 руб. ( 81 900 USD) Цены в USD указаны справочно по курсу Национального банка на дату 13.12.2025
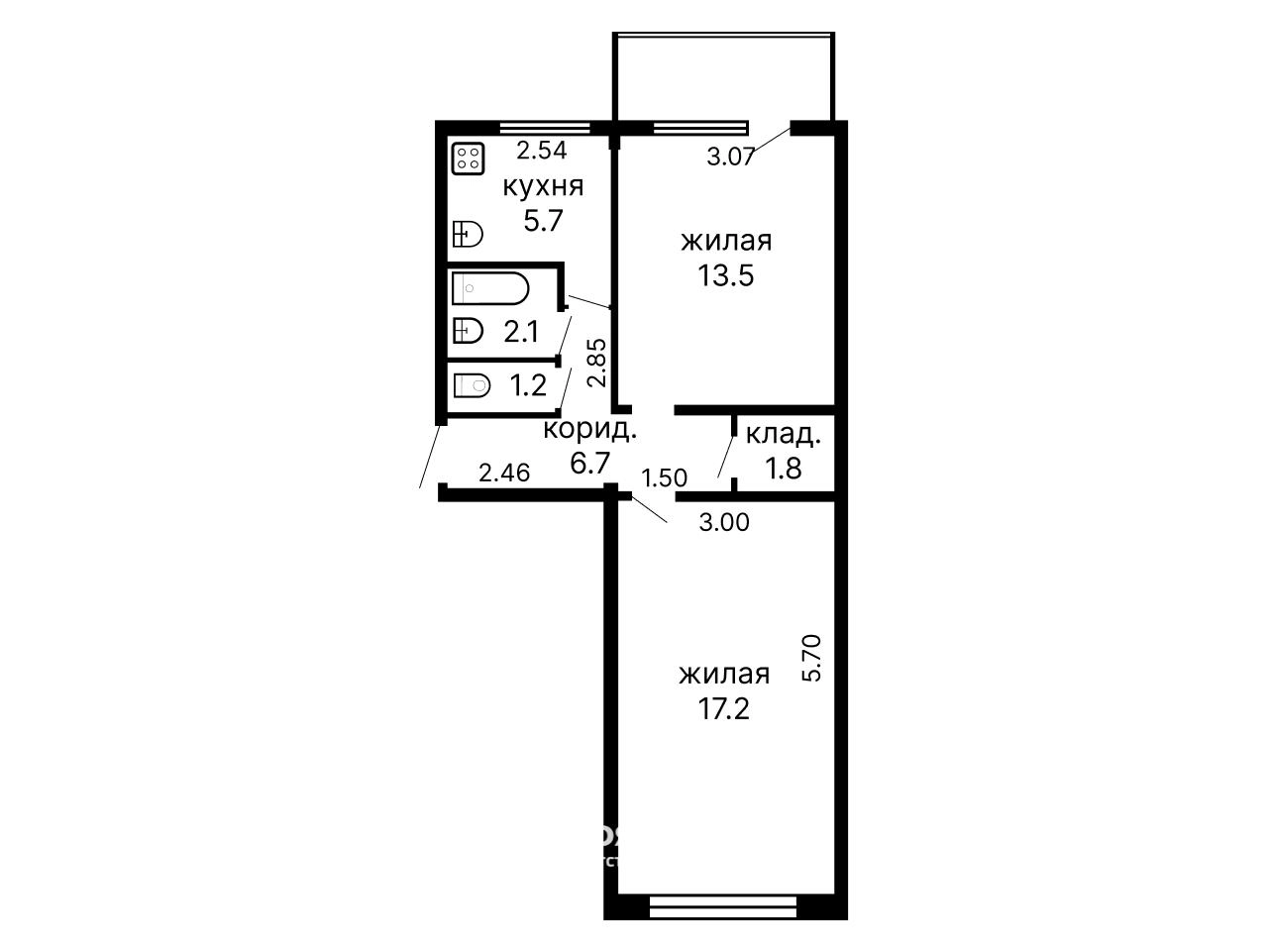
Общая площадь: 48.4 м²
Жилая площадь: 36.6 м²
Кухня: 5.7 м²
Этаж: 4 из 5
Комнаты: 2
Санузел: раздельный
Год постройки: 1969

Описание

Двухкомнатная квартира на Сердича, 17 — всё нужное находится рядом! Четвёртый этаж пятиэтажного дома. Удачная планировка: 2-е раздельные комнаты на разные стороны, отдельная кухня, раздельный санузел, балкон. Счётчики воды и газа, домофон, оптоволокно, деревянные стеклопакеты. Имеется кладовая и подвал.

Локация делает эту квартиру особенно ценной. До метро «Пушкинская» и «Спортивная» — приятная прогулка в десять–пятнадцать минут. Вокруг — зелёные дворы, несколько парков и скверов. Для покупок — ТЦ «Тивали», ТЦ «Скала», ТЦ «Раковский Кирмаш». Район давно обжитой, спокойный, с развитой инфраструктурой: детские сады, школы, поликлиника, отделения почты, банки - все под рукой. Приятный бонус - наличие свободных парковочных мест!

Звоните и приходите на просмотр!

Двухкомнатная квартира Сердича ул. 17 (Фрунзенский район)

Материал стен: панельный.

Год постройки: 1969. Этаж: 4/5, балкон

Общая площадь: 48.4. Жилая площадь: 36.6. Площадь кухни: 5.7. Высота потолка: 2.5.

Свяжитесь  с нами  в viber  или telegram
С 8 по 31 декабря 2025 НОВОГОДНИЕ БОНУСЫ для продавцов и покупателей в “ Твоей столице”!  Подробнее>>
Вам может быть интересно:

ТОП-20 ДЕШЕВЫХ КВАРТИР

БАЗА ПОКУПАТЕЛЕЙ – узнайте, кто готов купить вашу квартиру прямо сейчас!

КАЛЬКУЛЯТОР СТОИМОСТИ ЖИЛЬЯ – онлайн- расчет стоимости вашей квартиры!

ПЕРЕЕЗЖАЕМ В НОВОСТРОЙКУ-  программа  обмена старого жилья на новое. 2 сделки в 1 день!

ПАРТНЕР-КРЕДИТ  сопровождение кредитования для покупки и обмена «под ключ»

ВАШ ВАРИАНТ- проверка квартир перед покупкой и оформление сделки, если вы нашли объект самостоятельно.

 

 


ООО Твоя столица, УНП 101136973, лицензия №02240/15 от 17.02.2005г., договор на оказание риэлтерских услуг №1105/13 от 13.11.2025г.
Программы и сервисы для выгодной покупки и продажи жилья
Возможен обмен
Запрос
Ищем уютную квартиру для покупки! Нас интересуют варианты с одной или двумя комнатами. Бюджет на приобретение составляет от 93 000 до 97 000 у.е. Присматриваемся к предложениям площадью от 35 квадратных метров. Главное для нас – найти подходящий вариант, который станет новым домом. Ждем ваших предложений!
Желаемая цена
до 284 608 руб.
до 97 000 USD
Ни одна сделка не признана недействительной
Группа компаний «Твоя столица», основанная в 1996 году, оказывает услуги во всех сегментах рынка недвижимости и является его лидером. В нашей команде более 250 высококвалифицированных специалистов.
1
2-комнатная квартира , Минск, Сердича ул., 17
Сердича ул., 17, Фрунзенский район: , Пушкина-Глебки-Притыцкого-Ольшевского-Кальварийская
48.4 / 36.6 / 5.7 м²
руб.
USD
Похожие варианты
Все 33 предложения
Позвонить