Позвонить:
Online-консультации: Перезвоним за 15 секунд:
Ожидайте звонка. Уже звоним...
Сеть офисов:
Объект реализован

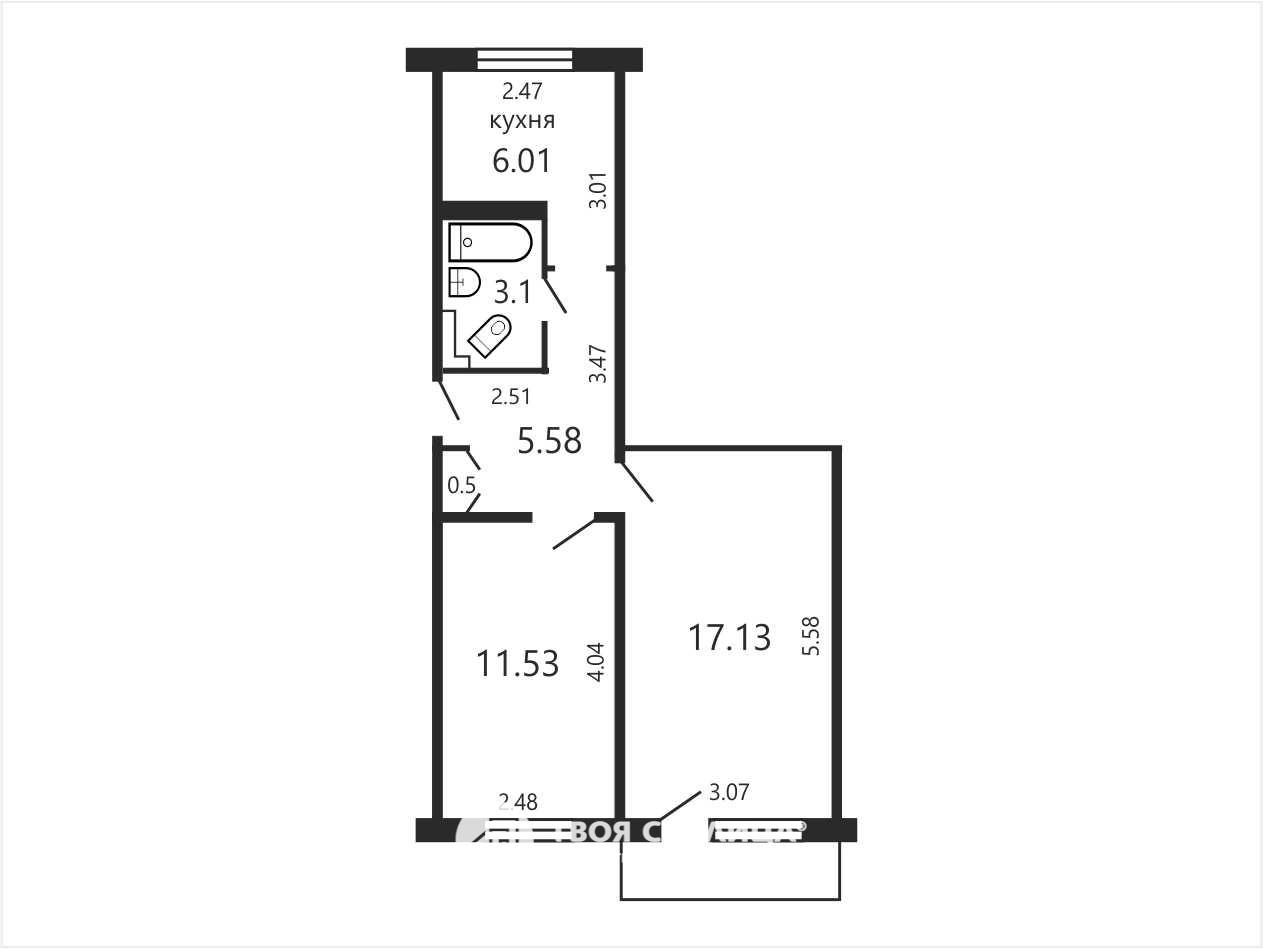
Продажа двухкомнатной квартиры, Минск, Одоевского ул., 83, к. 2

Общая площадь: 43.83 м²
Жилая площадь: 28.64 м²
Кухня: 6.01 м²
Этаж: 2 из 5
Комнаты: 2
Санузел: совмещенный
Год постройки: 1971

Описание

Продается уютная двухкомнатная квартира на ул. Одоевского, 83!

Предлагаем вашему вниманию светлую и комфортную квартиру с современным ремонтом, расположенную на втором этаже пятиэтажного панельного дома, построенного в 1971 году и капитально отремонтированного в 2006 году.

Общая площадь квартиры составляет 43.83 м², из которых 28.64 м² занимают уютные жилые комнаты, а кухня площадью 6.01 м² станет идеальным местом для кулинарных экспериментов.

Функциональная планировка квартиры включает раздельные комнаты, расположенные , что создает атмосферу уюта и приватности. Входная металлическая дверь обеспечивает надежность и безопасность. Установленны стеклопакеты ПВХ и межкомнатные двери МДФ . Полы покрыты ламинатом и плиткой, а два вместительных шкафа-купе помогут вам организовать пространство. Встроенная современная кухня с бытовой техникой. Совмещенный санузел, облицованный современной плиткой.

Благоустроенный район с чистым зеленым двором станет настоящим оазисом для отдыха и прогулок. Вам не придется беспокоиться о парковке — здесь всегда достаточно мест для вашего автомобиля.

Инфраструктура района не оставит вас равнодушными: в шаговой доступности находятся детские сады и школы, магазины и супермаркеты (Евроопт, Соседи, Green), торговые центры Тивали и рынок Раковский Кирмаш. Для приятного времяпрепровождения вы сможете посетить кинотеатр Аврора или насладиться отдыхом в парковых зонах.

Транспортная доступность также на высоте: всего в двух остановках от метро Пушкинская, что делает эту квартиру особенно привлекательной для тех, кто ценит комфорт и удобство.

Это идеальный вариант для комфортной жизни в развитом районе Минска!

Не упустите возможность стать владельцем этой замечательной квартиры. Звоните уже сегодня для организации просмотра!

Свяжитесь  с нами  в viber  или telegram


Калькулятор стоимости. Узнайте столько стоит ваша квартира за 30 секунд!
База покупателей. Предложите свой объект нашим покупателям!
Кредитование «под ключ». Рассчитайте сумму кредита и платежи!
Доставка риэлтерских услуг: Вызовите агента на дом для определения стоимости объекта, консультации по документам  и юридическим аспектам вашей сделки. 
Звоните-7735!


ООО Твоя столица, УНП 101136973, лицензия №02240/15 от 17.02.2005г., договор на оказание риэлтерских услуг №351/13 от 12.05.2025г.
Читать далее

Агент по недвижимости

Профессиональные услуги в сфере недвижимости — Минск 13 лет опыта, отличное знание рынка Прозрачные условия, без скрытых комиссий Индивидуальный подход к каждому клиенту Полное сопровождение: от подбора до оформления сделки Уважение к бюджету и пожеланиям клиента Этапы работы: Бесплатная консультация Анализ рынка и подбор объектов Организация просмотров Сопровождение сделки Свяжитесь со мной — и мы начнем путь к вашему новому дому.
Обращаться
Офис 2 «Центральный»
ул. Кирова, 8, пом. 7-6
Дроневич Ирина
5
(70 отзывов )
Программы и сервисы для выгодной покупки и продажи жилья
Ни одна сделка не признана недействительной
Группа компаний «Твоя столица», основанная в 1996 году, оказывает услуги во всех сегментах рынка недвижимости и является его лидером. В нашей команде более 250 высококвалифицированных специалистов.
1
2-комнатная квартира , Минск, Одоевского ул., 83, к. 2
Одоевского ул., 83, Фрунзенский район: , Одоевского-Пушкина-Притыцкого
43.83 / 28.64 / 6.01 м²
Похожие варианты
Все 16 предложения
Позвонить