Позвонить:
Online-консультации: Перезвоним за 15 секунд:
Ожидайте звонка. Уже звоним...
Сеть офисов:

Продажа двухкомнатной квартиры, Минск, Менделеева ул., 15

ТОП рынка
230 396 руб. ( 79 000 USD) Цены в USD указаны справочно по курсу Национального банка на дату 14.01.2026
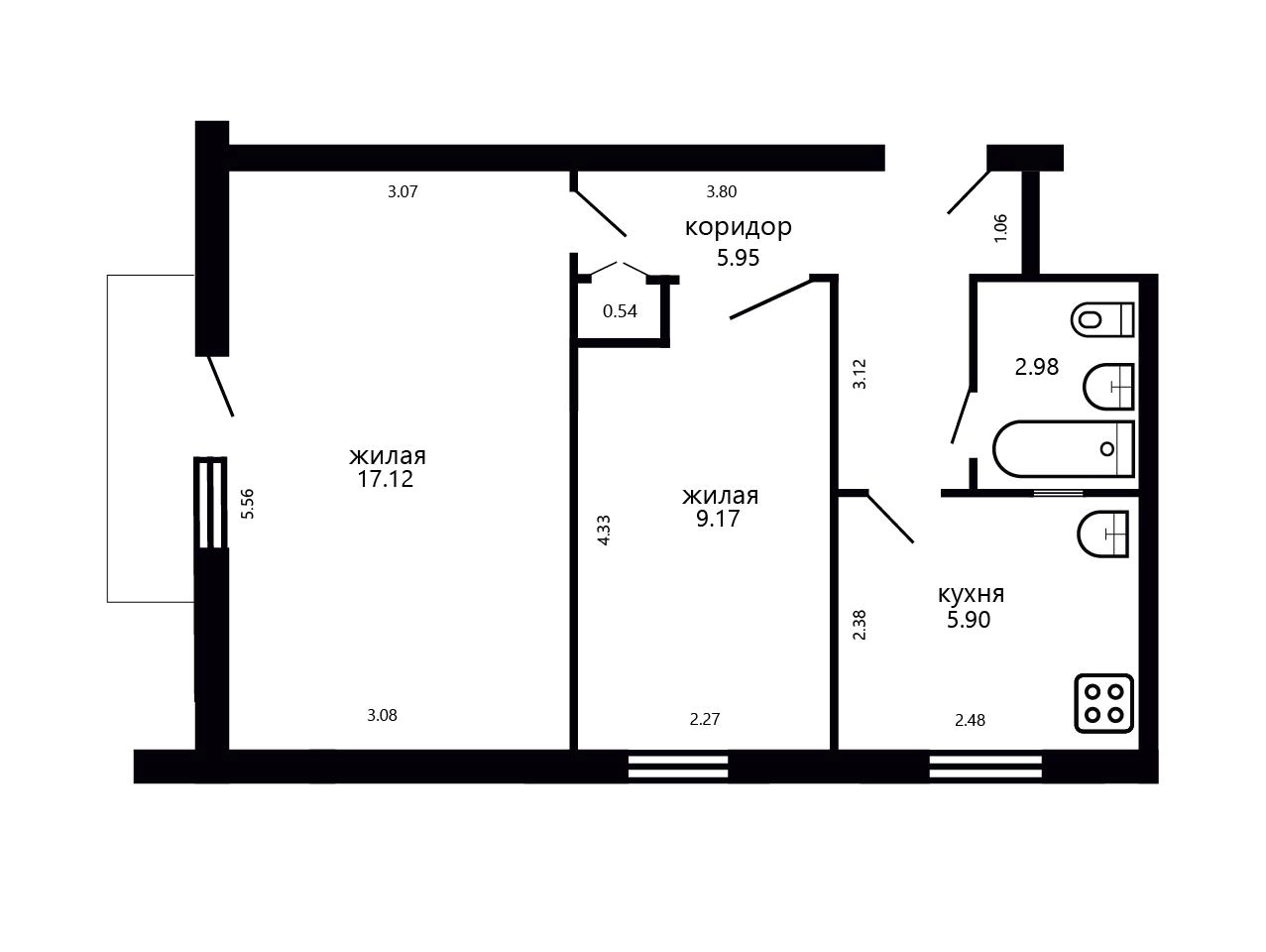
Общая площадь: 41.7 м²
Жилая площадь: 26.29 м²
Кухня: 5.9 м²
Этаж: 2 из 5
Комнаты: 2
Санузел: совмещенный
Год постройки: 1964

Описание

ПРОДАЕТСЯ УЮТНАЯ ДВУХКОМНАТНАЯ КВАРТИРА С РЕМОНТОМ У БОТАНИЧЕСКОГО САДА

Эта светлая и комфортная квартира, расположенная в одном из самых зеленых районов города. общей площадью 41.7 м² расположена на втором этаже кирпичного дома, построенного в 1964 году. Капитальный ремонт был завершен в 2024 году

Квартира полностью готова к проживанию.

ГЛАВНЫЕ ПРЕИМУЩЕСТВА:

• Свежий капитальный ремонт 2024 года

• Современные стеклопакеты для комфортной температуры

• Стильный санузел с новой плиткой

• Вместительный шкаф-купе для хранения

• Функциональная кухня для кулинарных шедевров

РАЙСКОЕ МЕСТОПОЛОЖЕНИЕ:

• Живописный Ботанический сад по соседству

• ФОК “ЭкоСпорт” для активного образа жизни

• Набережная Слепянской водной системы для прогулок

• Школы №108, 133 и гимназия №5 для ваших детей

ТРАНСПОРТНАЯ ДОСТУПНОСТЬ:

• 3 остановки до метро “Академия наук”

• 10 минут пешком до ж/д станции “Тракторный завод”

• Вся необходимая инфраструктура в пешей доступности

Эта квартира создана для тех, кто ценит комфорт, практичность и близость к природе. Здесь каждый день будет наполнен свежестью зелени и спокойствием уютного района!

Звоните прямо сейчас для организации просмотра!

Не упустите шанс стать владельцем квартиры вашей мечты!

Поможем выгодно продать вашу квартиру для покупки этой.

Консультация по кредиту.

Расширенные консультации по покупке, продаже и обмену вашей недвижимости можно получить в офисе Центральном , расположенном в Бизнес-центре Kiroff по адресу Минск, улица Кирова, 8.

Свяжитесь  с нами  в viber  или telegram


ООО Твоя столица, УНП 101136973, лицензия №02240/15 от 17.02.2005г., договор на оказание риэлтерских услуг №193/13 от 11.03.2025г.

Агент по недвижимости

Работа в прошлом бухгалтером и образование инженера позволяет находить конструктивные решения в работе. Важным в своей профессии считаю умение слушать и слышать клиента, выявлять его потребности, дружелюбие и дипломатичность. Умею работать в команде. Постоянно совершенствую свои знания. Использую в работе современные средства связи. Высокий процент повторных клиентов и по рекомендации.
Обращаться
Офис «Центральный»
ул. Кирова, 8, пом. 7-6
Буко Светлана
5
(24 отзыва )
Связаться с агентом
Программы и сервисы для выгодной покупки и продажи жилья
Возможен обмен
Запрос
Ищу двухкомнатную квартиру для покупки с продажей своей недвижимости. Бюджет - от 65 до 80 тысяч у.е.
Желаемая цена
до 233 312 руб.
до 80 000 USD
Ни одна сделка не признана недействительной
Группа компаний «Твоя столица», основанная в 1996 году, оказывает услуги во всех сегментах рынка недвижимости и является его лидером. В нашей команде более 250 высококвалифицированных специалистов.
1
2-комнатная квартира , Минск, Менделеева ул., 15
Менделеева ул., 15, Партизанский район: , Менделеева, Столетова
41.7 / 26.29 / 5.9 м²
руб.
USD
Похожие варианты
Все 23 предложения
Позвонить