Позвонить:
Online-консультации: Перезвоним за 15 секунд:
Ожидайте звонка. Уже звоним...
Сеть офисов:
Объект в архиве

Продажа двухкомнатной квартиры, Минск, Голодеда ул., 8, к. 2

Минск, Голодеда ул., 8, Заводской район : Чижовка
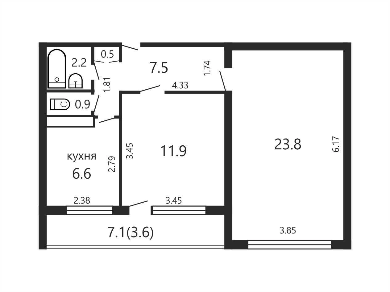
Общая площадь: 53.4 м²
Жилая площадь: 35.7 м²
Кухня: 6.6 м²
Этаж: 1 из 9
Комнаты: 2
Год постройки: 1978

Описание

Двухкомнатная квартира в кирпичном доме.

Год постройки: 1978. Этаж: 1/9, лоджия застеклена

Площадь квартиры по СНБ 57. Общая площадь: 53.4. Жилая площадь: 35.7. Площадь кухни: 6.6.

Практичная планировка: комнаты раздельные площадью 23.8м и 11.9м

  • В комнатах установлены стеклопакеты ПВХ. На лоджии раздвижные алюминиевые рамы.
  • Напольное покрытие - шлифованная доска.
  • Вместительный шкаф-купе в прихожей.

Развитая инфраструктура района. В пешей доступности от дома детские сады, общеобразовательные школы,, магазины, парк культуры и отдыха Красная Слобода и парк имени 900-летия города Минска, зоопарк, дельфинарий, океанариум, спортивный комплекс Чижовка - Арена.

Удобный выезд на МКАД. Хорошее транспортное сообщение. До станции метро Автозаводская 10 минут на общественном транспорте.

Расширенные консультации по покупке, продаже и обмену вашей недвижимости можно получить в офисе Центральном по адресу г. Минск, ул. Кирова 8.

Вам нужно продать или обменять недвижимость?
Звоните 7735 или оставьте заявку  и получите бесплатную консультацию профильного специалиста.
Online-сервисы «Твоя столица»: 
Калькулятор стоимости. Узнайте столько стоит ваша квартира за 30 секунд!
База покупателей. Предложите свой объект нашим покупателям!
Кредитование «под ключ». Рассчитайте сумму кредита и платежи!
Доставка риэлтерских услуг: Вызовите агента на дом для определения стоимости объекта, консультации по документам  и юридическим аспектам вашей сделки. 
Звоните-7735!


ООО Твоя столица, УНП 101136973, лицензия №02240/15 от 17.02.2005г., договор на оказание риэлтерских услуг №695/13 от 25.11.2024г.

Агент по недвижимости

Специализируюсь на всех операциях с недвижимостью: покупка, продажа, обмен, богатый опыт в срочных продажах квартир . Стремлюсь помочь клиенту выгодно осуществить сделку. Из личных качеств порядочность, доброжелательность, тактичность.
Обращаться
Офис 2 «Центральный»
ул. Кирова, 8, пом. 7-6
Колячонок Елена
5
(61 отзыв )
Программы и сервисы для выгодной покупки и продажи жилья
Ни одна сделка не признана недействительной
Группа компаний «Твоя столица», основанная в 1996 году, оказывает услуги во всех сегментах рынка недвижимости и является его лидером. В нашей команде более 250 высококвалифицированных специалистов.
1
2-комнатная квартира , Минск, Голодеда ул., 8, к. 2
Голодеда ул., 8, Заводской район: , Чижовка
53.4 / 35.7 / 6.6 м²
Похожие варианты
Все 22 предложения
Позвонить