Позвонить:
Online-консультации: Перезвоним за 15 секунд:
Ожидайте звонка. Уже звоним...
Сеть офисов:
7735
Пн - Вс с 09.00 по 22.00

Продажа двухкомнатной квартиры, Минск, Гастелло ул., 8

Новостройка
506 902 руб. ( 184 000 USD) Цены в USD указаны справочно по курсу Национального банка на дату 26.05.2026
Общая площадь: 50.5 м²
Жилая площадь: 37.5 м²
Кухня: 8.7 м²
Этаж: 10 из 12
Комнаты: 2
Санузел: совмещенный
Год постройки: 2024

Описание

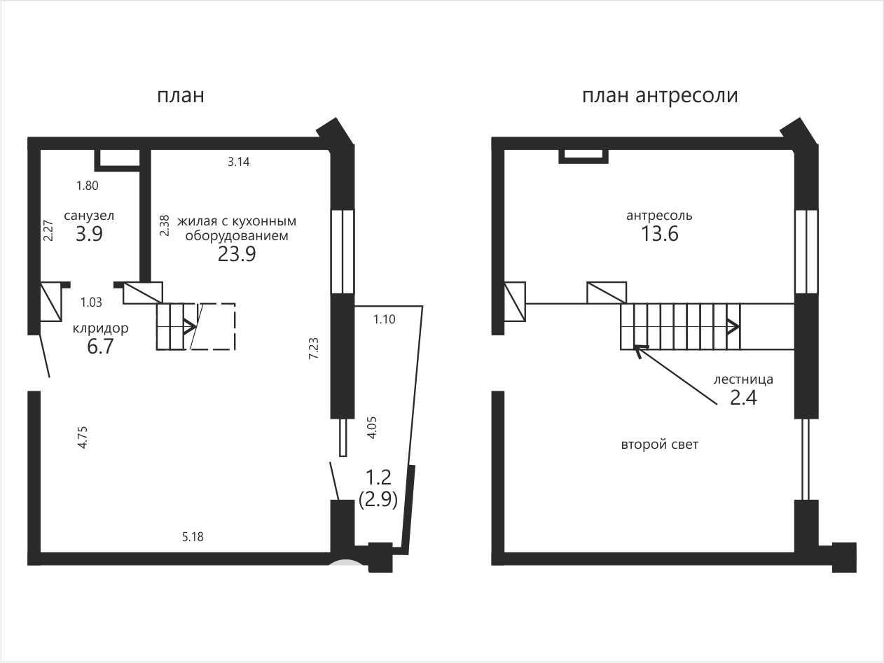
Два уровня свободы для самых смелых, динамичных и творческих.

Представляем пентхаус на верхнем этаже в ЖК комфорт-класса "Гастелло резиденс". Роскошный лофт: потолки 6 метров, первый уровень для зоны релакса и кухни, наверху спальня или кабинет со вторым светом. Панорамное остекление открывает вид на город и самый большой парк в Минске. Это не 52 квадрата, это 250 кубов свободы. Выше только звезды и твои амбиции!

Квартира готова для финальной меблировки. Отделка экстра-класса: ламинат Joss Beaumon, дизайнерские радиаторы Arbonia, сантехника представлена брендом Grohe, душевая кабина Rea, электрика Legrand, премиальные двери с итальянскими замками, кондиционер Electrolux, вытяжка Franke, стены - декоративная штукатурка. 10 сценариев освещения! Лестница между этажами - на заказ, оригинальной формы и очень надежная.

В квартире премиум инженерные коммуникации: индивидуальная система отопления и электроснабжения (новый вводной кабель, свой распределительный щит), резервный электрический бойлер, заложены выводы для всей техники (сушильная, стиральная, посудомоечная машины, измельчитель и т.д).

Дом комфорт-класса: монолит, фиброфасады, система охраны, видеонаблюдение, общедомовой чат, закрытый двор. Супер инфраструктура - озеро и парк (пробежки, йога, романтика!), 3 огромных ТЦ, много продуктовых и кофейни, салоны, до Немиги 15 минут.

Большой потенциал для аренды или счастливой жизни.

Твой масштаб? Звони и приходи убедиться!

Возможна покупка двух парковочных мест с личной электрозарядной станцией, прямой спуск на лифте.

Поможем выгодно продать вашу квартиру для покупки этой!

Консультация по кредиту!

Расширенные консультации по покупке, продаже и обмену вашей недвижимости можно получить в офисе Центральном , расположенном в Бизнес-центре Kiroff по адресу Минск, улица Кирова, 8. 2 этаж.

Свяжитесь  с нами  в  viber или telegram

 


ООО Твоя столица, УНП 101136973, лицензия №02240/15 от 17.02.2005г., договор на оказание риэлтерских услуг №365/13 от 03.04.2026г.
Читать далее
Офис 8 «Центральный» , ул. Кирова, 8, пом. 7-6
Узнать подробнее
Программы и сервисы для выгодной покупки и продажи жилья
Ни одна сделка не признана недействительной
Группа компаний «Твоя столица», основанная в 1996 году, оказывает услуги во всех сегментах рынка недвижимости и является его лидером. В нашей команде более 250 высококвалифицированных специалистов.
1
2-комнатная квартира , Минск, Гастелло ул., 8
Гастелло ул., 8, Центральный район: , Тимирязева-Победителей-Машерова
50.5 / 37.5 / 8.7 м²
506 902 руб.
184 000 USD
Позвонить