Позвонить:
Online-консультации: Перезвоним за 15 секунд:
Ожидайте звонка. Уже звоним...
Сеть офисов:

Продажа двухкомнатной квартиры, Минск, Ангарская ул., 18, к. 3

Срочно
ТОП рынка
203 433 руб. ( 69 000 USD) Цены в USD указаны справочно по курсу Национального банка на дату 15.12.2025 Предложить свою цену
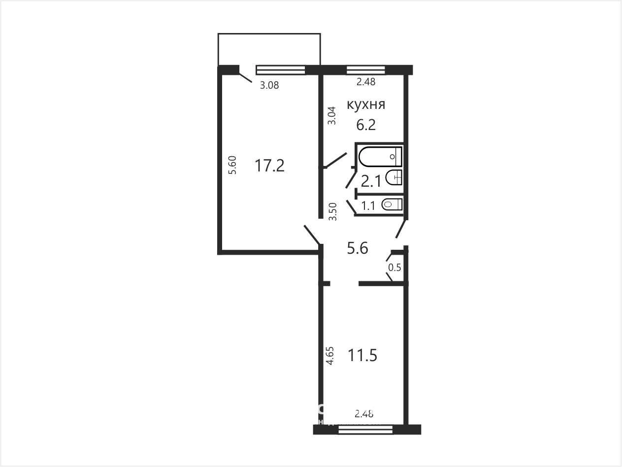
Общая площадь: 44.2 м²
Жилая площадь: 28.7 м²
Кухня: 6.2 м²
Этаж: 5 из 5
Комнаты: 2
Санузел: раздельный
Год постройки: 1966

Описание

В продаже уютная двухкомнатная квартира на Ангарской ул., д. 18, в Заводском районе — готова к проживанию.

Функциональная планировка с окнами, выходящими на разные стороны, создаёт приятную атмосферу и обеспечивает хорошее естественное освещение.

Дом панельный, построен в 1966 году

Капитальный ремонт дома выполнен в 2005году

Квартира расположена на 5 этаже из 5.

Общая площадь — 44,2 м², жилая — 28,7 м², кухня — 6,2 м², высота потолков — 2,61 м. Застеклённый балкон с раздвижными алюминиевыми рамами станет отличным местом для отдыха.

В квартире установлены стеклопакеты ПВХ, в прихожей и одной из комнат — вместительные встроенные шкафы-купе, а также современная встроенная кухня с бытовой техникой. Санузел совмещённый, облицован стильной современной плиткой.

Район обеспечен чистой водой из подземных артезианских источников.

Инфраструктура развита: рядом несколько детских садов, школы, магазины, гипермаркет «МОМО», сервисные центры и спортивно-оздоровительный комплекс «Мандарин».

Отличное транспортное сообщение — в шаговой доступности станция метро «Могилевская» и удобный выезд на МКАД.

Купить или продать квартиру в Минске - легко и выгодно вместе с агентством недвижимости " Твоя столица"! Получите бесплатную консультацию покупке, продаже и обмену квартиры в Минске у опытных риэлтеров. Для Вас - актуальная база жилья с ценами, фото, планировками и услуги продажи квартир. Проконсультируем по алгоритму сделки, по необходимым документам!, Приходите на бесплатную консультацию риэлтера для покупки. Наш офис находится по адресу - Минск, Кирова, 8

Свяжитесь  с нами  в viber  или telegram
С 8 по 31 декабря 2025 НОВОГОДНИЕ БОНУСЫ для продавцов и покупателей в “ Твоей столице”!  Подробнее>>
Вам может быть интересно:

ТОП-20 ДЕШЕВЫХ КВАРТИР

БАЗА ПОКУПАТЕЛЕЙ – узнайте, кто готов купить вашу квартиру прямо сейчас!

КАЛЬКУЛЯТОР СТОИМОСТИ ЖИЛЬЯ – онлайн- расчет стоимости вашей квартиры!

ПЕРЕЕЗЖАЕМ В НОВОСТРОЙКУ-  программа  обмена старого жилья на новое. 2 сделки в 1 день!

ПАРТНЕР-КРЕДИТ  сопровождение кредитования для покупки и обмена «под ключ»

ВАШ ВАРИАНТ- проверка квартир перед покупкой и оформление сделки, если вы нашли объект самостоятельно.

 

 


ООО Твоя столица, УНП 101136973, лицензия №02240/15 от 17.02.2005г., договор на оказание риэлтерских услуг №551/13 от 27.06.2025г.

Агент по недвижимости

Ваш надежный агент недвижимости в Минске – работаю с душой и результатом! ✔ Я помогу продать вашу недвижимость максимально выгодно и безопасно! ✔ПОЧЕМУ ВЫБИРАЮТ МЕНЯ?✔ Клиенты возвращаются и рекомендуют – более 80% сделок по рекомендациям✔ Честные отзывы – можете почитать реальные истории клиентов на моем сайте✔ Современные технологии – работаем через Skype, Viber, соцсети – всегда на связи✔ Прозрачные условия – никаких скрытых комиссий✔ Персональный подход – учитываю все ваши пожелания✔ КАК Я ПОМОГУ ПРОДАТЬ КВАРТИРУ? 1. Бесплатная оценка – точно определим рыночную стоимость 2. Эффективная реклама – размещение на всех популярных площадках 3. Организация показов – берегу ваше время 4. Сопровождение сделки – от переговоров до регистрации ✔ Просто напишите – и мы начнем работать уже сегодня!✔Люблю свою работу! "Ваши благодарные отзывы и повторные обращения – лучшая оценка моего труда." P.S. Работаю через удобные для вас каналы – Viber, Skype, соцсети. Давайте обсудим вашу ситуацию!
Обращаться
Офис 2 «Центральный»
ул. Кирова, 8, пом. 7-6
Кондратьева Маргарита
5
(71 отзыв )
Связаться с агентом
Программы и сервисы для выгодной покупки и продажи жилья
Возможен обмен
Запрос
Ищу квартиру для покупки, желательно с одной спальней.  Цена — от 65 000 до 70 000 у.е.
Желаемая цена
до 206 381 руб.
до 70 000 USD
Ни одна сделка не признана недействительной
Группа компаний «Твоя столица», основанная в 1996 году, оказывает услуги во всех сегментах рынка недвижимости и является его лидером. В нашей команде более 250 высококвалифицированных специалистов.
1
2-комнатная квартира , Минск, Ангарская ул., 18, к. 3
Ангарская ул., 18, Заводской район: , Ангарская
44.2 / 28.7 / 6.2 м²
руб.
USD
Похожие варианты
Все 25 предложения
Позвонить