Позвонить:
Online-консультации: Перезвоним за 15 секунд:
Ожидайте звонка. Уже звоним...
Сеть офисов:
Объект реализован

Продажа двухкомнатной квартиры, Мачулищи, Молодежная ул., 22

Мачулищи, Молодежная ул., 22, Пригород
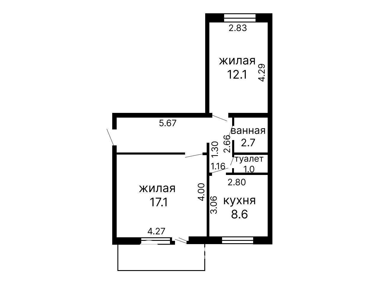
Общая площадь: 52.4 м²
Жилая площадь: 29.2 м²
Кухня: 8.6 м²
Этаж: 3 из 5
Комнаты: 2
Санузел: раздельный
Год постройки: 1992

Описание

Двухкомнатная квартира с хорошим ремонтом в 15 минутах езды от Минска - центр городского посёлка Мачулищи. 

Квартира в аккуратном состоянии. Установлена входная металлическая дверь. В оконных проёмах стеклопакеты ПВХ, на балконе раздвижные алюминиевые рамы. Напольное покрытие - ламинат, плитка. Встроенная кухонная мебель с бытовой техникой ( варочная поверхность, духовой шкаф, вытяжка). Два встроенных шкафа-купе. В санузле плитка современного образца. Установлены счетчики воды, электрический бойлер, домофон.

Ухоженный подъезд, парковочные места, зелёный двор, живописные виды. 

Выгодное расположение дома - в центре городского посёлка, делает проживание ещё более комфортным.

В шаговой доступности находится замечательный парк - белорусский биологический заказник "Соколиный". Этот парк является излюбленным местом отдыха не только жителей г.п.Мачулищи, но и жителей близлежащих поселков и даже минчан.

В районе дома хорошо развита инфраструктура: в шаговой доступности находятся врачебная амбулатория, общеобразовательная школа, детский сад, «Евроопт», «Беларусбанк», почта, поликлиника, рынок, различные магазины, библиотека, спортзал.

Г.п. Мачулищи расположен на расстоянии 15 км. от МКАД и имеет отличное транспортное сообщение с Минском. От дома до ж/д станции Мачулищи пешком 7 - 10 минут. Остановка маршрутного такси и автобуса вообще рядом с домом. До центра Минска от г.п.Мачулищи на электричке 18-22 минуты.

Поможем выгодно продать вашу квартиру для покупки этой. Расширенные консультации по покупке, продаже и обмену вашей квартиры на этот объект можно получить в Центральном офисе «Твоя столица" по адресу г. Минск, ул. Кирова, 8

Свяжитесь  с нами  в viber  или telegram
ТОП-20 ДЕШЕВЫХ КВАРТИР
БАЗА ПОКУПАТЕЛЕЙ – узнайте, кто готов купить вашу квартиру прямо сейчас!
КАЛЬКУЛЯТОР СТОИМОСТИ ЖИЛЬЯ – онлайн- расчет стоимости вашей квартиры!
ПЕРЕЕЗЖАЕМ В НОВОСТРОЙКУ-  программа  обмена старого жилья на новое. 2 сделки в 1 день!
ПАРТНЕР-КРЕДИТ  сопровождение кредитования для покупки и обмена «под ключ»
ВАШ ВАРИАНТ- проверка квартир перед покупкой и оформление сделки, если вы нашли объект самостоятельно.

 


ООО Твоя столица, УНП 101136973, лицензия №02240/15 от 17.02.2005г., договор на оказание риэлтерских услуг №868/13 от 18.09.2025г.

Агент по недвижимости

За время работы в агентстве, а это более 20 лет, я ни разу не пожалела о своем выборе. Мне нравится моя работа, люблю общаться, помогать людям решать их жилищный вопрос. Большой процент повторных и по рекомендации клиентов.
Обращаться
Офис 7 «Центральный»
ул. Кирова, 8, пом. 7-6
Зель Наталья
5
(39 отзывов )
Программы и сервисы для выгодной покупки и продажи жилья
Ни одна сделка не признана недействительной
Группа компаний «Твоя столица», основанная в 1996 году, оказывает услуги во всех сегментах рынка недвижимости и является его лидером. В нашей команде более 250 высококвалифицированных специалистов.
1
2-комнатная квартира , Мачулищи, Молодежная ул., 22
Молодежная ул., 22, Пригород:
52.4 / 29.2 / 8.6 м²
Похожие варианты
Все 19 предложения
Позвонить