Позвонить:
Online-консультации: Перезвоним за 15 секунд:
Ожидайте звонка. Уже звоним...
Сеть офисов:

Продажа однокомнатной квартиры, Минск, Минина ул., 6

Новостройка
247 255 руб. ( 84 500 USD) Цены в USD указаны справочно по курсу Национального банка на дату 14.03.2026
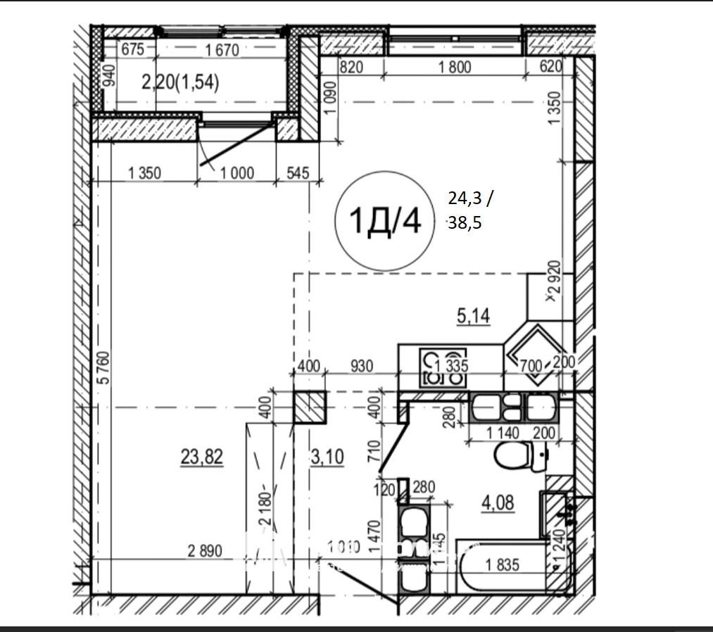
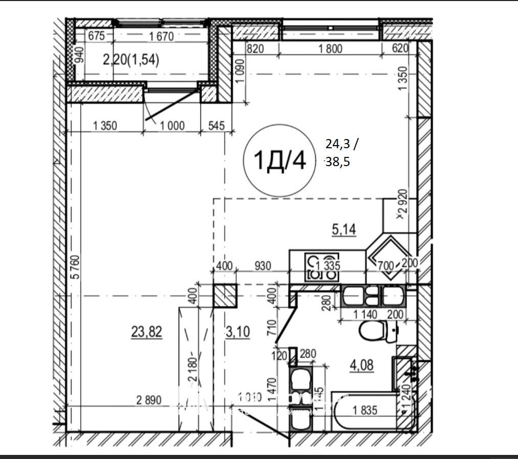
Общая площадь: 37 м²
Жилая площадь: 29.3 м²
Кухня: 8 м²
Этаж: 12 из 21
Комнаты: 1
Санузел: совмещенный
Год постройки: 2025

Описание

Продается готовая квартира в ЖК «Дубравинский» на 12 этаже с красивым панорамным видом!!

Новый квартал в центральной части города на пересечении улиц Минина и Железнодорожной.

Удобная планировка позволит реализовать любую дизайнерскую идею!

Возможность оформить как квартиру евро-формата – гостиная совмещенная с кухней и отдельная полноценная комната, либо квартиру-студию. 38,5 м2 по СНБ.

Окна выходят во двор на западную сторону, что позволит в вечернее время любоваться закатом!

Общие характеристики:

конструктивная схема здания – монолитный каркас;

наружные стены выполнены из газосиликатного блока с утеплением (минеральная вата);

внутренние стены, внутриквартирные перегородки из блоков.

Дом оснащен 3 лифтами (пассажирский и два грузопассажирских).

Характеристики квартиры:

высота потолков — 2,5 м;

стены — оштукатуренные;

стяжка пола без чистового покрытия;

монтаж стояков канализации с установкой унитаза;

система отопления - алюминиевые радиаторы;

счетчики на воду, электроэнергию и отопление;

подведено оптоволокно;

установлена домофонная система доступа в жилой дом;

электротехническая разводка, установлены розетки.

Развитая инфраструктура: рядом расположены ТЦ «Outleto», ТЦ «Глобо», спортивный комплекс, школа, детский сад, поликлиника.

Ближайшие станции метро Михалово и Грушевка, на автомобиле до Немиги -12 минут.

Организуем просмотр в удобное для Вас время!

Поможем выгодно продать вашу квартиру для покупки этой!

Консультация по кредиту!

Расширенные консультации по покупке, продаже и обмену вашей недвижимости можно получить в офисе Центральном , расположенном в Бизнес-центре Kiroff по адресу Минск, улица Кирова, 8. 2 этаж.

Свяжитесь  с нами  в viber  или telegram


ООО Твоя столица, УНП 101136973, лицензия №02240/15 от 17.02.2005г., договор на оказание риэлтерских услуг №189/13 от 24.02.2026г.
Читать далее

Риэлтер

Готова стать Вашим проводником в мир недвижимости. Помогаю купить или продать квартиру легко и с уверенностью — как для себя. Без стресса, без сюрпризов — только результат и спокойствие. Я не просто продаю квартиры — я строю доверие. 17 лет опыта, честность, прозрачность и поддержка на каждом шаге сделки.
Обращаться
Офис «Центральный»
ул. Кирова, 8, пом. 7-6
Богинская Юлия
5
(9 отзывов )
Связаться с агентом
Программы и сервисы для выгодной покупки и продажи жилья
Ни одна сделка не признана недействительной
Группа компаний «Твоя столица», основанная в 1996 году, оказывает услуги во всех сегментах рынка недвижимости и является его лидером. В нашей команде более 250 высококвалифицированных специалистов.
1
1-комнатная квартира , Минск, Минина ул., 6
Минина ул., 6, Московский район: , Дзержинского, Уманская, Железнодорожная
37 / 29.3 / 8 м²
руб.
USD
Похожие варианты
Все 28 предложения
Позвонить