Назад к
списку
ОДО «Твоя столицаконсалт», лицензия выд. Минюстом 20.09.2006 № 02240/129, УНП 190285638, договор РУ №102/6а от 20.11.2025
Объект в архиве
1-й этаж, отд. вход
Цена от собственника
85.3 м² - общая площадь
Арендатор не оплачивает услуги агентства
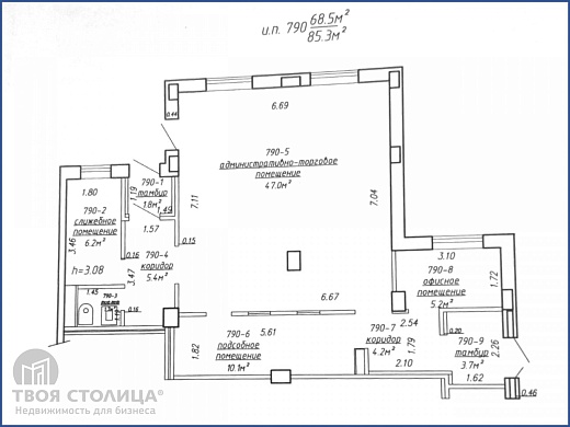
Административно- торговое помещение площадью 85,3 кв.м. на первом этаже жилого дома с тремя отдельными входами по адресу ул. Беды, 45. Доступ 24/7.
Помещение с хорошим ремонтом включает в себя четыре кабинета, сан. узел. Функционирует электричество, центральное отопление, вентиляции, пожарная сигнализация, высокоскоростной интернет.
В непосредственной близости находится ЖК "Четыре сезона", ТЦ "4 сезона" с паркингом, аптека, точки общественно питания, а также торгового назначения и сферы услуг.
В шаговой доступности остановки общественного транспорта.
Арендатор не оплачивает услуги агентства.
Помещение с хорошим ремонтом включает в себя четыре кабинета, сан. узел. Функционирует электричество, центральное отопление, вентиляции, пожарная сигнализация, высокоскоростной интернет.
В непосредственной близости находится ЖК "Четыре сезона", ТЦ "4 сезона" с паркингом, аптека, точки общественно питания, а также торгового назначения и сферы услуг.
В шаговой доступности остановки общественного транспорта.
Арендатор не оплачивает услуги агентства.
ОДО «Твоя столицаконсалт», лицензия выд. Минюстом 20.09.2006 № 02240/129, УНП 190285638, договор РУ №102/6а от 20.11.2025
Дата
обновления: 17.02.2026
- Год постройки - 2010
- Керамзитобетонные блоки
- 1 из 16 этажей
- Отдельный вход
- Юридический адрес
- Собственный санузел
- Вода
- Отопление
- Электричество
Офис в аренду, Минск, Леонида Беды, 45
Леонида Беды, 45, Советский район:
35.2 руб / м² в мес.
12.03 USD без НДС (физ.лицо)
Для наших клиентов действует программа «Партнер-кредит». При приобритении данного объекта Вы можете
воспользоваться программой кредитования от нашего партнера
ЗАО «МТБ-Банк»*
На текущий момент ЗАО "МТБанк" рассматривает заявки на кредитование приобретении коммерческой недвижимости от юридических лиц и ИП на следующих условиях:
Срок финансирования - 12-60 мес.
Ставка в бел. руб от 13,0% годовых, в долларах США от 8,5% годовых, в евро от 9,0% годовых.
Собственное участие - от 20%