Позвонить:
Online-консультации: Перезвоним за 15 секунд:
Ожидайте звонка. Уже звоним...
Сеть офисов:
Объект в архиве

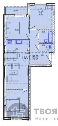
Продажа четырехкомнатной квартиры, Минск, Минина ул., 5

Общая площадь: 76.01 м²
Жилая площадь: 53.06 м²
Этаж: 1 из 21
Комнаты: 4 и более
Год постройки: 2026

Описание

Типовая квартира рядом с зеленым сквером.

Под чистовую отделку.

В квартире выполняется стяжка пола и штукатурка стен.

Стеклопакеты - ПВХ двухкамерные в квартире, лоджия остеклена.

Устанавливается входная дверь, из сантехпосуды - унитаз.

Разводка электрики с установкой розеток и выключателей, подводка оптоволокна.

Установка счетчиков воды и радиаторов отопления с терморегулирующими головками.

Линейная (в полу) разводка труб отопления.

3 малошумных лифта. 

Квартира находится в доме ЖК Дубравинский, 5-ая очередь строительства, жилой комплекс «Дубравинский».
Вам может быть интересно
ONLINE – подбор квартир в новостройках
Партнер-кредит: программы кредитования от банков-партнеров
Переезжаем в новостройку: одновременная продажа имеющегося жилья и покупка квартиры в новостройке
ОДО Твоя столицаконсалт, УНП 190285638, лицензия №02240/129 от 06.09.06г., договор на оказание риэлтерских услуг №6/4 от 26.09.2022г.
Читать далее

Агент по недвижимости

"Я люблю свою работу, нестандартные, сложные ситуации, решение которых зажигает огонь внутри. Самое приятное в работе специалиста по недвижимости — это слышать слова благодарности от людей, которым помог продать, обменять, купить квартиру на вторичном рынке или в новостройке от застройщика"
Обращаться
Офис 7 «Центральный»
ул. Кирова, 8, пом. 7-6
Дерговица Владислав
5
(65 отзывов )
Программы и сервисы для выгодной покупки и продажи жилья
Ни одна сделка не признана недействительной
Группа компаний «Твоя столица», основанная в 1996 году, оказывает услуги во всех сегментах рынка недвижимости и является его лидером. В нашей команде более 250 высококвалифицированных специалистов.
1
4-комнатная квартира , Минск, Минина ул., 5
Минина ул., 5, Московский район: , Дзержинского, Уманская, Железнодорожная
76.01 / 53.06 / м²
Похожие варианты
Все 21 предложения
Позвонить