Позвонить:
Online-консультации: Перезвоним за 15 секунд:
Ожидайте звонка. Уже звоним...
Сеть офисов:
Объект в архиве

Продажа четырехкомнатной квартиры, Минск, Кропоткина ул., 61

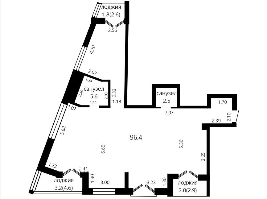
Общая площадь: 111.5 м²
Жилая площадь: 104.5 м²
Кухня: 1 м²
Этаж: 7 из 15
Комнаты: 4 и более
Санузел: 2 санузла
Год постройки: 2023

Описание

Квартира свободной планировки, по площади равна четырехкомнатной, расположена в жилом комплексе премиум-класса "Фарфоровый" в центре Минска.

Дом каркасно-блочный 2023 года постройки. Наружная отделка дома – вентилируемый фасад., что обеспечивает надежность и долговечность.

Площадь квартиры по СНБ 111.5 кв.м., общая 104.5 кв.м., жилая 96.4 кв.м., расположена на комфортном 7-ом этаже 15 этажного дома. Окна преимущественно выходят на юго-западную сторону света (считается солнечной, поскольку она получает максимальное количество солнечных лучей во второй половине дня).

В квартире предчистовая отделка — штукатурка, стяжка, электрика: можно сразу приступать к косметическому ремонту. Предусмотрена возможность установки тёплого пола, видеонаблюдения, сигнализации, системы мониторинга и съёмки показаний счётчиков путём интернет-доступа с компьютера или мобильного телефона; возможности контроля парковочных мест и входных дверей в квартиру и помещение

В квартире:

  • Функционирует приточно-вытяжная установка с рекуперацией.
  • Установлена входная металлическая дверь
  • регулируемые радиаторы.
  • Импортные двухкамерные стеклопакеты REHAU с энергосберегающими и солнцезащитными стёклами.
  • Алюминиевые витражи из профиля ALUTEX с высококачественной фурнитурой.
  • Французское остекление лоджий.
  • Увеличенные оконные проёмы размером 1,8 х 1,7 метра (высота) с заниженным подоконником начинаются на уровне 70 см.
  • Наличие двух санузлов.
  • Высокие потолки – 2.7 м.
  • Многослойные стены и перекрытия обеспечат хорошую шумоизоляцию, перекрытия между этажами толщиной 70 см.
  • Улучшенные инженерно-эксплуатационные характеристики.

Имеется дизайн- проект, для нового обладателя квартиры незаменимая вещь!

Грузо-пассажирские лифты - с обзорным окном с видами на город, спускаются до подземного паркинга.

Дополнительно можно приобрести парковочное место в подземном паркинге.

Уникальная стильная оригинальная архитектура: комплекс построен по индивидуальным проектам зданий, квартир, лобби, мест общего пользования, благоустройства территории, бульвара, выполненным известными архитекторами, градостроителями, дизайнерами.

Комплекс расположен в престижном районе тихого центра столицы. Современная комфортная безопасная жилая среда, пешеходный квартал с собственной инфраструктурой.

Жилой комплекс укомплектован собственным социальным пакетом: детский сад; СПА-центр; кафе; фитнес; встроенные помещения с услугами для жильцов комплекса (кофейня, салон красоты, косметология, стоматология, тренажерный зал и прочие); бизнес-центры; продуктовый магазин; 4 подземных паркинга общей вместимостью 760 машиномест, из которых обзорные лифты с панорамными видами , детские площадки для разных возрастов; благоустроенный бульвар внутри комплекса.

Рядом — набережные реки Свислочь, парк Победы, Комсомольское озеро с пляжем, спорткомплекс Динамо, магазины, театры, Дворец детей и молодежи, Комаровский рынок и другие атрибуты центра столицы, а также строятся две станции метро третьей линии. Возле комплекса проходит велодорожка, удобно соединяющая все районы и парки Минска.

Прямая продажа.

Свяжитесь  с нами  в viber  или telegram

Приглашаем на бесплатные консультации по продаже, покупке и обмену недвижимости на вторичном рынке и в новостройках!
Все и сразу! Для вас – максимум полезной информации от отпытных агентов и риэлтеров по вашей сделке!
Приходите! Кирова, 8, Независимости, 68
Звоните  по телефону 7735!


ООО Твоя столица, УНП 101136973, лицензия №02240/15 от 17.02.2005г., договор на оказание риэлтерских услуг №40/16 от 11.03.2025г.
Читать далее

Агент по недвижимости

Обращаться
Офис 4 «Центральный»
ул. Кирова, 8, пом. 7-6
Гребнева Светлана
5
(16 отзывов )
Программы и сервисы для выгодной покупки и продажи жилья
Ни одна сделка не признана недействительной
Группа компаний «Твоя столица», основанная в 1996 году, оказывает услуги во всех сегментах рынка недвижимости и является его лидером. В нашей команде более 250 высококвалифицированных специалистов.
1
4-комнатная квартира , Минск, Кропоткина ул., 61
Кропоткина ул., 61, Центральный район: , Червякова, Шевченко, Кропоткина
111.5 / 104.5 / 1 м²
Позвонить