Позвонить:
Online-консультации: Перезвоним за 15 секунд:
Ожидайте звонка. Уже звоним...
Сеть офисов:
Объект в архиве

Продажа трехкомнатной квартиры, Минск, Волгоградская ул., 34

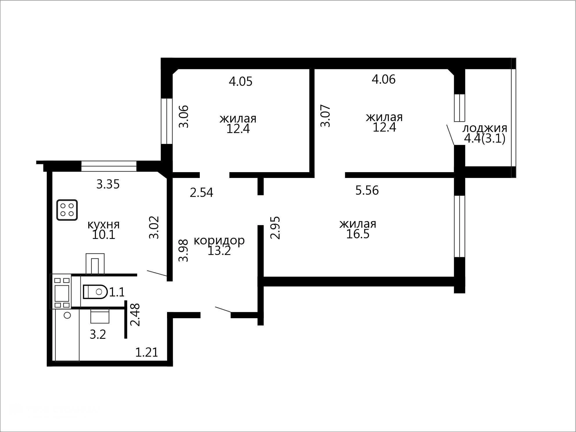
Общая площадь: 68.9 м²
Жилая площадь: 41.3 м²
Кухня: 10.1 м²
Этаж: 3 из 10
Комнаты: 3
Год постройки: 2011

Описание

Уютная современная квартира с ремонтом в центре города!

Жилой комплекс Шопен построен в 2011 году. Расположен на огороженной территории, в окружении зелёной зоны.

Просторная квартира большой кухней. Отделка в пастельной цветовой гамме визуально делает жилое помещение ещё больше и светлее. В оконных проёмах установлены стеклопакеты с профилем из ПВХ. Кухонная мебель с техникой: газовая плита, вытяжка. В ванной комнате современные керамическая плитка, сантехническое оборудование и мебель. Подключены приборы учёта воды, газа и тепла, батареи с регуляторами. Отлично организованы места для хранения вещей, в том числе вместительный шкаф-купе. Межкомнатные двери из массива, входная металлическая. Оптоволоконная связь, телефон, домофон.

Ухоженный подъезд. в тамбуре всего 3 квартиры. Закрытая территория дома и парковки, въезд через ворота с кодом. Также имеется крытая парковка для велотранспорта. Управляется дом товариществом собственников. В подъезде и вокруг дома есть видеонаблюдение. Двор оборудован детской площадкой, альпийской горкой и газоном.

Развитая инфраструктура: детские сады, школы, многочисленные супермаркеты, объекты сервисного обслуживания и досуга. Хорошее транспортное сообщение. Две остановки или шаговая доступность станции метро Московская.

Вокруг много мест для прогулок и активного отдыха: скверы, Севастопольский и Челюскинцев парк, Ботанический сад.


Online-сервисы «Твоя столица»: 
Калькулятор стоимости. Узнайте столько стоит ваша квартира за 30 секунд!
База покупателей. Предложите свой объект нашим покупателям!
Кредитование «под ключ». Рассчитайте сумму кредита и платежи!
Доставка риэлтерских услуг: Вызовите агента на дом для определения стоимости объекта, консультации по документам  и юридическим аспектам вашей сделки. 
Звоните-7735!


ООО Твоя столица, УНП 101136973, лицензия №02240/15 от 17.02.2005г., договор на оказание риэлтерских услуг №13/16 от 21.01.2025г.

Агент по недвижимости

Выгодно купить, продать, обменять недвижимость . Новостройки без комиссии. Юридическое сопровождение.
Обращаться
Офис 4 «Центральный»
ул. Кирова, 8, пом. 7-6
Маркова Анжелика
5
(35 отзывов )
Программы и сервисы для выгодной покупки и продажи жилья
Ни одна сделка не признана недействительной
Группа компаний «Твоя столица», основанная в 1996 году, оказывает услуги во всех сегментах рынка недвижимости и является его лидером. В нашей команде более 250 высококвалифицированных специалистов.
1
3-комнатная квартира , Минск, Волгоградская ул., 34
Волгоградская ул., 34, Первомайский район: , Волгоградская, Независимости, Севастопольская
68.9 / 41.3 / 10.1 м²
Похожие варианты
Все 78 предложения
Позвонить