Позвонить:
Online-консультации: Перезвоним за 15 секунд:
Ожидайте звонка. Уже звоним...
Сеть офисов:
Объект реализован

Продажа двухкомнатной квартиры, Минск, Рокоссовского просп., 57

Минск, Рокоссовского просп., 57, Ленинский район : Серебрянка
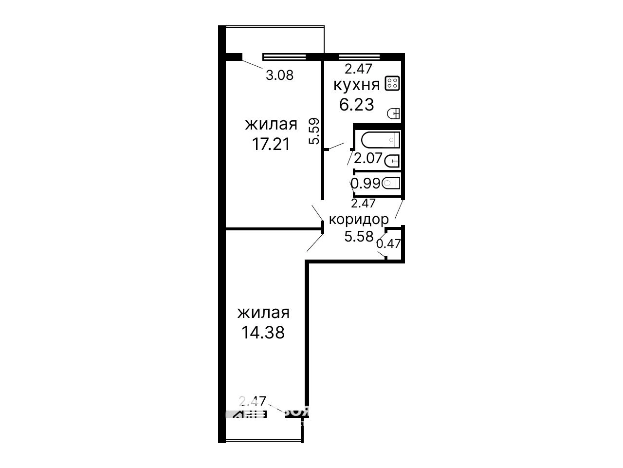
Общая площадь: 48.43 м²
Жилая площадь: 31.59 м²
Кухня: 6.23 м²
Этаж: 4 из 5
Комнаты: 2
Санузел: раздельный
Год постройки: 1972

Описание

Двухкомнатная квартира на проспекте Рокоссовского.

Локация, удобная планировка и перспективы развития района делают этот вариант логичным выбором, как для комфортного проживания, так и для инвестиций.

Площадь квартиры по СНБ— 48,43 м². Комнаты изолированные, по разные стороны, площадью 17,21 и 14,38 м², кухня — 6,23 м², санузел раздельный, этаж 4 из 5. В квартире два застекленных балкона, есть подвал, установлены счётчики воды и газа.

Квартира для тех, кто хочет сделать ремонт с учетом личных предпочтений — без переплаты за чужие решения. В 2024 году в доме выполнен капитальный ремонт: заменены коммуникации, установлен новый полотенцесушитель, приведён в порядок подъезд, дом утеплён и окрашен.

Дом расположен в тихом зелёном дворе. Окна выходят во двор и на детский сад, расположенный за домом. Детская площадка оборудована и полностью просматривается из окон.

Серебрянка — район с давно сформированной инфраструктурой: рядом парк Грековой, прогулочные зоны и Слепянская водная система, ФОК, школы и гимназии, детская и взрослая поликлиники, магазины, аптеки и сервисы в шаговой доступности. Остановка общественного транспорта в 3-х минутах ходьбы от дома. В планах города — строительство станции метро у автовокзала «Восточный» в трёх остановках, что усиливает ликвидность объекта в перспективе.

Дополнительный плюс — близость Белорусского государственного экономического университета. Локация обеспечивает стабильный спрос на аренду, а планировка позволяет сдавать комнаты по отдельности. Объект имеет потенциал роста стоимости.

Звоните и приходите на просмотр.

Чистая продажа, ключи в день сделки!

Двухкомнатная квартира Рокоссовского просп. 57 (Ленинский район)

Материал стен: панельный. Год постройки: 1972. Этаж: 4/5, 2 балкона

Общая площадь: 48.43 (СНБ). Жилая площадь: 31.59.

Площадь кухни: 6.23. Высота потолка: 2.51.

Свяжитесь  с нами  в viber  или telegram


ООО Твоя столица, УНП 101136973, лицензия №02240/15 от 17.02.2005г., договор на оказание риэлтерских услуг №12/13 от 08.01.2026г.
Читать далее

Агент по недвижимости

Обращаться
Офис 3 «Центральный»
ул. Кирова, 8, пом. 7-6
Портновская Наталья
5
(4 отзыва )
Программы и сервисы для выгодной покупки и продажи жилья
Ни одна сделка не признана недействительной
Группа компаний «Твоя столица», основанная в 1996 году, оказывает услуги во всех сегментах рынка недвижимости и является его лидером. В нашей команде более 250 высококвалифицированных специалистов.
1
2-комнатная квартира , Минск, Рокоссовского просп., 57
Рокоссовского просп., 57, Ленинский район: , Серебрянка
48.43 / 31.59 / 6.23 м²
Похожие варианты
Все 11 предложения
Позвонить