Позвонить:
Online-консультации: Перезвоним за 15 секунд:
Ожидайте звонка. Уже звоним...
Сеть офисов:
Объект в архиве

Продажа двухкомнатной квартиры, Минск, Мирошниченко ул., 11

Минск, Мирошниченко ул., 11, Советский район : Зеленый луг
268 227 руб. ( 90 000 USD) Цены в USD указаны справочно по курсу Национального банка на дату 13.11.2025
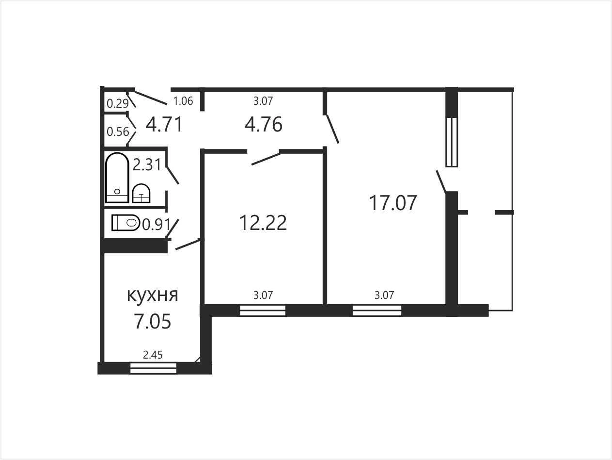
Общая площадь: 49.88 м²
Жилая площадь: 29.29 м²
Кухня: 7.05 м²
Этаж: 4 из 9
Комнаты: 2
Санузел: раздельный
Год постройки: 1977

Описание

Двухкомнатная квартира в Зелёном Луге.

Комфортный 4-й этаж из 9.

Рациональная планировка: жилые комнаты изолированные, раздельный санузел, просторная прихожая.

Площадь квартиры по СНБ 53.48 м кв. Общая площадь 49.88 м кв. Жилая площадь 29.29 м кв. Площадь кухни 7.05 м кв.

В квартире установлена входная деревянная дверь, межкомнатные двери МДФ.

Напольное покрытие - линолеум. Кухонный гарнитур. Подключены счётчики учёта воды и газа. Домофон, оптоволоконная связь. Тамбур на две квартиры, хорошие соседи.

Капитальный ремонт дома с модернизацией фасада произведен в 2025 году.

Отлично развита инфраструктура: в шаговой доступности детские сады, школы, поликлиники, торговые и бизнес центры, объекты сервисного обслуживания и досуга.

Хорошее транспортное сообщение со всеми районами Минска.

Удобный выезд на МКАД.

В непосредственной близости от дома расположена лесопарковая зона - идеальное место для прогулок, активного отдыха и занятий спортом. Рядом набережная канала Слепянской водной системы, экологическая тропа Цна и Цнянское водохранилище - популярные места отдыха минчан. Живописные виды. 

Прямая продажа.

Поможем выгодно продать вашу недвижимость для покупки этой квартиры. Расширенные консультации по покупке, продаже и обмену недвижимости можно получить по адресу: г.Минск, ул.Кирова, 8.

Свяжитесь  с нами  в viber  или telegram

Приглашаем на бесплатные консультации по продаже, покупке и обмену недвижимости на вторичном рынке и в новостройках!
Все и сразу! Для вас – максимум полезной информации от отпытных агентов и риэлтеров по вашей сделке!
Приходите! Кирова, 8, Независимости, 68
Звоните  по телефону 7735!


ООО Твоя столица, УНП 101136973, лицензия №02240/15 от 17.02.2005г., договор на оказание риэлтерских услуг №869/13 от 18.09.2025г.

Агент по недвижимости

Максимальный комфорт для моих клиентов-вот правило, которого я придерживаюсь. На всех этапах нашей совместной работы Вы получите профессиональную помощь и поддержку. Пунктуальна, на встречи не опаздываю. Дорожу Вашим и своим временем.
Обращаться
Офис 5 «Центральный»
ул. Кирова, 8, пом. 7-6
Дорога Елена
4.9
(54 отзыва )
Программы и сервисы для выгодной покупки и продажи жилья
Ни одна сделка не признана недействительной
Группа компаний «Твоя столица», основанная в 1996 году, оказывает услуги во всех сегментах рынка недвижимости и является его лидером. В нашей команде более 250 высококвалифицированных специалистов.
1
2-комнатная квартира , Минск, Мирошниченко ул., 11
Мирошниченко ул., 11, Советский район: , Зеленый луг
49.88 / 29.29 / 7.05 м²
Похожие варианты
Все 56 предложения
Позвонить