Позвонить:
Online-консультации: Перезвоним за 15 секунд:
Ожидайте звонка. Уже звоним...
Сеть офисов:
Объект реализован

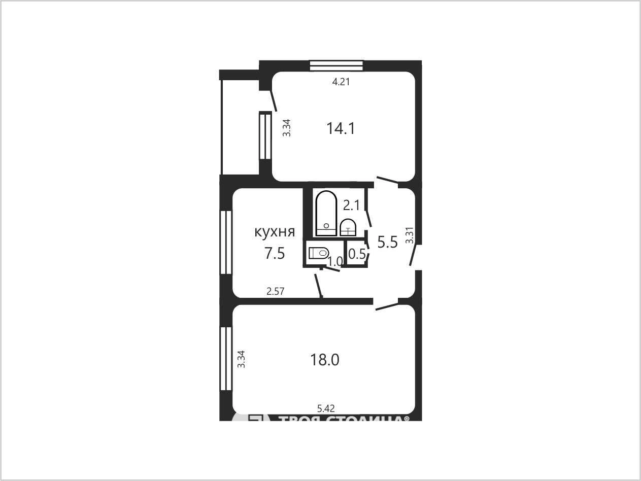
Продажа двухкомнатной квартиры, Минск, Менделеева ул., 25

Общая площадь: 48.7 м²
Жилая площадь: 32.1 м²
Кухня: 7.5 м²
Этаж: 7 из 9
Комнаты: 2
Санузел: раздельный
Год постройки: 1973

Описание

Двухкомнатная квартира рядом с Ботаническим садом. ул. Менделеева, дом 25.

Комфортный 7-й этаж девятиэтажного дома.

Рациональная планировка: изолированные жилые комнаты, просторный коридор, раздельный санузел.

В квартире установлена входная металлическая дверь.

В оконных проёмах стеклопакеты ПВХ, включая остекление   лоджии.

В санузлах выполнен актуальный ремонт.

Подключены приборы учёта воды, газа. Телефон, домофон, оптоволоконная сеть.

Дом после капитального ремонта. Фасад дома утеплён. Заменены сантехнические коммуникации, электропроводка. 

Район с устоявшейся развитой инфраструктурой: множество детских садов, школы, гимназия, поликлиника, аптеки , отделения банков, дворец Культуры, центр травматологии и ортопедии, физкультурно-оздоровительный центр Эко-Спорт, супермаркеты, магазины, рынок.

Дом находится рядом с набережной канала Слепянской водной системы, в непосредственной близости от Ботанического сада и парка Челюскинцев, скверов Клумова и Содружества. Вокруг много мест для прогулок, занятий спортом и активного отдыха. 

Удобное транспортное сообщение. Две остановки до станции метро Академия наук. До станции метро Тракторный завод четыре остановки на общественном транспорте.

Хотите купить квартиру в Минске? Звоните, записывайтесь на просмотр.

Поможем выгодно и безопасно продать вашу недвижимость для покупки этой квартиры.

Свяжитесь  с нами  в viber  или telegram
С 8 по 31 декабря 2025 НОВОГОДНИЕ БОНУСЫ для продавцов и покупателей в “ Твоей столице”!  Подробнее>> 


ООО Твоя столица, УНП 101136973, лицензия №02240/15 от 17.02.2005г., договор на оказание риэлтерских услуг №510/13 от 18.06.2025г.
Читать далее

Агент по недвижимости

Люблю свою работу! В Твоей столице работаю с 2014 года. Я большой оптимист и стараюсь быть максимально полезной каждому клиенту. С удовольствием учусь новому, постоянно повышая свой профессиональный уровень. Внимательно отношусь к запросам и пожеланиям клиентов, ведь решение квартирного вопроса - один из главных в жизни человека. Искренне радуюсь, когда вижу довольные и счастливые лица клиентов после завершения сделки.
Обращаться
Офис «Центральный»
ул. Кирова, 8, пом. 7-6
Пстыга Наталья
5
(62 отзыва )
Программы и сервисы для выгодной покупки и продажи жилья
Ни одна сделка не признана недействительной
Группа компаний «Твоя столица», основанная в 1996 году, оказывает услуги во всех сегментах рынка недвижимости и является его лидером. В нашей команде более 250 высококвалифицированных специалистов.
1
2-комнатная квартира , Минск, Менделеева ул., 25
Менделеева ул., 25, Партизанский район: , Менделеева, Столетова
48.7 / 32.1 / 7.5 м²
Похожие варианты
Все 15 предложения
Позвонить