Позвонить:
Online-консультации: Перезвоним за 15 секунд:
Ожидайте звонка. Уже звоним...
Сеть офисов:
Объект реализован

Продажа однокомнатной квартиры, Минск, Есенина ул., 6, к. 3

Минск, Есенина ул., 6, Московский район : Малиновка
193 720 руб. ( 65 000 USD) Цены в USD указаны справочно по курсу Национального банка на дату 13.11.2025
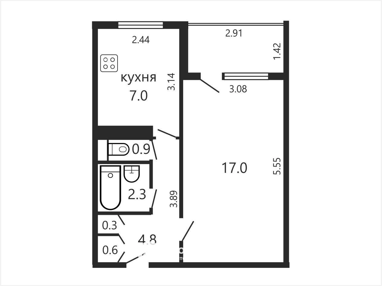
Общая площадь: 33 м²
Жилая площадь: 17.1 м²
Кухня: 7 м²
Этаж: 3 из 9
Комнаты: 1
Санузел: раздельный
Год постройки: 1986

Описание

Продается однокомнатная квартира недалеко от метро.

Квартира стандартной планировки возле метро Малиновка.

Площадь квартиры по СНБ - 35,9 м², общая площадь - 33 м².

Жилая - 17,1 м², кухня - 7 м²;

Из жилой комнаты выход на лоджию, раздельный санузел;

Потолки - 2,56 м;

Дом находится в удалении от дорог. В шаговой доступности вся инфраструктура района.

Квартира требует ремонта.

Расширенные консультации по покупке, продаже и обмену вашей недвижимости можно получить в офисе «Центральном», расположенном в бизнес-центре Kiroff по адресу: Минск, улица Кирова, 8, 2-й этаж.

Свяжитесь  с нами  в viber  или telegram

Приглашаем на бесплатные консультации по продаже, покупке и обмену недвижимости на вторичном рынке и в новостройках!
Все и сразу! Для вас – максимум полезной информации от отпытных агентов и риэлтеров по вашей сделке!
Приходите! Кирова, 8, Независимости, 68
Звоните  по телефону 7735!


ООО Твоя столица, УНП 101136973, лицензия №02240/15 от 17.02.2005г., договор на оказание риэлтерских услуг №973/13 от 10.10.2025г.

Агент по недвижимости

Люблю свою работу! В Твоей столице работаю с 2014 года. Я большой оптимист и стараюсь быть максимально полезной каждому клиенту. С удовольствием учусь новому, постоянно повышая свой профессиональный уровень. Внимательно отношусь к запросам и пожеланиям клиентов, ведь решение квартирного вопроса - один из главных в жизни человека. Искренне радуюсь, когда вижу довольные и счастливые лица клиентов после завершения сделки.
Обращаться
Офис «Центральный»
ул. Кирова, 8, пом. 7-6
Пстыга Наталья
5
(60 отзывов )
Программы и сервисы для выгодной покупки и продажи жилья
Ни одна сделка не признана недействительной
Группа компаний «Твоя столица», основанная в 1996 году, оказывает услуги во всех сегментах рынка недвижимости и является его лидером. В нашей команде более 250 высококвалифицированных специалистов.
1
1-комнатная квартира , Минск, Есенина ул., 6, к. 3
Есенина ул., 6, Московский район: , Малиновка
33 / 17.1 / 7 м²
Похожие варианты
Все 19 предложения
Позвонить